内神田TKビル1階の賃貸情報
34 坪 (113.68m²)
※このサイトに記載がある賃貸条件は、敷金・保証金などの預かり金を除き、別途消費税がかかります。
内神田TKビルの建物概要
設備詳細
| 空調 | 個別空調 |
|---|---|
| トイレ | 男女別トイレ室外 |
| 床仕様 | - |
| エレベータ | 2 基 |
| 駐車場設備 | - |
| その他 | 機械警備 / 光ファイバー / 新耐震基準 / 24時間利用可 / 1階の物件 |
内神田TKビル1階の賃貸オフィス・事務所に関するお問い合わせ
内神田TKビルについて
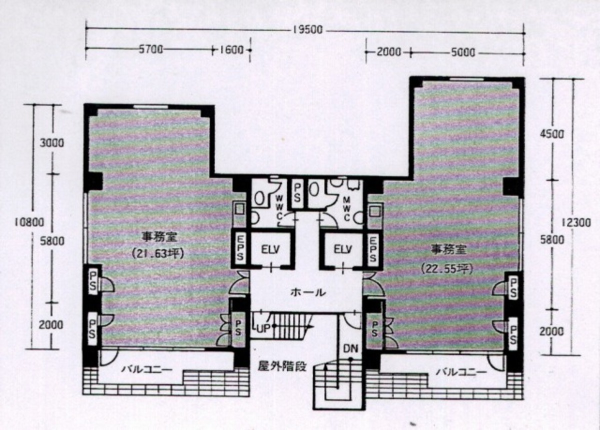
内神田エリアの中心に位置する内神田TKビルは、1984年に竣工された地上7階建ての耐震オフィスビルです。このビルは、最新の耐震基準に準拠して建設され、安全性が高く、長期にわたって安心してご利用いただけます。さらに、便利な立地にありながら、柱のない無柱空間を提供し、オフィスレイアウトの自由度が非常に高い点が特長です。 立地に関して言えば、内神田TKビルは、複数の鉄道駅にアクセスしやすい絶好の位置にあります。最寄りの神田駅をはじめ、大手町駅まで徒歩10分程度と、ビジネスアクセスに優れています。周辺には飲食店やコンビニエンスストアが充実しており、オフィスでの日常生活も非常に便利です。 ビルの設備面では、2基のエレベーターがスムーズな移動をサポートし、機械警備システムによるセキュリティが24時間体制で安心を提供します。また、OAフロア完備により、インターネット環境も整っており、ビジネスの効率化をサポートします。給湯室や洗面台、トイレなどの共用部分も清潔に保たれており、快適なオフィスライフを送ることができます。 内神田TKビルのオフィスは、約70坪の基準階面積があり、北側と南側の2つの区画に分かれたユニークなレイアウトを採用しています。この柔軟な間取りは、様々な業種の企業が効率的にスペースを活用できるよう設計されています。また、ほとんどの柱がないため、オフィス内のレイアウト変更も容易で、成長するビジネスに合わせて自由に空間をカスタマイズできます。 内神田TKビルは、立地、設備、セキュリティ、そして柔軟なレイアウトと、ビジネスを成功に導くために必要な全てを備えています。ビジネスの拠点として理想的な環境を提供するこのビルは、あなたの企業にとって最適な選択肢となるでしょう。ご興味をお持ちの方は、ぜひ一度、内神田TKビルをご覧になり、その魅力を実感してください。
自分で探すより問い合わせる方が早いことがあります
WEB非公開物件があるから
オーナー様のご希望により「WEBでは非公開」にしている物件があります。 それらはWEBでいくら検索しても見つかりません。 先ずは条件などお知らせ頂けましたら非公開物件含め ピッタリのオフィスをご提案させて頂きます。 無理なお勧めはしておりませんので、お気軽にお問い合わせください。
対面でのご相談も受け付けております
ご来店も歓迎です
オフィス移転は社内・社外ともに非公開に行われることが殆どです。そのためアットオフィスでは、基本的に訪問によるコンサルティングを行っておりますが、ご来店の相談も歓迎です。お一人おひとりに親身にご対応させて頂きたい為、要予約とさせて頂いております。ご来店の際は先ずは下記よりご予約下さい。
神田/秋葉原エリアで内神田TKビルに似た条件の物件
読込中...
内神田TKビルと同じ最寄駅の物件
読込中...
| 取扱様態 | 仲介 |
|---|---|
| 取扱会社 | 株式会社 アットオフィス |