第2サンビル6階の賃貸情報
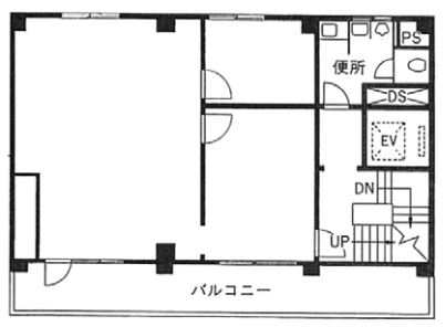
20 坪 (66.11m²)
※このサイトに記載がある賃貸条件は、敷金・保証金などの預かり金を除き、別途消費税がかかります。
第2サンビルの建物概要
設備詳細
| 空調 | - |
|---|---|
| トイレ | - |
| 床仕様 | - |
| エレベータ | 1 基 |
| 駐車場設備 | - |
| その他 | - |
第2サンビル6階の賃貸オフィス・事務所に関するお問い合わせ
第2サンビルについて
【第2サンビル:銀座のデザインオフィスでビジネスを彩る】 歴史ある銀座8丁目、中央区に佇む第2サンビルは、企業の魅力を高めるデザインオフィス仕様の賃貸ビルです。1958年に竣工し、2014年には内装が現代のビジネスニーズに合わせてリノベーションされました。シンプルで清潔感あふれる外観、機能性とデザイン性を兼ね備えた室内は、ビジネスの場として最適な環境を提供します。 【特徴】 - **デザインオフィス仕様**:2014年のリノベーションにより、洗練されたデザインオフィスへと生まれ変わりました。天井高2670mmの開放感ある空間、柱のデザインにまでこだわった内装が特徴です。 - **機能性と利便性**:エレベーターは1基設置され、セキュリティは機械警備により管理されています。清潔感のあるトイレ、給湯室など、快適なオフィスライフをサポートする設備が整っています。 【立地】 - **アクセスの良さ**:新橋駅から徒歩6分という立地は、ビジネスアクセスに優れています。汐留駅、東銀座駅も徒歩圏内にあり、様々な路線を利用できる点が魅力です。 - **周辺環境**:昭和通りから一本入った静かなロケーションにありながら、徒歩1分の場所にファミリーマート、ドン・キホーテ銀座本店も近く、日常の買い物にも困りません。 【ビジネスにおける利点】 第2サンビルは、銀座という一等地にあることで、企業イメージの向上に貢献します。デザイン性の高いオフィス空間は、従業員のモチベーション向上にも繋がり、クリエイティブな仕事を促進します。また、複数の路線が利用可能な立地は、ビジネスの機会を広げる要素となり得ます。 【まとめ】 第2サンビルは、歴史と現代性が融合したビルです。デザインと機能性を兼ね備えたオフィス空間で、ビジネスの可能性を広げましょう。銀座の地で、新たな歴史を刻むチャンスを提供します。企業イメージの向上、アクセスの良さ、そして快適なオフィスライフをお求めの方には、第2サンビルが最適な選択肢となるでしょう。
第2サンビルのこだわり
自分で探すより問い合わせる方が早いことがあります
WEB非公開物件があるから
オーナー様のご希望により「WEBでは非公開」にしている物件があります。 それらはWEBでいくら検索しても見つかりません。 先ずは条件などお知らせ頂けましたら非公開物件含め ピッタリのオフィスをご提案させて頂きます。 無理なお勧めはしておりませんので、お気軽にお問い合わせください。
対面でのご相談も受け付けております
ご来店も歓迎です
オフィス移転は社内・社外ともに非公開に行われることが殆どです。そのためアットオフィスでは、基本的に訪問によるコンサルティングを行っておりますが、ご来店の相談も歓迎です。お一人おひとりに親身にご対応させて頂きたい為、要予約とさせて頂いております。ご来店の際は先ずは下記よりご予約下さい。
銀座エリアで第2サンビルに似た条件の物件
読込中...
第2サンビルと同じ最寄駅の物件
読込中...
| 取扱様態 | 仲介 |
|---|---|
| 取扱会社 | 株式会社 アットオフィス |