CONVEX神保町の賃料条件
| 階数 | 坪数 | 賃料 + 共益費 | 敷金/礼金敷金 礼金 | 検討 |
|---|---|---|---|---|
| 4階 | 69.26坪 (228.96m²) | 1,870,020円 (坪:27,000 円) | 6ヶ月 無6ヶ月/無 |
※このサイトに記載がある賃貸条件は、敷金・保証金などの預かり金を除き、別途消費税がかかります。
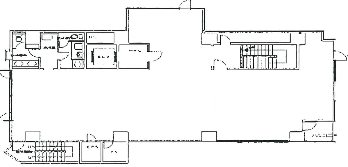
物件情報
設備詳細
| 空調 | 個別空調 |
|---|---|
| トイレ | 男女別トイレ室内 |
| 床仕様 | - |
| エレベータ | 1 基 |
| 駐車場設備 | - |
| その他 | 機械警備 / 光ファイバー / 新耐震基準 / セットアップ / 居抜き |
CONVEX神保町の賃貸オフィス・事務所に関するお問い合わせ
CONVEX神保町について
CONVEX神保町ビルは、東京都千代田区神田神保町一丁目に位置する賃貸オフィスビルです。1990年に竣工されたこのビルは、地上10階建てで、基準階面積は約66坪となっています。地震対策として新耐震基準に適合しており、安心して業務を行うことが可能です。また、オフィスフロアは柱がなく空間のレイアウト自由度が高いことが特徴です。 立地においては、CONVEX神保町ビルは非常に恵まれています。最寄り駅である神保町駅からは徒歩1分というアクセスの良さで、三田線、都営新宿線、および東京メトロ半蔵門線の3路線が利用可能です。これにより、東京都内の主要エリアへの移動が容易で、ビジネスの機会を広げることに寄与します。 ビルの設備に関しては、個別空調システムが導入されており、オフィス内の快適な環境を保つことができます。さらに、OAフロアが付いているため、最新のオフィス機器の設置にも適しています。通信環境においても、光回線による高速インターネット接続が可能で、ビジネスの効率化を支援します。また、男女別トイレが完備されており、快適な職場環境を提供します。 周辺環境も充実しており、多様な飲食店やコンビニ、銀行支店が近くにあり、日々の業務に必要なさまざまなニーズに応えることができます。このように、CONVEX神保町ビルは、優れた立地、安心の耐震性、快適なオフィス環境、そして便利な周辺環境を兼ね備えた賃貸オフィスビルです。ビジネスの拠点として、または新たなオフィスの立ち上げに、最適な選択肢の一つと言えるでしょう。
CONVEX神保町のこだわり
自分で探すより問い合わせる方が早いことがあります
WEB非公開物件があるから
オーナー様のご希望により「WEBでは非公開」にしている物件があります。 それらはWEBでいくら検索しても見つかりません。 先ずは条件などお知らせ頂けましたら非公開物件含め ピッタリのオフィスをご提案させて頂きます。 無理なお勧めはしておりませんので、お気軽にお問い合わせください。
対面でのご相談も受け付けております
ご来店も歓迎です
オフィス移転は社内・社外ともに非公開に行われることが殆どです。そのためアットオフィスでは、基本的に訪問によるコンサルティングを行っておりますが、ご来店の相談も歓迎です。お一人おひとりに親身にご対応させて頂きたい為、要予約とさせて頂いております。ご来店の際は先ずは下記よりご予約下さい。
募集終了のテナント区画
| 階数 | 坪数 | 賃料 + 共益費 | 敷金/礼金敷金 礼金 | 検討 |
|---|---|---|---|---|
| 1階 | 53.43坪 (176.62m²) | 募集終了 | - | - |
| 2階 | 66.65坪 (220.33m²) | 募集終了 | - | - |
| 3階 | 69.26坪 (228.96m²) | 募集終了 | - | - |
| 5階 | 69.26坪 (228.95m²) | 募集終了 | - | - |
| 6階 | 66.65坪 (220.33m²) | 募集終了 | - | - |
| 7階 | 66.65坪 (220.33m²) | 募集終了 | - | - |
| 8階 | 69.26坪 (228.96m²) | 募集終了 | - | - |
| 9階 | 66.65坪 (220.34m²) | 募集終了 | - | - |
| 10階 | 69.26坪 (228.96m²) | 募集終了 | - | - |
読込中...
近くのエリアで探してみる
飯田橋/神保町/水道橋エリアでCONVEX神保町に似た条件の物件
読込中...
| 取扱様態 | 仲介 |
|---|---|
| 取扱会社 | 株式会社 アットオフィス |