※このサイトに記載がある賃貸条件は、敷金・保証金などの預かり金を除き、別途消費税がかかります。
物件情報
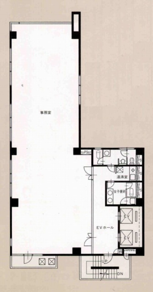
設備詳細
| 空調 | 個別空調 |
|---|---|
| トイレ | 男女別トイレ室外 |
| 床仕様 | OA対応床(フリーアクセス) |
| エレベータ | 2 基 |
| 駐車場設備 | - |
| その他 | 機械警備 / 24時間利用可 / 光ファイバー / 新耐震基準 |
ロックフィールドビルの賃貸オフィス・事務所に関するお問い合わせ
ロックフィールドビルについて
ロックフィールドビルは、東京都千代田区飯田橋4-6-9に所在し、1987年に竣工した地上9階建てのオフィスビルです。このビルは、新耐震基準に適合した鉄骨鉄筋コンクリート造りの建物であり、約60坪の基準階面積を誇ります。物件の位置する飯田橋は、ビジネスと文化の融合が見られる活気あふれる地区であり、ロックフィールドビルはその中心に位置しています。 立地の面では、ビルは東京メトロ東西線を始めとする複数の路線が利用可能な飯田橋駅から徒歩1分という非常に便利な場所にあります。また、目白通りに面しており、その視認性の高さはビルへのアクセスのしやすさをさらに高めています。このような立地条件は、ビジネスの機会を広げる上で重要な要素となります。 設備に関しては、ビル内には2基のエレベーターが設置され、24時間利用可能な空間、個別空調システム、光ファイバー対応のOAフロア、男女別トイレなどが完備されています。これらの設備は、テナントが快適に業務を遂行するための基盤を提供します。特に、ビルの1階には薬局がテナントとして入居しており、日常的なニーズにも対応しています。 ロックフィールドビルの魅力は、その立地の良さと充実した設備だけにとどまりません。周辺地域は、多様な飲食店やショッピングモール、さらには東京ドームシティのようなレジャー施設が豊富にあるため、ビジネスだけでなく生活の利便性も高いです。また、近くには縁結びで有名な東京大神宮もあり、ビルのテナントやその従業員にとって、仕事だけでなくプライベートでも魅力的な環境を提供しています。 総合的に見ると、ロックフィールドビルは、優れた立地、充実した設備、そして周辺環境の豊かさが融合したビルです。これらの特徴は、さまざまなビジネスのニーズに応え、企業活動を支える強固な基盤を提供します。このビルは、ビジネスの成功を目指す企業にとって、非常に魅力的な選択肢となることでしょう。
ロックフィールドビルのこだわり
自分で探すより問い合わせる方が早いことがあります
WEB非公開物件があるから
オーナー様のご希望により「WEBでは非公開」にしている物件があります。 それらはWEBでいくら検索しても見つかりません。 先ずは条件などお知らせ頂けましたら非公開物件含め ピッタリのオフィスをご提案させて頂きます。 無理なお勧めはしておりませんので、お気軽にお問い合わせください。
対面でのご相談も受け付けております
ご来店も歓迎です
オフィス移転は社内・社外ともに非公開に行われることが殆どです。そのためアットオフィスでは、基本的に訪問によるコンサルティングを行っておりますが、ご来店の相談も歓迎です。お一人おひとりに親身にご対応させて頂きたい為、要予約とさせて頂いております。ご来店の際は先ずは下記よりご予約下さい。
募集終了のテナント区画
| 階数 | 坪数 | 賃料 + 共益費 | 敷金/礼金敷金 礼金 | 検討 |
|---|---|---|---|---|
| 2階 | 55坪 (181.82m²) | 募集終了 | - | - |
| 3階 | 25.68坪 (84.89m²) | 募集終了 | - | - |
| 4階 | 59.08坪 (195.31m²) | 募集終了 | - | - |
| 5階 | 59.08坪 (195.3m²) | 募集終了 | - | - |
| 6階 | 59.08坪 (195.3m²) | 募集終了 | - | - |
| 7階 | 59.08坪 (195.31m²) | 募集終了 | - | - |
| 8階 | 59.08坪 (195.3m²) | 募集終了 | - | - |
| 9階 | 59.08坪 (195.3m²) | 募集終了 | - | - |
読込中...
近くのエリアで探してみる
飯田橋/神保町/水道橋エリアでロックフィールドビルに似た条件の物件
読込中...
| 取扱様態 | 仲介 |
|---|---|
| 取扱会社 | 株式会社 アットオフィス |