第一野村ビル2階の賃貸情報
37.5 坪 (123.97m²)
※このサイトに記載がある賃貸条件は、敷金・保証金などの預かり金を除き、別途消費税がかかります。
第一野村ビルの建物概要
設備詳細
| 空調 | 個別空調 |
|---|---|
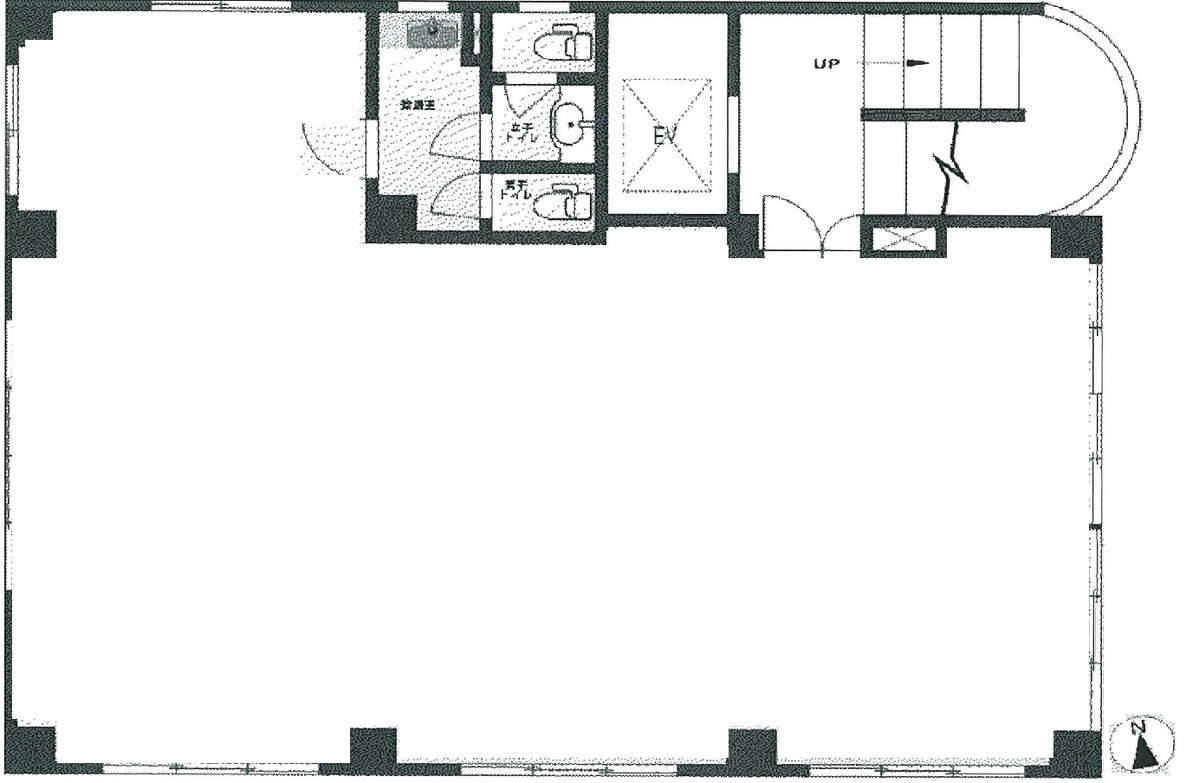
| トイレ | 男女別トイレ室内 |
| 床仕様 | - |
| エレベータ | 1 基 |
| 駐車場設備 | 空有 |
| その他 | 24時間利用可 / 光ファイバー / 新耐震基準 / 東京賃料が坪11000円以下 |
第一野村ビルについて
「第1野村ビル」へようこそ!台東区浅草橋の心地よいエリアにひっそりと佇むこの賃貸オフィスビルは、1990年の新耐震基準に則って建てられた5階建の物件です。ビルの外観は、清潔感あふれる白のパネルで統一されており、ビジネスの場にふさわしい明るく爽やかな印象を与えます。 立地においては、交通の便利さが魅力の一つ。最寄りの「浅草橋駅」までは徒歩僅か5分と、日々の通勤が非常に楽になります。また、蔵前駅も利用可能で、都心へのアクセスも抜群です。周囲にはオフィスビルやマンションが立ち並び、落ち着いた雰囲気の中でビジネスを展開することができます。 ビルの設備では、1基のエレベーターがスムーズな移動をサポート。また、ビル内駐車場がございますので、お車での通勤や来客の際も安心です。空き状況についてはお気軽にお問い合わせください。基準階は約37坪と、様々なビジネスニーズに柔軟に対応できる広さを持ち合わせています。 「第1野村ビル」の周辺環境も大変魅力的。徒歩2分の場所にはコンビニがあり、日々のちょっとした買い物にも便利。また、近くには台東区立台東育英小学校や鳥越神社前郵便局など、生活に根ざした施設が充実しているため、オフィスライフをより快適に過ごすことができます。 この「第1野村ビル」は、新耐震基準に則った安心の構造、魅力的な立地、そして利便性の高い設備を兼ね備えた賃貸オフィス物件です。ビジネスの新たな舞台として、是非ご検討ください。これからも皆様のビジネスが輝き続けることを願っています。ご興味をお持ちの方は、お気軽にお問い合わせください。
自分で探すより問い合わせる方が早いことがあります
WEB非公開物件があるから
オーナー様のご希望により「WEBでは非公開」にしている物件があります。 それらはWEBでいくら検索しても見つかりません。 先ずは条件などお知らせ頂けましたら非公開物件含め ピッタリのオフィスをご提案させて頂きます。 無理なお勧めはしておりませんので、お気軽にお問い合わせください。
対面でのご相談も受け付けております
ご来店も歓迎です
オフィス移転は社内・社外ともに非公開に行われることが殆どです。そのためアットオフィスでは、基本的に訪問によるコンサルティングを行っておりますが、ご来店の相談も歓迎です。お一人おひとりに親身にご対応させて頂きたい為、要予約とさせて頂いております。ご来店の際は先ずは下記よりご予約下さい。
浅草橋/蔵前/浅草エリアで第一野村ビルに似た条件の物件
読込中...
第一野村ビルと同じ最寄駅の物件
読込中...
| 取扱様態 | 仲介 |
|---|---|
| 取扱会社 | 株式会社 アットオフィス |