ACN芝プラザビルの賃料条件
| 階数 | 坪数 | 賃料 + 共益費 | 敷金/礼金敷金 礼金 | 検討 |
|---|---|---|---|---|
| 4階 | 50.23坪 (166.06m²) | お問合せ下さい (坪:-) | 8ヶ月 無8ヶ月/無 | |
| 10階 | 67.38坪 (222.76m²) | お問合せ下さい (坪:-) | 8ヶ月 無8ヶ月/無 |
※このサイトに記載がある賃貸条件は、敷金・保証金などの預かり金を除き、別途消費税がかかります。
物件情報
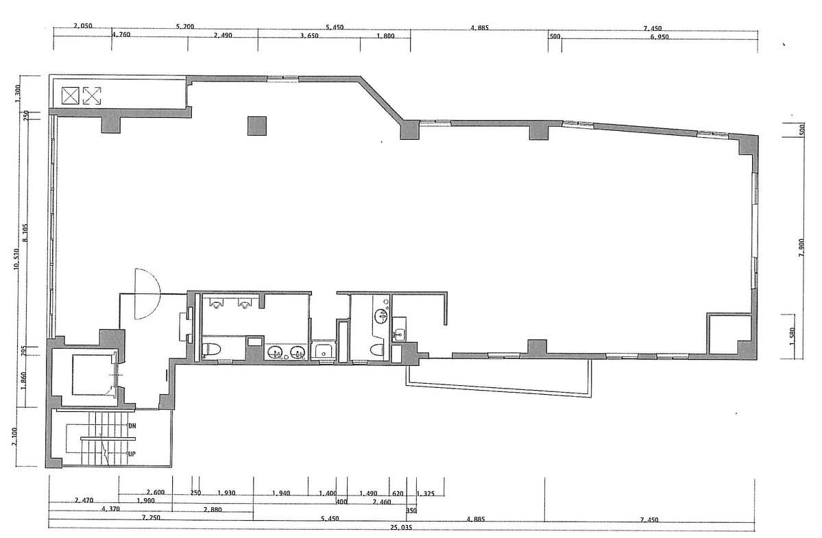
設備詳細
| 空調 | 個別空調 |
|---|---|
| トイレ | 男女別トイレ室内 |
| 床仕様 | OA対応床(フリーアクセス) |
| エレベータ | 1 基 |
| 駐車場設備 | 空有 |
| その他 | 機械警備 / 新耐震基準 / デザイナーズ / フリーレント / 居抜き |
ACN芝プラザビルの賃貸オフィス・事務所に関するお問い合わせ
ACN芝プラザビルについて
ACN芝プラザビルは、東京都港区芝に位置する賃貸オフィスビルで、三田・田町エリアの利便性と落ち着いた環境を兼ね備えた立地にあります。1984年に竣工し、2007年には内外装のリニューアルが施され、外壁はグレード感あるグレーの石造りで、セキュリティも機械警備でしっかりと守られています。ビルは鉄骨造・地上10階地下1階建てで、基準階約63坪の規模を誇り、オフィススペースとしての使用に適した設計です。 オフィスフロアは2~6階が約50坪、7~10階が60坪台となっており、窓が大きく設けられた明るい室内は、天井高約2,400mmで開放感があり、柱が少ないためレイアウトが容易です。また、各フロアには男女別のトイレと給湯設備が備えられ、個別空調システムにより快適なオフィス環境を実現しています。15台収容可能な機械式駐車場も併設されており、車でのアクセスも便利です。 立地においては、ACN芝プラザビルは交通アクセスが非常に優れています。最寄り駅である三田駅は徒歩約2分の位置にあり、田町駅や芝公園駅も徒歩圏内で、計4路線(都営浅草線・三田線、JR山手線・京浜東北線)の利用が可能です。これにより、新橋、東京、日比谷、大手町、渋谷、新宿、東銀座、日本橋といった都内主要駅へのアクセスが容易で、品川駅へは1駅で到達可能。新幹線や羽田空港へのアクセスもスムーズです。 周辺環境も充実しており、飲食店、カフェ、コンビニエンスストア、郵便局などが徒歩圏内にあり、日常の様々なニーズに応えることができます。また、ビル周辺は高層のオフィスビルが多く立ち並び、ビジネスの場としての視認性や信用度も高いことが期待できるでしょう。 ACN芝プラザビルは、優れた立地と機能性を併せ持つ賃貸オフィスビルとして、ビジネスの拠点としての利用に適しています。各フロアの個性的なデザインや機能性、そして周辺の豊かな生活環境は、企業活動におけるクオリティの向上と効率的なビジネス運営をサポートします。
自分で探すより問い合わせる方が早いことがあります
WEB非公開物件があるから
オーナー様のご希望により「WEBでは非公開」にしている物件があります。 それらはWEBでいくら検索しても見つかりません。 先ずは条件などお知らせ頂けましたら非公開物件含め ピッタリのオフィスをご提案させて頂きます。 無理なお勧めはしておりませんので、お気軽にお問い合わせください。
対面でのご相談も受け付けております
ご来店も歓迎です
オフィス移転は社内・社外ともに非公開に行われることが殆どです。そのためアットオフィスでは、基本的に訪問によるコンサルティングを行っておりますが、ご来店の相談も歓迎です。お一人おひとりに親身にご対応させて頂きたい為、要予約とさせて頂いております。ご来店の際は先ずは下記よりご予約下さい。
募集終了のテナント区画
| 階数 | 坪数 | 賃料 + 共益費 | 敷金/礼金敷金 礼金 | 検討 |
|---|---|---|---|---|
| 1階 | 35.13坪 (116.13m²) | 募集終了 | - | - |
| 2階 | 50.23坪 (166.06m²) | 募集終了 | - | - |
| 3階 | 50.23坪 (166.06m²) | 募集終了 | - | - |
| 5階 | 50.23坪 (166.06m²) | 募集終了 | - | - |
| 6階 | 52坪 (171.9m²) | 募集終了 | - | - |
| 7階 | 65.58坪 (216.79m²) | 募集終了 | - | - |
| 7階 | 67.38坪 (222.74m²) | 募集終了 | - | - |
| 8階 | 63.76坪 (210.8m²) | 募集終了 | - | - |
| 9階 | 67.38坪 (222.74m²) | 募集終了 | - | - |
読込中...
近くのエリアで探してみる
浜松町/田町/芝公園エリアでACN芝プラザビルに似た条件の物件
読込中...
| 取扱様態 | 仲介 |
|---|---|
| 取扱会社 | 株式会社 アットオフィス |