※このサイトに記載がある賃貸条件は、敷金・保証金などの預かり金を除き、別途消費税がかかります。
物件情報
設備詳細
| 空調 | 個別空調 |
|---|---|
| トイレ | - |
| 床仕様 | OA対応床(フリーアクセス) |
| エレベータ | 2 基 |
| 駐車場設備 | 空無 |
| その他 | 大型ビル / 新耐震基準 / 居抜き |
名古路ビル本館の賃貸オフィス・事務所に関するお問い合わせ
名古路ビル本館について
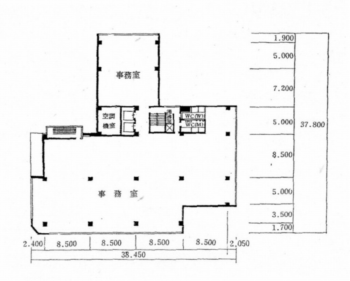
名古路本館は、神田錦町3丁目にある大型ビルです。竹橋駅から徒歩3分の駅近物件です。神田駅からは徒歩10分です。1985年に竣工しました。鉄骨鉄筋コンクリート造により耐震性があります。エレベーターは2基です。個別空調で管理しやすく、コスト削減になります。床下にケーブルを入れるOAフロアで、すっきりとした空間です。駐車場があります。周辺に飲食店やコンビニがあり、急用時も困りません。郵便局に近いため、手続きが楽に済みます。裏通りですが、穏やかな広い通りです。商業地のため、徒歩で利用しやすいエリアです。
自分で探すより問い合わせる方が早いことがあります
WEB非公開物件があるから
オーナー様のご希望により「WEBでは非公開」にしている物件があります。 それらはWEBでいくら検索しても見つかりません。 先ずは条件などお知らせ頂けましたら非公開物件含め ピッタリのオフィスをご提案させて頂きます。 無理なお勧めはしておりませんので、お気軽にお問い合わせください。
対面でのご相談も受け付けております
ご来店も歓迎です
オフィス移転は社内・社外ともに非公開に行われることが殆どです。そのためアットオフィスでは、基本的に訪問によるコンサルティングを行っておりますが、ご来店の相談も歓迎です。お一人おひとりに親身にご対応させて頂きたい為、要予約とさせて頂いております。ご来店の際は先ずは下記よりご予約下さい。
募集終了のテナント区画
| 階数 | 坪数 | 賃料 + 共益費 | 敷金/礼金敷金 礼金 | 検討 |
|---|---|---|---|---|
| 1階 | 194.62坪 (643.37m²) | 募集終了 | - | - |
| 2階 | 260.6坪 (861.48m²) | 募集終了 | - | - |
| 3階 | 260.8坪 (862.15m²) | 募集終了 | - | - |
| 4階 | 212.8坪 (703.47m²) | 募集終了 | - | - |
| 4階 | 165.03坪 (545.55m²) | 募集終了 | - | - |
| 4階 | 39.65坪 (131.07m²) | 募集終了 | - | - |
| 5階 | 31.72坪 (104.85m²) | 募集終了 | - | - |
| 6階 | 144.6坪 (478.02m²) | 募集終了 | - | - |
| 7階 | 130.3坪 (430.74m²) | 募集終了 | - | - |
| 8階 | 100.15坪 (331.07m²) | 募集終了 | - | - |
| 9階 | 20.33坪 (67.21m²) | 募集終了 | - | - |
| 9階 | 47.56坪 (157.22m²) | 募集終了 | - | - |
読込中...
神田/秋葉原エリアで名古路ビル本館に似た条件の物件
読込中...
| 取扱様態 | 仲介 |
|---|---|
| 取扱会社 | 株式会社 アットオフィス |