神田平沼ビルの賃料条件
| 階数 | 坪数 | 賃料 + 共益費 | 敷金/礼金敷金 礼金 | 検討 |
|---|---|---|---|---|
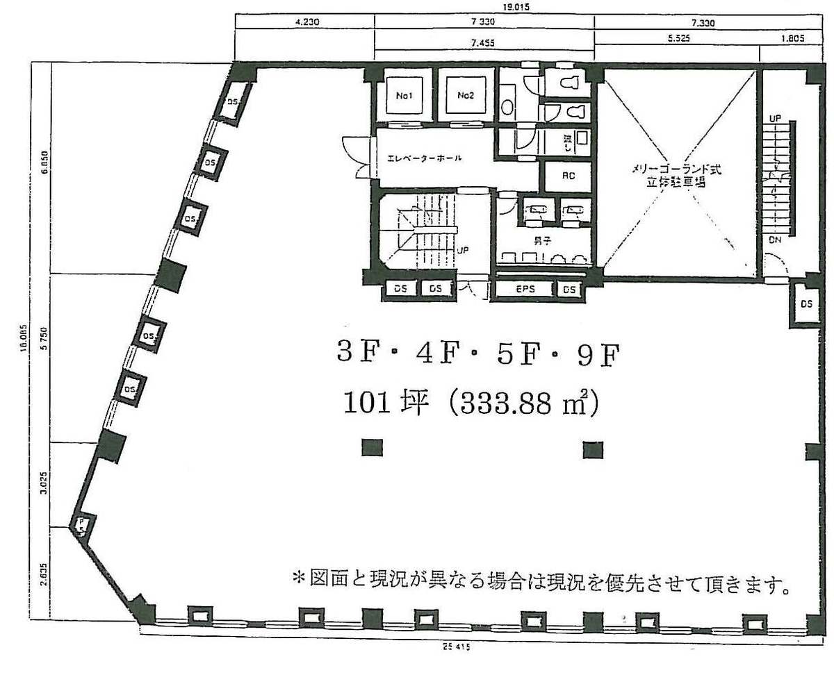
| 3階 | 101坪 (333.88m²) | 1,919,000円 (坪:19,000 円) | 10ヶ月 1ヶ月10ヶ月/1ヶ月 |
※このサイトに記載がある賃貸条件は、敷金・保証金などの預かり金を除き、別途消費税がかかります。
物件情報
設備詳細
| 空調 | 個別空調 |
|---|---|
| トイレ | 男女別トイレ室外 |
| 床仕様 | OA対応床(フリーアクセス) |
| エレベータ | 2 基 |
| 駐車場設備 | 空有 / 機械式駐車場 |
| その他 | 光ファイバー / 24時間利用可 / 管理人常駐 / 機械警備 |
神田平沼ビルの賃貸オフィス・事務所に関するお問い合わせ
神田平沼ビルについて
【神田平沼ビル:明るく開放的なオフィス空間、抜群の立地と利便性】 今日は東京都千代田区に位置する、神田平沼ビルの魅力をたっぷりとご紹介します。このビルは、明るく開放的なオフィス空間と、利便性の高い立地が魅力の賃貸オフィスビルです。どんなビジネスにも最適な環境を提供いたしますので、詳細にご注目ください! 【立地の利便性】 神田平沼ビルは、淡路町駅・小川町駅から徒歩わずか3分、さらに神田駅・新御茶ノ水駅・御茶ノ水駅も徒歩圏内という、アクセス抜群の立地です。複数の駅と路線が利用可能で、都内はもちろん、遠方への移動も容易です。ビジネスチャンスを広げる絶好のロケーションをぜひご活用ください。 【明るく開放的なオフィス空間】 全面リニューアルを経て、各オフィスはL字型の間取りで、自然光溢れる明るい室内が特徴です。個別空調やOAフロアを完備しており、快適なオフィス環境を実現。約100坪のワンフロアがご提供する開放感あふれる空間は、創造性と生産性の向上に貢献します。 【設備・セキュリティ】 24時間利用可能で、月極駐車場を併設。ビル内には管理人が常駐し、安心してお使いいただけるセキュリティ体制を整えています。また、2015年の大規模リニューアルに加え、耐震補強工事も完了しており、安全性にも配慮されています。 【周辺環境】 周辺には飲食店やコンビニエンスストアが充実しており、日常の買い物やランチにも困りません。ビルの立地する外堀通り沿いは、ビジネスマンにとっても便利な環境です。 神田平沼ビルは、1970年に竣工し地上9階建て。エレベーターは2基設置されており、フロアごとに効率的な移動が可能です。地下鉄複数路線の利用が可能な好立地に加え、開放的なオフィス空間、充実した設備とセキュリティ、そして便利な周辺環境と、ビジネスを成功に導くためのすべてが揃っています。 あなたのビジネスの新たな拠点として、神田平沼ビルをぜひご検討ください。ここから新たな歴史が始まります。お問い合わせを心よりお待ちしております。
神田平沼ビルのこだわり
自分で探すより問い合わせる方が早いことがあります
WEB非公開物件があるから
オーナー様のご希望により「WEBでは非公開」にしている物件があります。 それらはWEBでいくら検索しても見つかりません。 先ずは条件などお知らせ頂けましたら非公開物件含め ピッタリのオフィスをご提案させて頂きます。 無理なお勧めはしておりませんので、お気軽にお問い合わせください。
対面でのご相談も受け付けております
ご来店も歓迎です
オフィス移転は社内・社外ともに非公開に行われることが殆どです。そのためアットオフィスでは、基本的に訪問によるコンサルティングを行っておりますが、ご来店の相談も歓迎です。お一人おひとりに親身にご対応させて頂きたい為、要予約とさせて頂いております。ご来店の際は先ずは下記よりご予約下さい。
募集終了のテナント区画
| 階数 | 坪数 | 賃料 + 共益費 | 敷金/礼金敷金 礼金 | 検討 |
|---|---|---|---|---|
| 1階 | 60坪 (198.34m²) | 募集終了 | - | - |
| 2階 | 101坪 (333.88m²) | 募集終了 | - | - |
| 4階 | 101坪 (333.88m²) | 募集終了 | - | - |
| 5階 | 101坪 (333.88m²) | 募集終了 | - | - |
| 6階 | 101坪 (333.88m²) | 募集終了 | - | - |
| 7階 | 101坪 (333.88m²) | 募集終了 | - | - |
| 8階 | 101坪 (333.88m²) | 募集終了 | - | - |
| 9階 | 101坪 (333.88m²) | 募集終了 | - | - |
読込中...
神田/秋葉原エリアで神田平沼ビルに似た条件の物件
読込中...
| 取扱様態 | 仲介 |
|---|---|
| 取扱会社 | 株式会社 アットオフィス |