TSUKIJI EAST SQUARE4階の賃貸情報
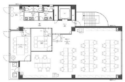
47.67 坪 (157.58m²)
953,400円 (坪:20,000 円)
※このサイトに記載がある賃貸条件は、敷金・保証金などの預かり金を除き、別途消費税がかかります。
TSUKIJI EAST SQUAREの建物概要
設備詳細
| 空調 | 個別空調 |
|---|---|
| トイレ | 男女別トイレ室内 |
| 床仕様 | OA対応床(フリーアクセス) |
| エレベータ | 1 基 |
| 駐車場設備 | - |
| その他 | 機械警備 / 24時間利用可 / 光ファイバー / 新耐震基準 / セットアップ |
TSUKIJI EAST SQUARE4階の賃貸オフィス・事務所に関するお問い合わせ
TSUKIJI EAST SQUAREについて
【TSUKIJI EAST SQUAREビルのご紹介】 東京都中央区入船2丁目に位置する「TSUKIJI EAST SQUAREビル」は、ビジネスの中心地にある洗練されたオフィススペースを提供します。このビルは、新富町駅から徒歩4分、築地駅から徒歩6分という絶好の立地にあり、八丁堀駅からも徒歩圏内であるため、複数の交通機関を利用することが可能です。ビルの基準階面積は約45坪で、個別空調やOAフロアなど、快適なオフィス環境を整備しています。 ビルのエントランスはホテルのような高級感ある雰囲気を持ち、訪れる人々を魅了します。また、大規模なリニューアル工事を実施済みで、ビル全体が非常に綺麗な状態に保たれています。貸室には受付や会議室が設置されており、ビジネスの日々の運営に必要な設備が整っています。さらに、一部の貸室では天井が高く設計されており、開放感あふれるオフィス空間を提供します。また、リフレッシュスペースも設けられているため、働く人々の心身のリラックスも促進されます。 ビルは24時間使用可能であり、週末に業務を行う企業にとっても適しています。また、新耐震基準にも適合しており、安全性の高いビル環境を提供します。これらの特徴は、来客が多い業種のテナントにとっても魅力的であり、ビジネスのさまざまなニーズに応えることができます。 「TSUKIJI EAST SQUAREビル」は、その立地、設備、そして快適なオフィス環境を通じて、テナント企業のビジネスの成功を強力にバックアップします。ビジネスの拠点として最適なこのビルで、新たな歴史を刻みませんか?私たちは、あなたのビジネスが次の段階へと進む手助けをするために、さまざまなサポートを提供する準備が整っています。
TSUKIJI EAST SQUAREのこだわり
自分で探すより問い合わせる方が早いことがあります
WEB非公開物件があるから
オーナー様のご希望により「WEBでは非公開」にしている物件があります。 それらはWEBでいくら検索しても見つかりません。 先ずは条件などお知らせ頂けましたら非公開物件含め ピッタリのオフィスをご提案させて頂きます。 無理なお勧めはしておりませんので、お気軽にお問い合わせください。
対面でのご相談も受け付けております
ご来店も歓迎です
オフィス移転は社内・社外ともに非公開に行われることが殆どです。そのためアットオフィスでは、基本的に訪問によるコンサルティングを行っておりますが、ご来店の相談も歓迎です。お一人おひとりに親身にご対応させて頂きたい為、要予約とさせて頂いております。ご来店の際は先ずは下記よりご予約下さい。
新富/築地エリアでTSUKIJI EAST SQUAREに似た条件の物件
読込中...
TSUKIJI EAST SQUAREと同じ最寄駅の物件
読込中...
| 取扱様態 | 仲介 |
|---|---|
| 取扱会社 | 株式会社 アットオフィス |