※このサイトに記載がある賃貸条件は、敷金・保証金などの預かり金を除き、別途消費税がかかります。
物件情報
設備詳細
| 空調 | 個別空調 |
|---|---|
| トイレ | - |
| 床仕様 | OA対応床(フリーアクセス) |
| エレベータ | 1 基 |
| 駐車場設備 | 空有 |
| その他 | 機械警備 / 大型ビル / 光ファイバー / 新耐震基準 / フリーレント |
後楽園SAJビルの賃貸オフィス・事務所に関するお問い合わせ
後楽園SAJビルについて
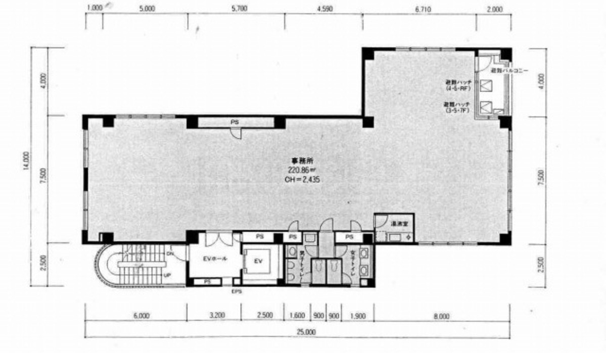
後楽園SAJビルは、文京区本郷1丁目の戦略的な位置にある1992年竣工のオフィスビルです。この物件は、現代のニーズに応じた新耐震基準に準拠しており、安全性と堅牢性に優れています。基準階約65坪の広々としたオフィススペースは、機能性と快適性を兼ね備えており、ビジネスの効率化を図るための理想的な環境を提供します。 ビルの設備は、2400mmの天井高と40mmのOAフロアを採用しており、広い空間感と柔軟なレイアウトが可能です。さらに、個別空調システムにより、各社が独自の快適な作業環境を設定できます。セキュリティ面では、機械警備システムを備え、安全かつ安心なビジネスライフをサポートします。 後楽園SAJビルの立地は、複数の交通アクセスが可能で非常に便利です。後楽園駅と春日駅からは徒歩5分でアクセスでき、本郷三丁目駅や水道橋駅も利用可能です。このアクセスの良さは、ビジネスの機動性を高め、クライアントや従業員の通勤にも便利です。 周辺環境も魅力的で、ビルの向かいには複合商業施設「ラクーア」があります。また、東京ドームシティの近くであり、ビジネス後のリフレッシュやクライアント接待にも最適なロケーションです。周辺にはコンビニや飲食店が豊富にあり、日々の業務に必要なものがすぐに手に入る便利さがあります。 建築面では、長方形の効率的な貸室形状を採用しており、柱の位置が最適化されているため、無駄なスペースが少なく、オフィスレイアウトの自由度が高まります。9階建てのこのビルは、各フロアが明るく開放的な雰囲気を持ち、働くための環境として最適です。 後楽園SAJビルは、耐震性、アクセスの良さ、便利な周辺環境、最先端の設備を備え、どのビジネスにも対応可能な最高のオフィススペースを提供します。このビルを拠点に、あなたのビジネスを次のレベルへと導いてみませんか?
自分で探すより問い合わせる方が早いことがあります
WEB非公開物件があるから
オーナー様のご希望により「WEBでは非公開」にしている物件があります。 それらはWEBでいくら検索しても見つかりません。 先ずは条件などお知らせ頂けましたら非公開物件含め ピッタリのオフィスをご提案させて頂きます。 無理なお勧めはしておりませんので、お気軽にお問い合わせください。
対面でのご相談も受け付けております
ご来店も歓迎です
オフィス移転は社内・社外ともに非公開に行われることが殆どです。そのためアットオフィスでは、基本的に訪問によるコンサルティングを行っておりますが、ご来店の相談も歓迎です。お一人おひとりに親身にご対応させて頂きたい為、要予約とさせて頂いております。ご来店の際は先ずは下記よりご予約下さい。
募集終了のテナント区画
| 階数 | 坪数 | 賃料 + 共益費 | 敷金/礼金敷金 礼金 | 検討 |
|---|---|---|---|---|
| 2階 | 65.97坪 (218.1m²) | 募集終了 | - | - |
| 2階 | 463.52坪 (1532.3m²) | 募集終了 | - | - |
| 3階 | 65.97坪 (218.1m²) | 募集終了 | - | - |
| 4階 | 65.97坪 (218.1m²) | 募集終了 | - | - |
| 5階 | 65.97坪 (218.1m²) | 募集終了 | - | - |
| 6階 | 65.97坪 (218.1m²) | 募集終了 | - | - |
| 7階 | 65.97坪 (218.1m²) | 募集終了 | - | - |
| 9階 | 33.97坪 (112.29m²) | 募集終了 | - | - |
読込中...
湯島/本郷/後楽園エリアで後楽園SAJビルに似た条件の物件
読込中...
| 取扱様態 | 仲介 |
|---|---|
| 取扱会社 | 株式会社 アットオフィス |