上野THビル3階の賃貸情報
171.25 坪 (566.12m²)
※このサイトに記載がある賃貸条件は、敷金・保証金などの預かり金を除き、別途消費税がかかります。
上野THビルの建物概要
設備詳細
| 空調 | 個別空調 |
|---|---|
| トイレ | - |
| 床仕様 | OA対応床(フリーアクセス) |
| エレベータ | 2 基 |
| 駐車場設備 | - |
| その他 | 大型ビル / 新耐震基準 |
上野THビルについて
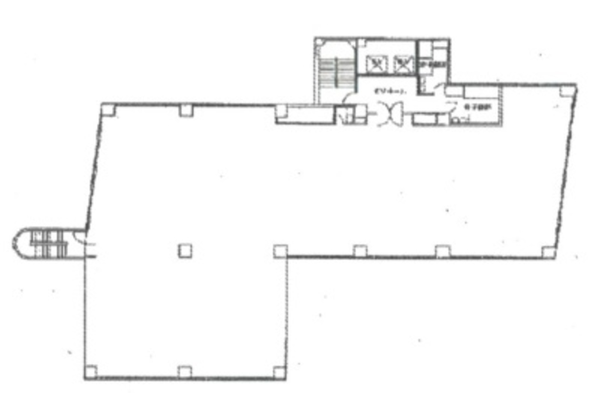
上野THビル(文京区湯島3丁目)は、東京のビジネス中心地の一角に位置する賃貸オフィスビルです。このビルは1986年に竣工され、8階建ての構造で、基準階面積が約171.25坪となっております。文京区という文教地区に所在しつつ、上野広小路駅から徒歩3分という絶好のアクセスを誇ります。さらに、JR御徒町駅や湯島駅も利用可能で、複数の交通手段が選択できるため、ビジネスの拠点として最適です。 このビルの特徴として、耐震性に優れた建築技術が用いられており、安心して業務を行うことができます。オフィスフロアはL字型の間取りで、広々とした使いやすい空間が広がっています。全フロアにわたりOAフロアが完備されており、高いIT設備の利用が可能です。また、2基のエレベーターが設置されており、ビル内の移動もスムーズです。 セキュリティ面では、機械警備により24時間体制で安全が保たれています。エントランスは明るく開放的な白を基調とした造りで、来訪者を迎え入れる顔としても申し分ありません。さらに、ビル内にはコンビニエンスストアが隣接しており、日常の買い物にも便利です。駐車場も完備されており、車での通勤やビジネス利用にも対応しています。 周辺環境としては、春日通りに面しており、多くの飲食店が立ち並び、ビジネスランチやアフター5の利用にも困りません。また、上野広小路バス停がすぐそばにあるため、都内外への移動も容易です。 総じて、上野THビルは立地、設備、セキュリティの全てにおいてビジネスニーズを高く満たすオフィスビルです。こちらのビルでビジネスを展開することで、効率的かつ快適に仕事を進めることが期待できます。興味を持たれた企業や事業主の方は、ぜひ一度、現地を訪れてみることをお勧めします。
自分で探すより問い合わせる方が早いことがあります
WEB非公開物件があるから
オーナー様のご希望により「WEBでは非公開」にしている物件があります。 それらはWEBでいくら検索しても見つかりません。 先ずは条件などお知らせ頂けましたら非公開物件含め ピッタリのオフィスをご提案させて頂きます。 無理なお勧めはしておりませんので、お気軽にお問い合わせください。
対面でのご相談も受け付けております
ご来店も歓迎です
オフィス移転は社内・社外ともに非公開に行われることが殆どです。そのためアットオフィスでは、基本的に訪問によるコンサルティングを行っておりますが、ご来店の相談も歓迎です。お一人おひとりに親身にご対応させて頂きたい為、要予約とさせて頂いております。ご来店の際は先ずは下記よりご予約下さい。
湯島/本郷/後楽園エリアで上野THビルに似た条件の物件
読込中...
上野THビルと同じ最寄駅の物件
読込中...
| 取扱様態 | 仲介 |
|---|---|
| 取扱会社 | 株式会社 アットオフィス |