アイ・アンド・イー池袋ビル4階の賃貸情報
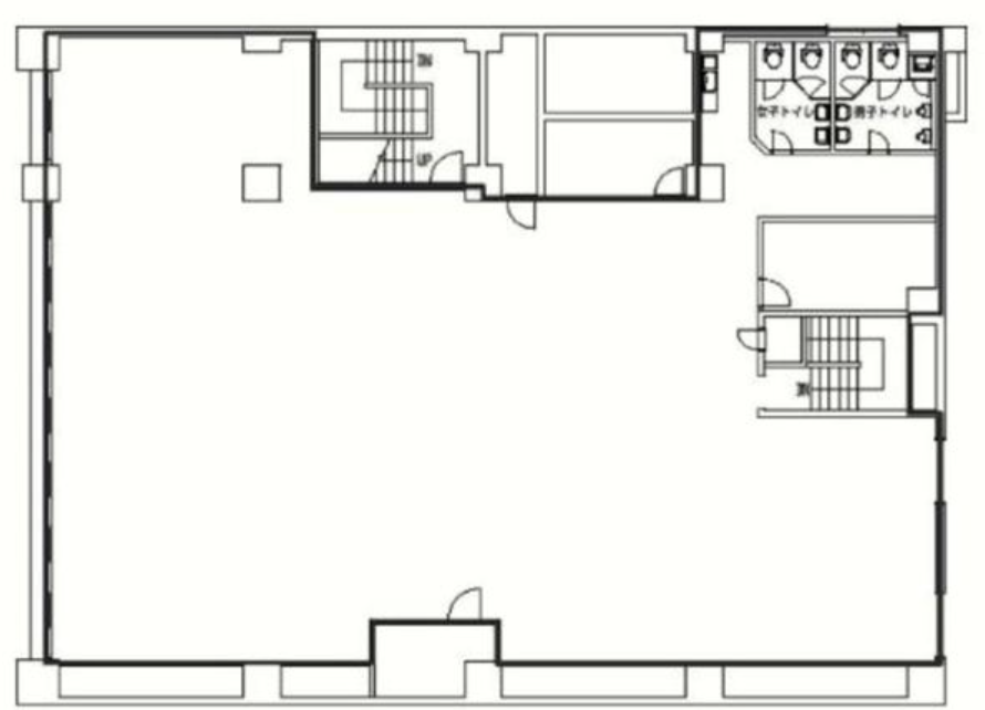
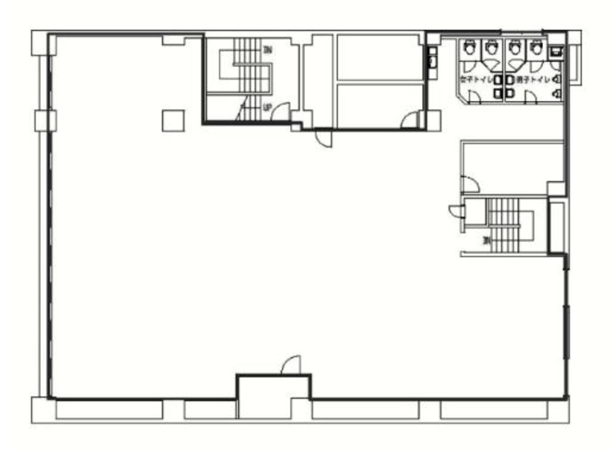
48.17 坪 (159.23m²)
※このサイトに記載がある賃貸条件は、敷金・保証金などの預かり金を除き、別途消費税がかかります。
アイ・アンド・イー池袋ビルの建物概要
設備詳細
| 空調 | 個別空調 |
|---|---|
| トイレ | 男女別トイレ室内 |
| 床仕様 | OA対応床(フリーアクセス) |
| エレベータ | 2 基 |
| 駐車場設備 | - |
| その他 | 大型ビル |
アイ・アンド・イー池袋ビル4階の賃貸オフィス・事務所に関するお問い合わせ
アイ・アンド・イー池袋ビルについて
### アイ・アンド・イー池袋ビルのご紹介 今日は豊島区南池袋に位置する「アイ・アンド・イー池袋ビル」をご紹介いたします。このビルはその利便性と充実した設備で、多くの企業様におすすめのオフィス賃貸物件です。一緒に、このビルの魅力を探っていきましょう! #### 立地の魅力 「アイ・アンド・イー池袋ビル」は、池袋駅から徒歩5分という抜群のアクセスを誇ります。特に、地下鉄池袋駅の39番出口からは、ビルまでほんの数歩ですので、雨の日でもストレスなく通勤できます。周辺にはコンビニエンスストアや飲食店が多数あり、ランチやちょっとした買い物にも非常に便利な環境が整っています。また、南池袋郵便局や金融機関も近くにあるため、ビジネスを行う上での利便性も抜群です。 #### ビルの特徴と設備 アイ・アンド・イー池袋ビルは、地上12階建ての大型オフィスビルで、基準階面積は122坪と広々とした空間を提供しています。ビル内にはエレベーターが2基設置されており、多くの従業員がいる企業様でも快適にご利用いただけます。1975年に竣工されたこのビルは、2017年に外壁改修と全面塗装工事を完了しており、外観も美しく保たれています。 ビルの外観は重厚感のある黒いパネル張りで、要塞のような印象を与えますが、エントランス内部は白を基調とした開放的なデザインとなっており、来客の方々も快適に過ごせる空間になっています。 #### オフィスの利便性 このビルのオフィス空間は、OAフロアの設置が可能で、個別空調も完備されています。広々としたワンフロア100坪超えのスペースは、オープンプランやセミオープンプランなど、多様なオフィスレイアウトにも対応可能です。また、駐車場も併設されており、車通勤をされる方にも便利な環境です。 #### ビジネスにおける利点 池袋エリアは、多くの企業が集まるビジネス拠点として非常に人気があります。アイ・アンド・イー池袋ビルは、その中でも特にアクセスの良さと広いオフィススペースが特徴で、スタートアップ企業から大規模な企業まで幅広いニーズに対応可能です。初期費用も抑え目で、コストパフォーマンスにも優れているため、新たなビジネスの拠点としても最適です。 #### 周辺環境 ビルの周辺には、豊富な飲食店やカフェがあり、ランチタイムやアフターファイブの時間も充実しています。さらに、駅近くには大型商業施設もあり、ショッピングやリフレッシュにも困りません。これだけの環境が整っているため、従業員の満足度も高まることでしょう。 ### まとめ アイ・アンド・イー池袋ビルは、その立地の良さと充実した設備、広々としたオフィス空間が大きな魅力です。ビジネスを成功させるための最適な環境が整っており、スタートアップから大企業まで幅広いニーズに応えることができます。ぜひ一度、この素晴らしいオフィスビルを見学にお越しください。お問い合わせお待ちしております!
自分で探すより問い合わせる方が早いことがあります
WEB非公開物件があるから
オーナー様のご希望により「WEBでは非公開」にしている物件があります。 それらはWEBでいくら検索しても見つかりません。 先ずは条件などお知らせ頂けましたら非公開物件含め ピッタリのオフィスをご提案させて頂きます。 無理なお勧めはしておりませんので、お気軽にお問い合わせください。
対面でのご相談も受け付けております
ご来店も歓迎です
オフィス移転は社内・社外ともに非公開に行われることが殆どです。そのためアットオフィスでは、基本的に訪問によるコンサルティングを行っておりますが、ご来店の相談も歓迎です。お一人おひとりに親身にご対応させて頂きたい為、要予約とさせて頂いております。ご来店の際は先ずは下記よりご予約下さい。
池袋/大塚/目白エリアでアイ・アンド・イー池袋ビルに似た条件の物件
読込中...
アイ・アンド・イー池袋ビルと同じ最寄駅の物件
読込中...
| 取扱様態 | 仲介 |
|---|---|
| 取扱会社 | 株式会社 アットオフィス |