ライオンズステーションプラザ半蔵門B1階の賃貸情報
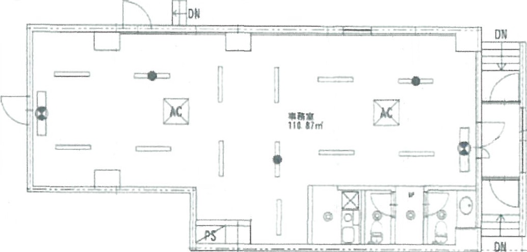
34.29 坪 (113.35m²)
※このサイトに記載がある賃貸条件は、敷金・保証金などの預かり金を除き、別途消費税がかかります。
ライオンズステーションプラザ半蔵門の建物概要
設備詳細
| 空調 | 個別空調 |
|---|---|
| トイレ | - |
| 床仕様 | OA対応床(フリーアクセス) |
| エレベータ | 1 基 |
| 駐車場設備 | - |
| その他 | SOHO/マンション / 光ファイバー / 機械警備 / オートロック / 管理人常駐 / クリニック |
ライオンズステーションプラザ半蔵門B1階の賃貸オフィス・事務所に関するお問い合わせ
ライオンズステーションプラザ半蔵門について
ライオンズステーションプラザ半蔵門ビルは、首都東京の中心、千代田区麹町1丁目に位置する魅力的な物件です。このビルは、半蔵門駅から徒歩わずか1分という、非常にアクセスしやすい場所に立地しており、ビジネスの中心地として最適な環境を提供します。また、麹町駅や永田町駅も徒歩圏内にあり、複数の路線が利用可能で交通の便が非常に良いのが特徴です。 1982年に竣工し、新耐震基準に準拠して建てられたこのビルは、安全性にも配慮されております。外観は赤レンガ色を基調とした温かみのあるデザインで、街並みに溶け込むシンプルながらも味わい深い設計となっています。ビルの1階は、角地に位置し視認性が高い店舗区画が設けられており、SOHOや事務所利用の相談にも応じております。ビル内にはエレベーターが1機設置されており、駐車場も完備されていますので、お車でのアクセスにも便利です(空き状況については要確認)。 貸室はシンプルな形状でレイアウトがしやすく、事業のニーズに合わせたカスタマイズが可能です。ビルの立地する麹町エリアは、大通り「新宿通り」から一本入ったところに位置しており、人や車の往来が多い活気あるエリアです。周辺には平河天満宮や国立劇場などの文化施設があり、ビジネスだけでなく文化的な充実も享受できます。 ライオンズステーションプラザ半蔵門ビルは、その立地、設備、安全性を兼ね備え、ビジネスの拠点としてはもちろんのこと、文化的な価値も高いエリアでの活動を望む企業にとって理想的な環境を提供します。ビジネスの成功と発展を目指す皆様にとって、このビルは魅力的な選択肢の一つであることは間違いありません。お問い合わせをお待ちしております。
ライオンズステーションプラザ半蔵門のこだわり
その他の区画
| 階数 | 坪数 | 賃料 + 共益費 | 敷金/礼金敷金 礼金 | 検討 |
|---|---|---|---|---|
| 1階 | 51.08坪 (168.87m²) | 1,150,000円 (坪:22,513 円) | 10ヶ月 1ヶ月10ヶ月/1ヶ月 |
自分で探すより問い合わせる方が早いことがあります
WEB非公開物件があるから
オーナー様のご希望により「WEBでは非公開」にしている物件があります。 それらはWEBでいくら検索しても見つかりません。 先ずは条件などお知らせ頂けましたら非公開物件含め ピッタリのオフィスをご提案させて頂きます。 無理なお勧めはしておりませんので、お気軽にお問い合わせください。
対面でのご相談も受け付けております
ご来店も歓迎です
オフィス移転は社内・社外ともに非公開に行われることが殆どです。そのためアットオフィスでは、基本的に訪問によるコンサルティングを行っておりますが、ご来店の相談も歓迎です。お一人おひとりに親身にご対応させて頂きたい為、要予約とさせて頂いております。ご来店の際は先ずは下記よりご予約下さい。
番町/麹町/平河町エリアでライオンズステーションプラザ半蔵門に似た条件の物件
読込中...
ライオンズステーションプラザ半蔵門と同じ最寄駅の物件
読込中...
| 取扱様態 | 仲介 |
|---|---|
| 取扱会社 | 株式会社 アットオフィス |