TTDビル3階の賃貸情報
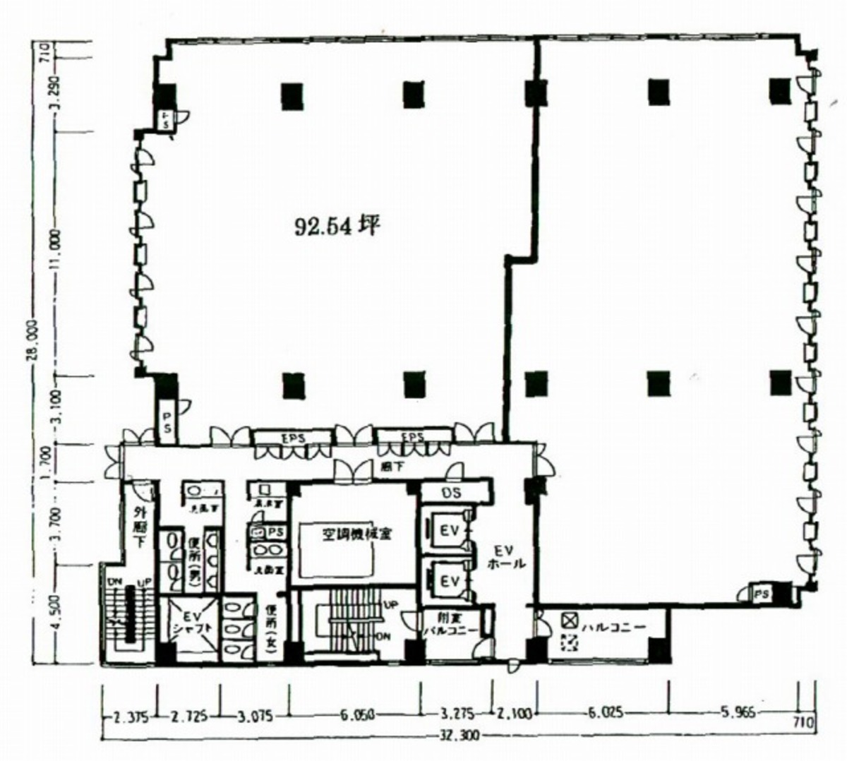
92.54 坪 (305.92m²)
※このサイトに記載がある賃貸条件は、敷金・保証金などの預かり金を除き、別途消費税がかかります。
TTDビルの建物概要
設備詳細
| 空調 | セントラル空調 |
|---|---|
| トイレ | - |
| 床仕様 | - |
| エレベータ | 2 基 |
| 駐車場設備 | 空有 |
| その他 | オートロック / 機械警備 / 24時間利用可 / 管理人常駐 / クリニック / 東京賃料が坪11000円以下 |
TTDビルについて
ご検討中の賃貸オフィスに、港区三田に聳え立つ「TTD PLAZA(TTDプラザ)/台湾貿易センター」をぜひお勧めします。このビルは、1992年に竣工された鉄骨鉄筋コンクリート造の耐震性に優れた建物であり、そのグレーの石造りの外観は重厚感があり、ビジネスの場としての信頼感を与えます。 「TTD PLAZA」は、基準階約191坪の広々としたオフィススペースを提供しております。その明るく清潔感あふれるオフィスは、窓面が多く採光性に優れ、働く皆様の創造性と生産性を高める環境を提供します。また、貸室内に設置された男女別のトイレや給湯設備など、快適にご利用いただける設備が整っております。 ビルのセキュリティには、機械式警備と24時間体制の常駐警備を併用し、オートロックも付いておりますので、安心してご使用いただけます。また、機械式の駐車場も併設しており、ビジネスの利便性を高めています。 立地においても「TTD PLAZA」は魅力的です。赤羽橋駅から徒歩5分、麻布十番駅からは徒歩4分というアクセスの良さは、ビジネスの機会を広げる上で大きな強みとなります。周辺には飲食店やクリニック、美容サロンなどが点在しており、ビジネスだけでなく日々の生活にも便利です。 このビルは、その立地、設備、セキュリティ、そして環境のすべてにおいて、皆様のビジネスを成功に導くための最適な場所です。豊かな自然光が差し込む快適なオフィスで、皆様のビジネスの新たな一歩を踏み出しませんか?「TTD PLAZA」で、皆様のビジネスを次のレベルへと導きましょう。
自分で探すより問い合わせる方が早いことがあります
WEB非公開物件があるから
オーナー様のご希望により「WEBでは非公開」にしている物件があります。 それらはWEBでいくら検索しても見つかりません。 先ずは条件などお知らせ頂けましたら非公開物件含め ピッタリのオフィスをご提案させて頂きます。 無理なお勧めはしておりませんので、お気軽にお問い合わせください。
対面でのご相談も受け付けております
ご来店も歓迎です
オフィス移転は社内・社外ともに非公開に行われることが殆どです。そのためアットオフィスでは、基本的に訪問によるコンサルティングを行っておりますが、ご来店の相談も歓迎です。お一人おひとりに親身にご対応させて頂きたい為、要予約とさせて頂いております。ご来店の際は先ずは下記よりご予約下さい。
近くのエリアで探してみる
浜松町/田町/芝公園エリアでTTDビルに似た条件の物件
読込中...
TTDビルと同じ最寄駅の物件
読込中...
| 取扱様態 | 仲介 |
|---|---|
| 取扱会社 | 株式会社 アットオフィス |