新宿アイランドタワー20階の賃貸情報
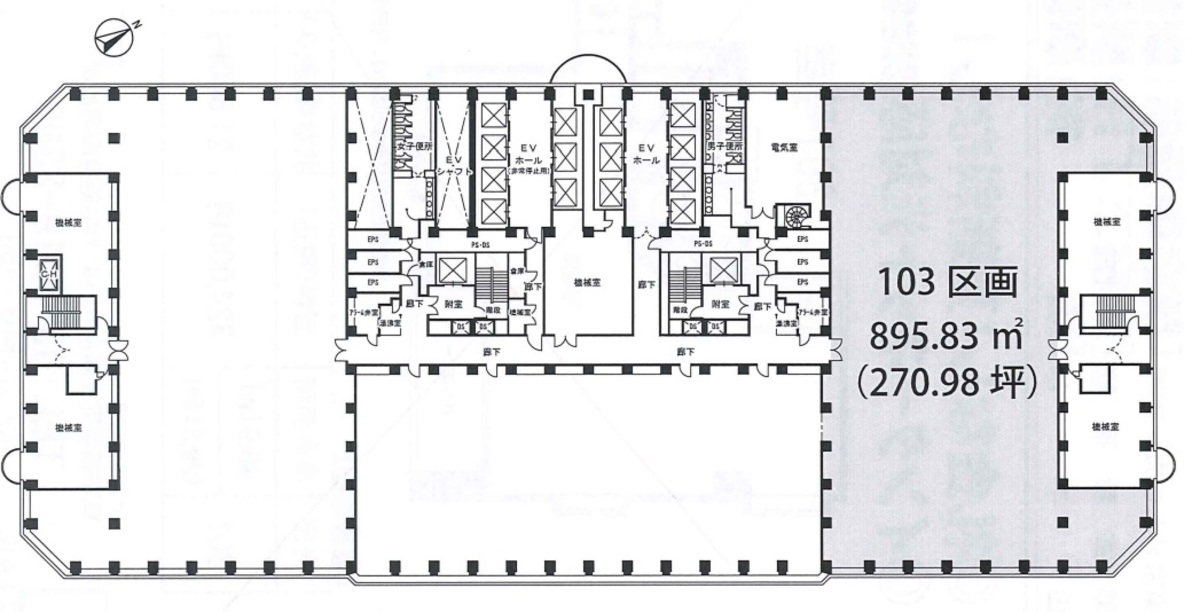
270.98 坪 (895.83m²)
※このサイトに記載がある賃貸条件は、敷金・保証金などの預かり金を除き、別途消費税がかかります。
新宿アイランドタワーの建物概要
設備詳細
| 空調 | セントラル空調 |
|---|---|
| トイレ | 男女別トイレ室外 |
| 床仕様 | OA対応床(フリーアクセス) |
| エレベータ | 43 基 |
| 駐車場設備 | 敷地内駐車場 |
| その他 | 24時間利用可 / 光ファイバー / 新耐震基準 / 機械警備 / 管理人常駐 / 駅直結 / クリニック |
新宿アイランドタワーについて
新宿区西新宿に位置する新宿アイランドタワーは、現代ビジネスのダイナミズムと革新を体現するハイグレードオフィスビルです。この地に建つ44階建ての超高層ビルは、その優れた設備と利便性で、企業の活動を最大限サポートします。基準階面積約775坪の広大なオフィスフロアは、横93.7m、縦40.9mに及び、4面採光により自然光が満ちあふれる明るい空間を提供。天井高2.7m、OAフロア高さ50mm~100mmの開放的なデザインは、快適なオフィス環境を実現します。床加重は標準300kg/㎡、ヘビーデューティーゾーンでは500kg/㎡に対応し、企業の様々なニーズに応える柔軟性を持っています。 最新のテクノロジーを駆使したセンサーによる自動制御空調システムは、オフィス内の快適な温度を一年中保ち、窓のブラインドはボタン一つで自動開閉する便利さを提供します。これらは、効率的かつ快適な労働環境を築くための重要な要素です。 新宿アイランドタワーは、約20,000㎡の敷地内にオフィスゾーン、住宅、店舗、コミュニティ施設、専門学校、広場を融合させた複合施設です。ビル内にはコンビニ、レストラン、カフェなどが揃い、日常の利便性はもちろん、ビジネスシーンでも活躍します。また、地下4階、地上44階建てのこのビルは、延床面積65,556坪に及び、35基のエレベーターがスムーズな移動をサポートします。 立地においても、東京メトロ西新宿駅に直結し、JR新宿駅や都営大江戸線都庁前駅からも徒歩圏内という絶好のアクセス条件を誇ります。この抜群の立地は、ビジネスの機動性を高めるだけでなく、多様なライフスタイルをサポートします。 新宿アイランドタワーは、耐震性にも優れ、1995年竣工の新耐震基準を満たした安全なビルです。24時間利用可能なセキュリティ体制、充実した設備、そして便利な立地は、ビジネスの成功を後押しする最適な環境を提供します。新宿という日本を代表するビジネスエリアの中心にありながら、日々の業務に必要なすべてを兼ね備えた新宿アイランドタワーは、企業のパフォーマンスを最大限に引き出す理想的なオフィス空間です。
自分で探すより問い合わせる方が早いことがあります
WEB非公開物件があるから
オーナー様のご希望により「WEBでは非公開」にしている物件があります。 それらはWEBでいくら検索しても見つかりません。 先ずは条件などお知らせ頂けましたら非公開物件含め ピッタリのオフィスをご提案させて頂きます。 無理なお勧めはしておりませんので、お気軽にお問い合わせください。
対面でのご相談も受け付けております
ご来店も歓迎です
オフィス移転は社内・社外ともに非公開に行われることが殆どです。そのためアットオフィスでは、基本的に訪問によるコンサルティングを行っておりますが、ご来店の相談も歓迎です。お一人おひとりに親身にご対応させて頂きたい為、要予約とさせて頂いております。ご来店の際は先ずは下記よりご予約下さい。
新宿/西新宿エリアで新宿アイランドタワーに似た条件の物件
読込中...
新宿アイランドタワーと同じ最寄駅の物件
読込中...
| 取扱様態 | 仲介 |
|---|---|
| 取扱会社 | 株式会社 アットオフィス |