※このサイトに記載がある賃貸条件は、敷金・保証金などの預かり金を除き、別途消費税がかかります。
物件情報
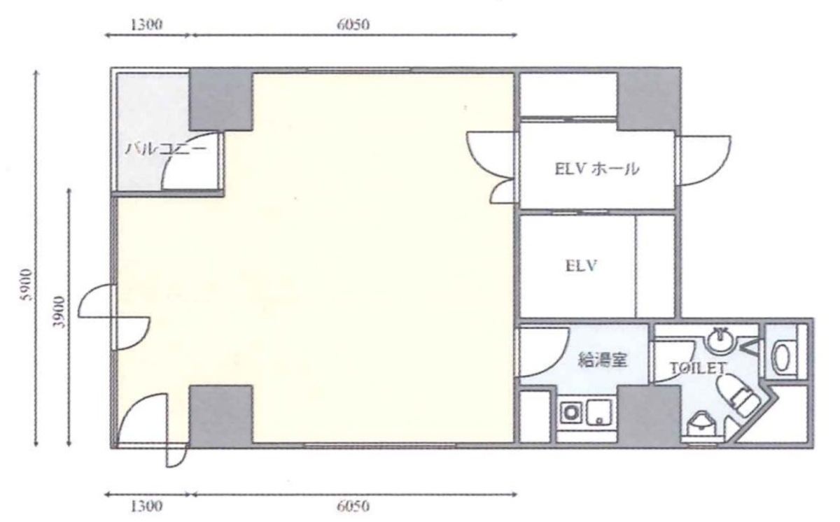
設備詳細
| 空調 | - |
|---|---|
| トイレ | 男女共用トイレ・室内 |
| 床仕様 | - |
| エレベータ | 1 基 |
| 駐車場設備 | - |
| その他 | 新耐震基準 |
MSB Kamiyachoの賃貸オフィス・事務所に関するお問い合わせ
MSB Kamiyachoについて
虎ノ門RICHビルは、東京都港区虎ノ門5-11-13に位置する、ビジネスシーンにおいて理想的な立地条件を有する賃貸事務所物件でございます。当ビルは、東京メトロ日比谷線の神谷町駅から徒歩わずか1分というアクセスの良さを誇り、ビジネスの中心地である虎ノ門エリアにおいて非常に価値の高い位置にございます。本物件の最大の特徴は、そのコンパクトながらも機能的な設計にあります。ワンフロア20坪未満のオフィススペースは、スタートアップ企業や小規模なビジネスオペレーションに最適で、効率的かつ効果的な業務の推進を可能にします。 外観は、高級感溢れる御影石を使用しており、ビジネスの顔としての信頼感と品格を与えてくれます。また、エレベーターを1基設置しており、日常的な業務の流れをスムーズにサポートします。セキュリティ面では、機械警備により安心して業務に専念できる環境を提供いたします。 立地条件の面では、虎ノ門RICHビルは桜田通りに面しており、周辺にはカフェ、コンビニ、飲食店、金融機関、郵便局といったビジネスに必要なあらゆる施設が充実しています。これにより、従業員の方々の日々の利便性が大きく向上し、またビジネスゲストのおもてなしにも最適な環境が整っています。 内装に関しては、パイプスペースを共用廊下に配置することで、オフィス内のデッドスペースを最小限に抑え、柔軟なレイアウトが可能となっております。これにより、各企業のビジネスニーズに合わせたカスタマイズが容易に行え、快適かつ生産性の高いオフィス環境を実現できます。 虎ノ門RICHビルは、その高い利便性、機能性、そして周辺環境の充実さから、ビジネスの成功に不可欠な要素を多面的に備えた賃貸事務所物件です。ビジネスの拠点として最適なこのビルで、あなたの企業活動をより一層充実させ、成功へと導く環境をぜひともご検討ください。
MSB Kamiyachoのこだわり
自分で探すより問い合わせる方が早いことがあります
WEB非公開物件があるから
オーナー様のご希望により「WEBでは非公開」にしている物件があります。 それらはWEBでいくら検索しても見つかりません。 先ずは条件などお知らせ頂けましたら非公開物件含め ピッタリのオフィスをご提案させて頂きます。 無理なお勧めはしておりませんので、お気軽にお問い合わせください。
対面でのご相談も受け付けております
ご来店も歓迎です
オフィス移転は社内・社外ともに非公開に行われることが殆どです。そのためアットオフィスでは、基本的に訪問によるコンサルティングを行っておりますが、ご来店の相談も歓迎です。お一人おひとりに親身にご対応させて頂きたい為、要予約とさせて頂いております。ご来店の際は先ずは下記よりご予約下さい。
募集終了のテナント区画
| 階数 | 坪数 | 賃料 + 共益費 | 敷金/礼金敷金 礼金 | 検討 |
|---|---|---|---|---|
| 1階 | 12坪 (39.67m²) | 募集終了 | - | - |
| 3階 | 16.7坪 (55.21m²) | 募集終了 | - | - |
| 4階 | 55.21坪 (182.51m²) | 募集終了 | - | - |
| 4階 | 16.7坪 (55.21m²) | 募集終了 | - | - |
| 5階 | 55.21坪 (182.51m²) | 募集終了 | - | - |
| 5階 | 16.7坪 (55.21m²) | 募集終了 | - | - |
| 6階 | 55.21坪 (182.51m²) | 募集終了 | - | - |
| 6階 | 16.7坪 (55.21m²) | 募集終了 | - | - |
| 7階 | 16.7坪 (55.21m²) | 募集終了 | - | - |
| 8階 | 16.7坪 (55.2m²) | 募集終了 | - | - |
| 9階 | 16.7坪 (55.21m²) | 募集終了 | - | - |
| 10階 | 16.7坪 (55.21m²) | 募集終了 | - | - |
読込中...
近くのエリアで探してみる
新橋/虎ノ門/神谷町エリアでMSB Kamiyachoに似た条件の物件
読込中...
| 取扱様態 | 仲介 |
|---|---|
| 取扱会社 | 株式会社 アットオフィス |