ニュー銀座ビル9階の賃貸情報
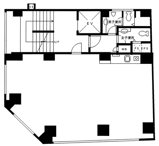
24.38 坪 (80.59m²)
※このサイトに記載がある賃貸条件は、敷金・保証金などの預かり金を除き、別途消費税がかかります。
ニュー銀座ビルの建物概要
設備詳細
| 空調 | 個別空調 |
|---|---|
| トイレ | 男女別トイレ室外 |
| 床仕様 | - |
| エレベータ | 1 基 |
| 駐車場設備 | - |
| その他 | 機械警備 |
ニュー銀座ビル9階の賃貸オフィス・事務所に関するお問い合わせ
ニュー銀座ビルについて
ニュー銀座ビルは、都心のビジネスエリアとして名高い東京都中央区銀座3丁目に位置する、企業のニーズに応えるオフィス賃貸ビルです。本稿では、当ビルの主要な特徴、立地、設備について詳細に解説し、その独自の魅力とビジネスにおける利点を強調していきます。 【立地の優位性】 ニュー銀座ビルは、昭和通りの角地に位置し、その視認性の高さが特徴です。東京メトロ日比谷線および都営地下鉄浅草線の東銀座駅から徒歩1分、3分という、ビジネスマンにとって理想的なアクセスの良さを誇ります。この立地は、従業員の通勤の利便性はもちろん、取引先やクライアントとの面会においても圧倒的なアドバンテージを提供します。 【物件の特徴】 当ビルは、1、2階がサービス店舗、3階以上がオフィススペースとなっており、多様なビジネスニーズに対応可能な構造をしています。基準階は約24.38坪となっており、中小企業からスタートアップ企業まで、さまざまな規模の企業が活用しやすい広さです。また、窓面が2面あり、室内の採光が非常に良好であるため、作業環境が明るく快適です。 【設備面の充実】 ニュー銀座ビルは、1機のエレベーターを備え、効率的な移動をサポートします。また、セキュリティは機械警備を採用しており、テナント企業の安心・安全を確保しています。さらに、室外トイレが男女別であり、ビル側で清掃を行っているため、テナントは内部清掃の手間を省くことができます。袖看板の使用も別途契約にて可能であり、企業のブランディングにも寄与します。 【ビジネスにおける利点】 立地の利便性、機能的なオフィススペース、充実した設備は、テナント企業がビジネスを展開するうえで大きな利点となります。銀座という一等地にオフィスを構えることで、企業イメージの向上やビジネスチャンスの拡大が期待できます。また、快適なオフィス環境は、従業員の働きやすさと生産性の向上にも寄与します。 ニュー銀座ビルは、その立地と設備、機能性を兼ね備えたオフィスビルとして、多くのビジネスシーンでの活用が期待されます。中央区や銀座でのオフィス探しにおいて、ニュー銀座ビルはあなたの企業にとって最適な選択肢の一つとなるでしょう。
ニュー銀座ビルのこだわり
自分で探すより問い合わせる方が早いことがあります
WEB非公開物件があるから
オーナー様のご希望により「WEBでは非公開」にしている物件があります。 それらはWEBでいくら検索しても見つかりません。 先ずは条件などお知らせ頂けましたら非公開物件含め ピッタリのオフィスをご提案させて頂きます。 無理なお勧めはしておりませんので、お気軽にお問い合わせください。
対面でのご相談も受け付けております
ご来店も歓迎です
オフィス移転は社内・社外ともに非公開に行われることが殆どです。そのためアットオフィスでは、基本的に訪問によるコンサルティングを行っておりますが、ご来店の相談も歓迎です。お一人おひとりに親身にご対応させて頂きたい為、要予約とさせて頂いております。ご来店の際は先ずは下記よりご予約下さい。
銀座エリアでニュー銀座ビルに似た条件の物件
読込中...
ニュー銀座ビルと同じ最寄駅の物件
読込中...
| 取扱様態 | 仲介 |
|---|---|
| 取扱会社 | 株式会社 アットオフィス |