日比谷セントラルビルの賃料条件
| 階数 | 坪数 | 賃料 + 共益費 | 敷金/礼金敷金 礼金 | 検討 |
|---|---|---|---|---|
| 5階 | 18.54坪 (61.28m²) | お問合せ下さい (坪:-) | 相談 無相談/無 | |
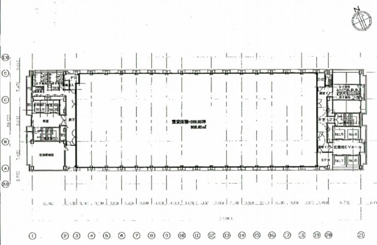
| 16階 | 289.93坪 (958.44m²) | お問合せ下さい (坪:-) | 相談 無相談/無 |
※このサイトに記載がある賃貸条件は、敷金・保証金などの預かり金を除き、別途消費税がかかります。
物件情報
設備詳細
| 空調 | 個別空調 |
|---|---|
| トイレ | 男女別トイレ / 男女別トイレ室外 |
| 床仕様 | OA対応床(フリーアクセス) |
| エレベータ | 11 基 / エレベーター有 |
| 駐車場設備 | 敷地内駐車場 |
| その他 | 大型ビル / 光ファイバー / 高層ビル / 機械警備 / 24時間利用可 / 管理人常駐 / 大通り面する / オートロック / カフェテリア / 無料ラウンジ / クリニック / 新耐震基準 |
日比谷セントラルビルの賃貸オフィス・事務所に関するお問い合わせ
日比谷セントラルビルについて
東京都港区西新橋に位置する日比谷セントラルビルは、ビジネスの中心地における理想的なオフィススペースを提供します。このビルは、交通の利便性が非常に高く、都営三田線内幸町駅からは直通で徒歩わずか2分、他にも銀座線虎ノ門駅、日比谷線日比谷駅、JR線新橋駅といった複数の駅が徒歩圏内にあります。この立地は、従業員や顧客のアクセスにとって大きなメリットとなり得ます。 日比谷セントラルビルの最大の特長は、そのレイアウトの柔軟性です。長方形で無柱の室内は、様々なオフィスレイアウトに適応可能で、明るく開放的な空間を提供します。基準階面積は290坪弱であり、ニーズに応じて分割区画のご相談も可能です。内装に関しては、窓が多く自然光が豊富に入り、働く人々の創造性と生産性を高める環境が整っています。 ビル内には、カフェや飲食店、薬局などが入居しており、日常の利便性が高いです。さらに、隣接する日比谷国際ビルや富国生命ビルにも飲食店があり、フットサルコートや日比谷公園が近隣にあるため、リフレッシュやアフター5の活動にも最適です。 安心の有人管理体制により、ビルは常に最高の状態に保たれ、視認性の高さもビジネスにおけるプラスポイントとなります。男女別のお手洗いや、待ち時間の少ない8基のエレベーターも完備されており、日々の業務がよりスムーズに進むことでしょう。 日比谷セントラルビルは、その立地の良さ、レイアウトの柔軟性、充実した設備と周辺環境により、あらゆるビジネスにおいて理想的なオフィススペースを提供します。この場所でビジネスを展開することは、企業のイメージ向上と効率の良い運営が見込めるため、是非一度ご覧いただきたい物件でございます。
自分で探すより問い合わせる方が早いことがあります
WEB非公開物件があるから
オーナー様のご希望により「WEBでは非公開」にしている物件があります。 それらはWEBでいくら検索しても見つかりません。 先ずは条件などお知らせ頂けましたら非公開物件含め ピッタリのオフィスをご提案させて頂きます。 無理なお勧めはしておりませんので、お気軽にお問い合わせください。
対面でのご相談も受け付けております
ご来店も歓迎です
オフィス移転は社内・社外ともに非公開に行われることが殆どです。そのためアットオフィスでは、基本的に訪問によるコンサルティングを行っておりますが、ご来店の相談も歓迎です。お一人おひとりに親身にご対応させて頂きたい為、要予約とさせて頂いております。ご来店の際は先ずは下記よりご予約下さい。
募集終了のテナント区画
| 階数 | 坪数 | 賃料 + 共益費 | 敷金/礼金敷金 礼金 | 検討 |
|---|---|---|---|---|
| B1階 | 22.93坪 (75.8m²) | 募集終了 | - | - |
| B1階 | 106.32坪 (351.47m²) | 募集終了 | - | - |
| 3階 | 289.93坪 (958.45m²) | 募集終了 | - | - |
| 5階 | 28.81坪 (95.23m²) | 募集終了 | - | - |
| 5階 | 29.73坪 (98.28m²) | 募集終了 | - | - |
| 5階 | 20.27坪 (67m²) | 募集終了 | - | - |
| 5階 | 19.51坪 (64.49m²) | 募集終了 | - | - |
| 5階 | 19.57坪 (64.69m²) | 募集終了 | - | - |
| 5階 | 18.42坪 (60.89m²) | 募集終了 | - | - |
| 5階 | 18.42坪 (60.89m²) | 募集終了 | - | - |
| 5階 | 18.42坪 (60.89m²) | 募集終了 | - | - |
| 6階 | 289.93坪 (958.44m²) | 募集終了 | - | - |
| 8階 | 24.73坪 (81.75m²) | 募集終了 | - | - |
| 10階 | 289.93坪 (958.44m²) | 募集終了 | - | - |
| 11階 | 289.93坪 (958.44m²) | 募集終了 | - | - |
| 11階 | 145.16坪 (479.86m²) | 募集終了 | - | - |
| 12階 | 289.93坪 (958.44m²) | 募集終了 | - | - |
| 14階 | 3.93坪 (13m²) | 募集終了 | - | - |
| 17階 | 289.93坪 (958.45m²) | 募集終了 | - | - |
| 21階 | 289.93坪 (958.44m²) | 募集終了 | - | - |
| 22階 | 289.93坪 (958.44m²) | 募集終了 | - | - |
| 23階 | 144.76坪 (478.54m²) | 募集終了 | - | - |
読込中...
近くのエリアで探してみる
新橋/虎ノ門/神谷町エリアで日比谷セントラルビルに似た条件の物件
読込中...
| 取扱様態 | 仲介 |
|---|---|
| 取扱会社 | 株式会社 アットオフィス |