※このサイトに記載がある賃貸条件は、敷金・保証金などの預かり金を除き、別途消費税がかかります。
物件情報
設備詳細
| 空調 | 個別空調 |
|---|---|
| トイレ | 男女別トイレ室外 |
| 床仕様 | OA対応床(フリーアクセス) |
| エレベータ | 2 基 |
| 駐車場設備 | 空有 / 機械式駐車場 |
| その他 | 機械警備 / 24時間利用可 / 光ファイバー / 新耐震基準 / フリーレント / 居抜き |
築地616ビルの賃貸オフィス・事務所に関するお問い合わせ
築地616ビルについて
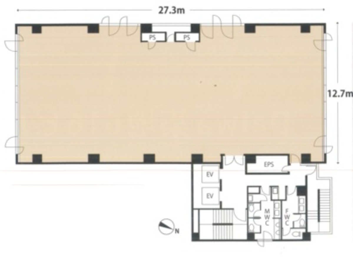
東京都中央区築地に位置する築地616ビルは、1994年に竣工された9階建ての賃貸オフィスビルです。この物件は、新耐震基準に則って建設されたことで、テナント企業の安全性に対して高い信頼を提供します。地下1階を含む建物は、鉄骨鉄筋コンクリート造りで、延床面積は1,246.43坪に及びます。 築地616ビルの所在地は、東京都中央区築地6-16-1であり、東京メトロ日比谷線の築地駅から徒歩7分、都営大江戸線の勝どき駅から徒歩8分という利便性の高い立地にあります。この地点からは、晴海通りに面しており、周囲はオフィスビルや住宅が立ち並ぶ落ち着いた環境です。また、銀座方面へのアクセスも容易で、飲食店や商業施設が充実しており、ビジネスにとっても日常生活にとっても便利な立地と言えます。 ビルの基準階面積は約110坪で、貸室は長方形に近い間取りとなっており、柱がないことからレイアウトの自由度が高いのが特徴です。個別空調システムを導入しており、各テナントが快適な温度管理を行うことが可能です。天井高は2,450mmとなっており、開放感のあるオフィス空間を提供します。 セキュリティ面では、機械警備を導入しており、安心してビジネスを行うことができます。また、ビル内には20台収容可能な機械式駐車場が設けられており、都心での駐車スペースの確保という貴重な利点を享受できます。 1階にはコンビニエンスストアが入居しており、エントランスは明るくタイル貼りで、訪れる人々に好印象を与えます。さらに、ビルは2基のエレベーターが設置されており、スムーズな移動が可能です。 築地616ビルは、その立地、設備、耐震性能において、ビジネスを行う上での最適な環境を提供します。ビルの魅力は、ただのオフィススペースを提供するだけでなく、テナント企業が成長し、繁栄するための基盤を築くことにあります。ビジネスの成功に欠かせない、利便性、安全性、快適性を兼ね備えた築地616ビルは、あらゆる業種の企業にとって理想的なオフィス空間と言えるでしょう。
自分で探すより問い合わせる方が早いことがあります
WEB非公開物件があるから
オーナー様のご希望により「WEBでは非公開」にしている物件があります。 それらはWEBでいくら検索しても見つかりません。 先ずは条件などお知らせ頂けましたら非公開物件含め ピッタリのオフィスをご提案させて頂きます。 無理なお勧めはしておりませんので、お気軽にお問い合わせください。
対面でのご相談も受け付けております
ご来店も歓迎です
オフィス移転は社内・社外ともに非公開に行われることが殆どです。そのためアットオフィスでは、基本的に訪問によるコンサルティングを行っておりますが、ご来店の相談も歓迎です。お一人おひとりに親身にご対応させて頂きたい為、要予約とさせて頂いております。ご来店の際は先ずは下記よりご予約下さい。
募集終了のテナント区画
| 階数 | 坪数 | 賃料 + 共益費 | 敷金/礼金敷金 礼金 | 検討 |
|---|---|---|---|---|
| 1階 | 52.88坪 (174.81m²) | 募集終了 | - | - |
| 2階 | 113.92坪 (376.6m²) | 募集終了 | - | - |
| 2階 | 114.6坪 (378.84m²) | 募集終了 | - | - |
| 4階 | 113.92坪 (376.6m²) | 募集終了 | - | - |
| 5階 | 101.29坪 (334.84m²) | 募集終了 | - | - |
| 6階 | 114.6坪 (378.84m²) | 募集終了 | - | - |
| 7階 | 114.6坪 (378.84m²) | 募集終了 | - | - |
| 7階 | 114.6坪 (378.87m²) | 募集終了 | - | - |
| 8階 | 90.58坪 (299.44m²) | 募集終了 | - | - |
読込中...
新富/築地エリアで築地616ビルに似た条件の物件
読込中...
| 取扱様態 | 仲介 |
|---|---|
| 取扱会社 | 株式会社 アットオフィス |