※このサイトに記載がある賃貸条件は、敷金・保証金などの預かり金を除き、別途消費税がかかります。
物件情報
設備詳細
| 空調 | 個別空調 |
|---|---|
| トイレ | 男女別トイレ / 男女別トイレ室内 |
| 床仕様 | - |
| エレベータ | 1 基 / エレベーター有 |
| 駐車場設備 | - |
| その他 | 機械警備 / 24時間利用可 / 光ファイバー / バルコニー / 新耐震基準 / 保証金・敷金+礼金が3か月以下 / セットアップ / オフィス居抜き特集 |
安和司町ビルの賃貸オフィス・事務所に関するお問い合わせ
安和司町ビルについて
安和司町ビルは、東京都千代田区神田司町二丁目に位置する、賃貸オフィスビルの優れた選択肢です。淡路町駅からわずか徒歩1分という抜群の立地に加え、小川町駅、新御茶ノ水駅、神田駅といった複数の駅へのアクセスが容易であり、ビジネスシーンでの利便性を重視するテナントにとって理想的な環境を提供します。 本ビルは1990年に竣工し、9階建ての構造で、基準階面積は約56坪となっています。2020年には大規模なリニューアル工事を実施し、エントランスやエレベーターホールを含む共用部分が現代のデザインに生まれ変わりました。このリニューアルにより、テナントおよびその来客の方々に対し、より上質な印象を提供できるようになりました。 ビル内のオフィススペースは、明るく開放的な室内を特徴としており、4階はセットアップオフィスとして整備されています。こちらはハーフスケルトンの天井や、会議室、多目的フリースペースなど、多様なビジネスニーズに対応可能な設備が準備されています。また、個別空調システムを採用しているため、各テナントが快適な室温を保ちやすくなっています。 セキュリティ面では機械警備を導入し、テナントの安全を確保しています。また、床荷重は300㎏/㎡となっており、多くのビジネスニーズに対応できる強度を持っています。さらに、ビルは新耐震基準に適合しており、テナントに安心してご利用いただける環境を提供しています。 周辺環境についても、ビルは外堀通りから一本入った立地にありながら、飲食店が豊富で、ビジネスランチやアフター5の利用にも便利です。また、銀行や郵便局などのビジネスサポート施設も徒歩圏内に充実しており、日々の業務運営に必要なサービスが身近に揃っています。 安和司町ビルは、その立地の利便性、機能的なオフィススペース、安全性といった点で、多様なビジネスニーズに応える賃貸オフィスビルとして魅力的な選択肢です。現代的で機能的なビジネス環境を求める企業にとって、このビルは最適なソリューションを提供することでしょう。
安和司町ビルのこだわり
自分で探すより問い合わせる方が早いことがあります
WEB非公開物件があるから
オーナー様のご希望により「WEBでは非公開」にしている物件があります。 それらはWEBでいくら検索しても見つかりません。 先ずは条件などお知らせ頂けましたら非公開物件含め ピッタリのオフィスをご提案させて頂きます。 無理なお勧めはしておりませんので、お気軽にお問い合わせください。
対面でのご相談も受け付けております
ご来店も歓迎です
オフィス移転は社内・社外ともに非公開に行われることが殆どです。そのためアットオフィスでは、基本的に訪問によるコンサルティングを行っておりますが、ご来店の相談も歓迎です。お一人おひとりに親身にご対応させて頂きたい為、要予約とさせて頂いております。ご来店の際は先ずは下記よりご予約下さい。
募集終了のテナント区画
| 階数 | 坪数 | 賃料 + 共益費 | 敷金/礼金敷金 礼金 | 検討 |
|---|---|---|---|---|
| 4階 | 56.6坪 (187.1m²) | 募集終了 | - | - |
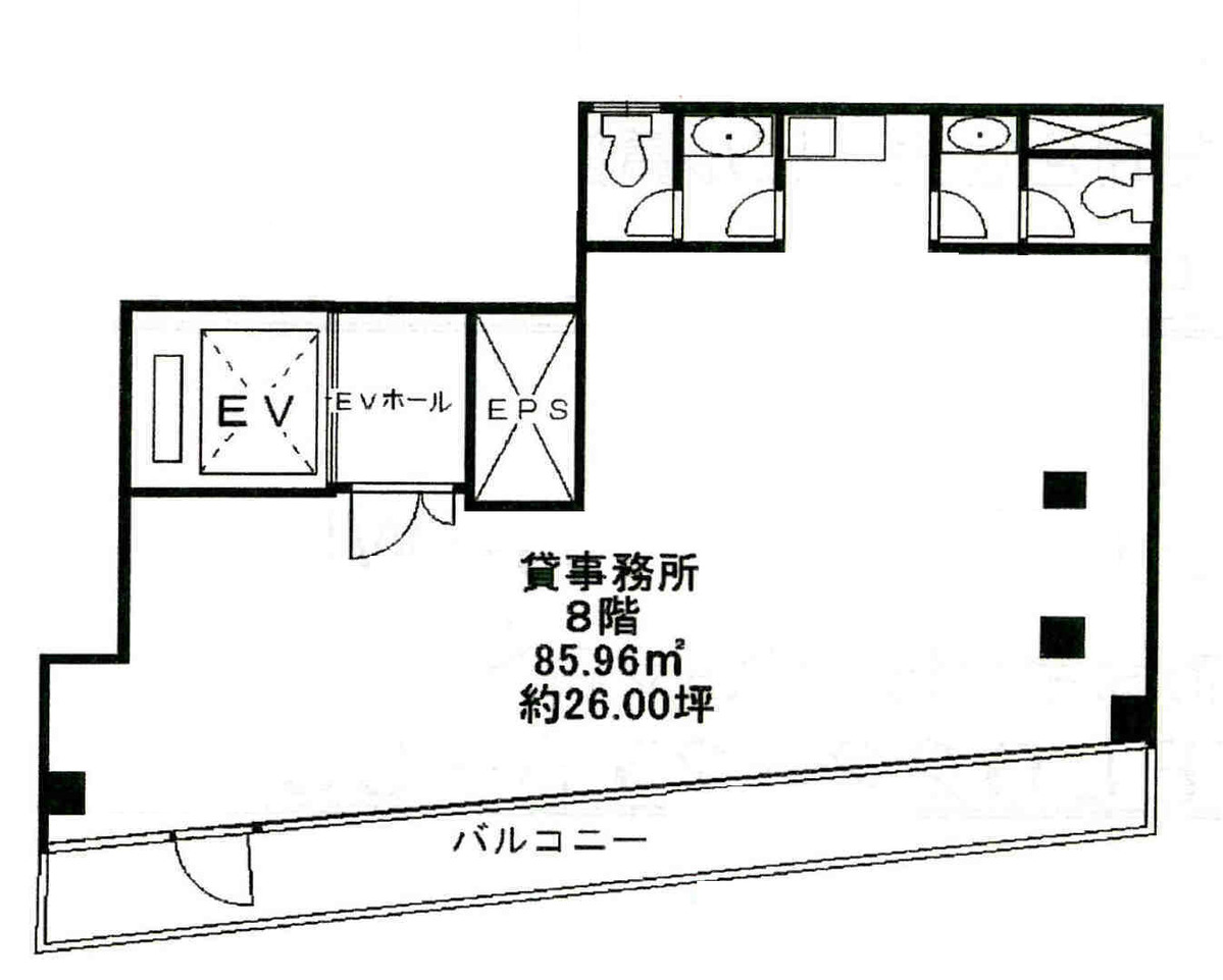
| 8階 | 26坪 (85.96m²) | 募集終了 | - | - |
読込中...
神田/秋葉原エリアで安和司町ビルに似た条件の物件
読込中...
| 取扱様態 | 仲介 |
|---|---|
| 取扱会社 | 株式会社 アットオフィス |