今朝ビルの賃料条件
| 階数 | 坪数 | 賃料 + 共益費 | 敷金/礼金敷金 礼金 | 検討 |
|---|---|---|---|---|
| 1階 | 67.48坪 (223.07m²) | お問合せ下さい (坪:-) | 10ヶ月 無10ヶ月/無 | |
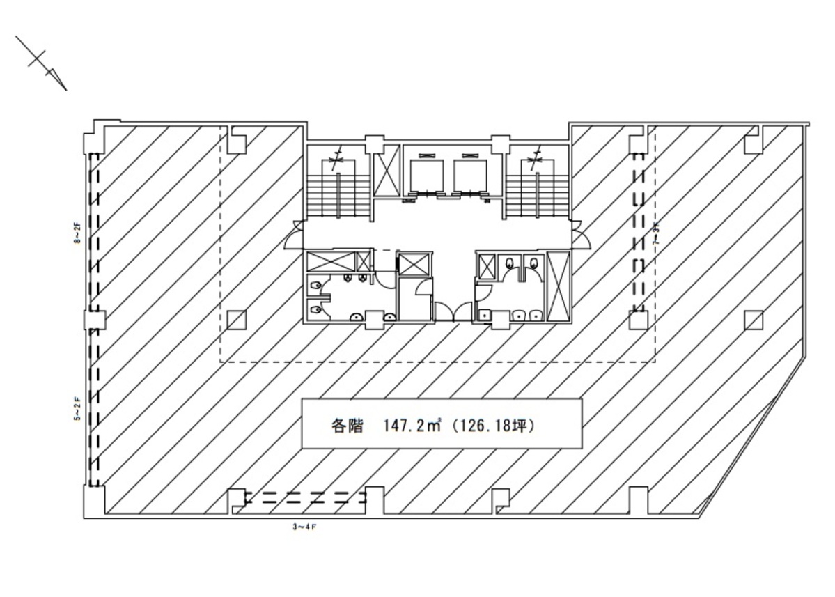
| 8階 | 126.18坪 (417.12m²) | 3,154,500円 (坪:25,000 円) | 10ヶ月 無10ヶ月/無 |
※このサイトに記載がある賃貸条件は、敷金・保証金などの預かり金を除き、別途消費税がかかります。
物件情報
設備詳細
| 空調 | 個別空調 / セントラル空調 |
|---|---|
| トイレ | 男女別トイレ室外 |
| 床仕様 | OA対応床(フリーアクセス) |
| エレベータ | 2 基 |
| 駐車場設備 | 平置き駐車場 |
| その他 | 機械警備 / 24時間利用可 / 管理人常駐 / 光ファイバー / クリニック / 1階の物件 / 美容系店舗 / 店舗可(飲食可) |
今朝ビルの賃貸オフィス・事務所に関するお問い合わせ
今朝ビルについて
今朝ビルは、東京都港区東新橋に位置する、1964年竣工のレトロながらも現代のニーズに応える賃貸オフィスビルです。近年2014年には、耐震補強工事を含むリニューアルを実施し、現代のオフィス環境に適した設備と安全性を備えています。地上9階、地下1階建てのこのビルは、基準階約126坪という広々としたオフィススペースを提供しており、各フロアは分割区画の募集もあり、さまざまな企業のニーズに柔軟に対応できる点が魅力です。 立地においては、新橋駅から徒歩2分というアクセスの良さが際立っています。JR山手線、東京メトロ銀座線、都営地下鉄浅草線、ゆりかもめ線と複数路線が利用可能であり、都内各所への移動が容易なことはビジネスを展開する上で大きなメリットとなるでしょう。また、汐留駅や内幸町駅も徒歩圏内にあり、さらに広範囲からのアクセスが期待できます。 オフィスビルとしての設備も充実しており、セントラル空調と個別空調の併用使用が可能で、各テナントのニーズに合わせた温度管理が行える点が特筆されます。また、24時間使用可能なオフィス環境、有人管理と機械式警備の併用によるセキュリティの強化、リニューアルされた清潔感ある木目調のエントランスなど、快適なオフィスライフをサポートする要素が満載です。 港区東新橋のエリアは、汐留の高層ビル群に隣接し、新橋駅の飲食店街や銀座の商業エリアへのアクセスも良好です。周辺にはランチスポットやコンビニエンスストアが豊富にあり、ビジネスパーソンにとっては非常に便利な立地と言えるでしょう。また、羽田空港へのアクセスも良好で、ビジネスでの国内外移動が多い企業にとっても魅力的なポイントです。 今朝ビルは、その優れた立地、充実した設備、そして柔軟なレイアウトが可能なオフィススペースを提供することで、企業の成長をサポートする理想的なオフィス環境を提供しています。ビジネスの拠点としての機能性と、従業員が快適に働ける環境の両方を求める企業にとって、最適な選択肢の一つであることは間違いありません。
今朝ビルのこだわり
自分で探すより問い合わせる方が早いことがあります
WEB非公開物件があるから
オーナー様のご希望により「WEBでは非公開」にしている物件があります。 それらはWEBでいくら検索しても見つかりません。 先ずは条件などお知らせ頂けましたら非公開物件含め ピッタリのオフィスをご提案させて頂きます。 無理なお勧めはしておりませんので、お気軽にお問い合わせください。
対面でのご相談も受け付けております
ご来店も歓迎です
オフィス移転は社内・社外ともに非公開に行われることが殆どです。そのためアットオフィスでは、基本的に訪問によるコンサルティングを行っておりますが、ご来店の相談も歓迎です。お一人おひとりに親身にご対応させて頂きたい為、要予約とさせて頂いております。ご来店の際は先ずは下記よりご予約下さい。
募集終了のテナント区画
| 階数 | 坪数 | 賃料 + 共益費 | 敷金/礼金敷金 礼金 | 検討 |
|---|---|---|---|---|
| 3階 | 126.18坪 (417.12m²) | 募集終了 | - | - |
| 4階 | 126.18坪 (417.12m²) | 募集終了 | - | - |
| 5階 | 126.18坪 (417.12m²) | 募集終了 | - | - |
| 5階 | 77.84坪 (257.32m²) | 募集終了 | - | - |
| 6階 | 126.18坪 (417.12m²) | 募集終了 | - | - |
| 7階 | 126.18坪 (417.12m²) | 募集終了 | - | - |
| 9階 | 48.1坪 (159.01m²) | 募集終了 | - | - |
| 9階 | 77.84坪 (257.32m²) | 募集終了 | - | - |
| 9階 | 126.16坪 (417.05m²) | 募集終了 | - | - |
読込中...
近くのエリアで探してみる
新橋/虎ノ門/神谷町エリアで今朝ビルに似た条件の物件
読込中...
| 取扱様態 | 仲介 |
|---|---|
| 取扱会社 | 株式会社 アットオフィス |