※このサイトに記載がある賃貸条件は、敷金・保証金などの預かり金を除き、別途消費税がかかります。
物件情報
設備詳細
| 空調 | 個別空調 |
|---|---|
| トイレ | - |
| 床仕様 | OA対応床(フリーアクセス) |
| エレベータ | 1 基 |
| 駐車場設備 | 空有 |
| その他 | 機械警備 / 24時間利用可 / SOHO/マンション / 光ファイバー / 新耐震基準 / 居抜き |
ツインビュー御茶の水ビルの賃貸オフィス・事務所に関するお問い合わせ
ツインビュー御茶の水ビルについて
文京区本郷に位置するツインビュー御茶ノ水ビルは、1994年に竣工された耐震基準を満たす現代的なオフィスビルです。このビルの最大の魅力は、その立地と設備の充実にあります。御茶ノ水駅からは徒歩10分、水道橋駅と本郷三丁目駅からはそれぞれ徒歩7分と、複数の交通アクセスを誇るこの物件は、ビジネスの拠点として最適な環境を提供します。 ツインビュー御茶ノ水ビルは地上9階建てで、各階には約165坪の広々としたオフィススペースがあります。また、分割区画の提供も可能で、様々なビジネスニーズに応じたフレキシブルなオフィスレイアウトが可能です。オフィス部分は1〜3階まで設けられ、上層階は主に住居用区画となっており、住居とオフィスのエントランスが完全に分かれているため、プライバシーが保護されます。 24時間利用可能な点も、このビルの大きな特徴です。ビジネスがグローバルに展開する中で、時間に縛られない柔軟な働き方をサポートします。ビル内には月極駐車場も完備されており、車での通勤やビジネス用途にも便利です。さらに、全階に個別空調システムが整っているため、快適なオフィス環境が保たれます。 セキュリティ面においても、管理人が常駐しており、機械式警備システムを採用しています。これにより、オフィスビルとしての安全性が高められ、入居企業にとって安心して業務を行うことができる環境が提供されます。 周辺環境としては、ビルが位置する文京区本郷は、静かで落ち着いた住宅街が広がり、近隣には順天堂大学や様々な公園が点在しています。また、ラーメン屋や喫茶店、コンビニなどが徒歩圏内にあり、日常の利便性も良好です。 ツインビュー御茶ノ水ビルは、その高い建築基準、優れた立地条件、充実した設備、そして安全な管理体制により、多様なビジネスニーズに対応する、文京区における賃貸オフィスビルの中でも特に推薦できる物件です。
ツインビュー御茶の水ビルのこだわり
自分で探すより問い合わせる方が早いことがあります
WEB非公開物件があるから
オーナー様のご希望により「WEBでは非公開」にしている物件があります。 それらはWEBでいくら検索しても見つかりません。 先ずは条件などお知らせ頂けましたら非公開物件含め ピッタリのオフィスをご提案させて頂きます。 無理なお勧めはしておりませんので、お気軽にお問い合わせください。
対面でのご相談も受け付けております
ご来店も歓迎です
オフィス移転は社内・社外ともに非公開に行われることが殆どです。そのためアットオフィスでは、基本的に訪問によるコンサルティングを行っておりますが、ご来店の相談も歓迎です。お一人おひとりに親身にご対応させて頂きたい為、要予約とさせて頂いております。ご来店の際は先ずは下記よりご予約下さい。
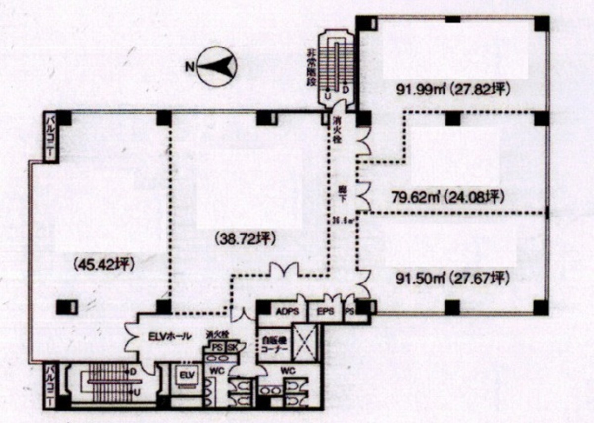
募集終了のテナント区画
| 階数 | 坪数 | 賃料 + 共益費 | 敷金/礼金敷金 礼金 | 検討 |
|---|---|---|---|---|
| 1階 | 24.09坪 (79.6m²) | 募集終了 | - | - |
| 2階 | 27.68坪 (91.5m²) | 募集終了 | - | - |
| 2階 | 84.16坪 (278.2m²) | 募集終了 | - | - |
| 3階 | 79.59坪 (263.1m²) | 募集終了 | - | - |
| 5階 | 23.26坪 (76.89m²) | 募集終了 | - | - |
読込中...
湯島/本郷/後楽園エリアでツインビュー御茶の水ビルに似た条件の物件
読込中...
| 取扱様態 | 仲介 |
|---|---|
| 取扱会社 | 株式会社 アットオフィス |