SVAX西新橋ビルディングの賃料条件
| 階数 | 坪数 | 賃料 + 共益費 | 敷金/礼金敷金 礼金 | 検討 |
|---|---|---|---|---|
| 4階 | 30.27坪 (100.06m²) | お問合せ下さい (坪:-) | 6ヶ月 無6ヶ月/無 | |
| 4階 | 26.55坪 (87.76m²) | お問合せ下さい (坪:-) | 6ヶ月 無6ヶ月/無 |
※このサイトに記載がある賃貸条件は、敷金・保証金などの預かり金を除き、別途消費税がかかります。
物件情報
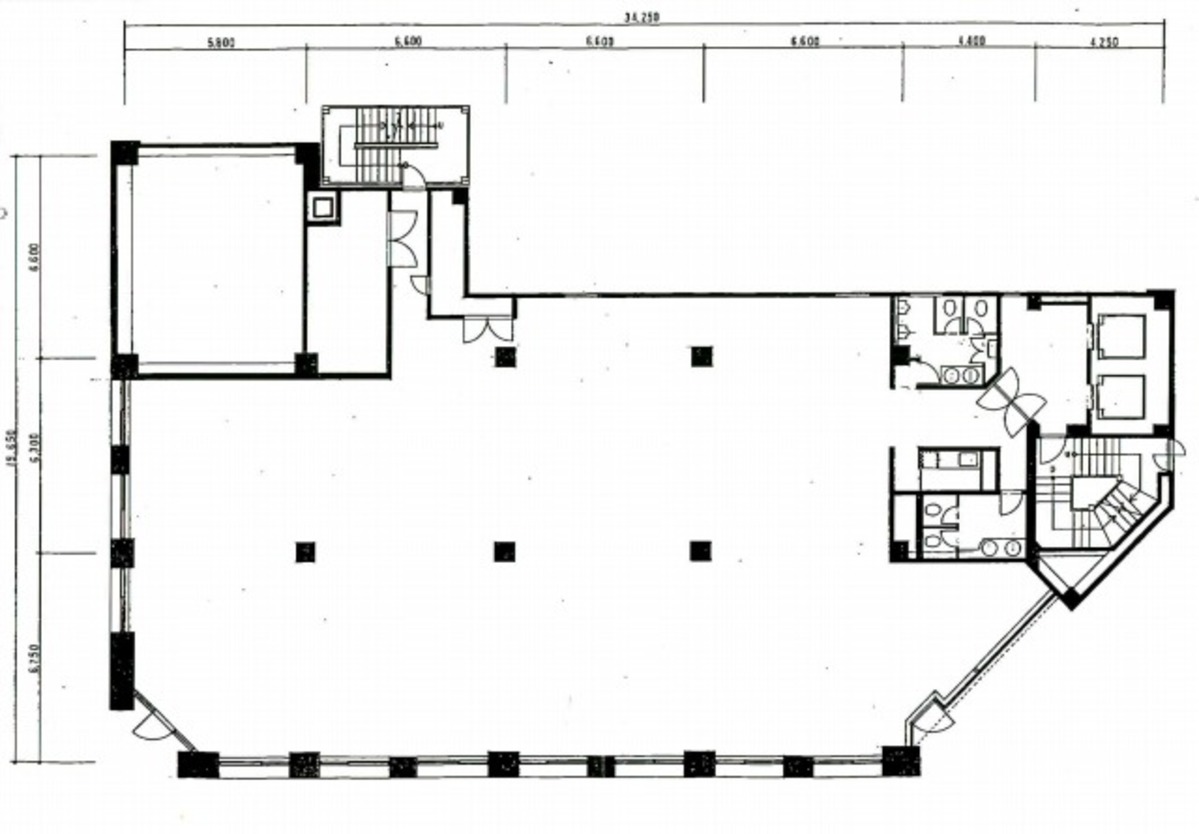
設備詳細
| 空調 | 個別空調 |
|---|---|
| トイレ | 男女別トイレ室外 |
| 床仕様 | OA対応床(フリーアクセス) |
| エレベータ | 2 基 |
| 駐車場設備 | 空有 |
| その他 | 大型ビル / 機械警備 / 管理人常駐 / セットアップ / 原状回復義務なし |
SVAX西新橋ビルディングの賃貸オフィス・事務所に関するお問い合わせ
SVAX西新橋ビルディングについて
今回ご紹介するのは、ビジネスの中心地、東京都港区西新橋2丁目に位置する「SVAX西新橋ビルディング」です。この地にふさわしい、利便性と機能性を兼ね備えた素晴らしいオフィスビルをご覧ください。 まず立地の魅力から。SVAX西新橋ビルは、内幸町駅からわずか徒歩4分、虎ノ門駅からも徒歩8分という、アクセス抜群の位置にあります。日比谷通りに面しているため、都心への移動が非常に便利です。また、採光も良好で、働く環境としても最適な条件が整っています。 ビルの設備についても見逃せません。24時間利用可能なので、ビジネスが活発な皆様の多様な働き方に対応できます。月極駐車場がビル内にあるため、車通勤をお考えの方にも便利です。セキュリティ面では、機械警備が完備されており、安心してご利用いただけます。 SVAX西新橋ビルは、1978年の新耐震基準以前に竣工した歴史を持つビルですが、その風格と品質は現代のビジネスニーズにもしっかり応える設計となっています。エレベーターは2機設置されており、快適な移動をサポートします。 このビルの最大の魅力は、その立地と設備が生み出す「ビジネスのしやすさ」にあります。中心地でありながら、快適なオフィス環境を保ち、各種設備も充実していますので、企業活動に必要なすべてがここにはあります。 SVAX西新橋ビルディングで、新たなビジネスの拠点を築きませんか?ここは、企業が成長し、夢が広がる場所。お近くにお越しの際は、ぜひご内見ください。あなたのビジネスを次のレベルへと導く一歩が、ここにはあります。
SVAX西新橋ビルディングのこだわり
自分で探すより問い合わせる方が早いことがあります
WEB非公開物件があるから
オーナー様のご希望により「WEBでは非公開」にしている物件があります。 それらはWEBでいくら検索しても見つかりません。 先ずは条件などお知らせ頂けましたら非公開物件含め ピッタリのオフィスをご提案させて頂きます。 無理なお勧めはしておりませんので、お気軽にお問い合わせください。
対面でのご相談も受け付けております
ご来店も歓迎です
オフィス移転は社内・社外ともに非公開に行われることが殆どです。そのためアットオフィスでは、基本的に訪問によるコンサルティングを行っておりますが、ご来店の相談も歓迎です。お一人おひとりに親身にご対応させて頂きたい為、要予約とさせて頂いております。ご来店の際は先ずは下記よりご予約下さい。
募集終了のテナント区画
| 階数 | 坪数 | 賃料 + 共益費 | 敷金/礼金敷金 礼金 | 検討 |
|---|---|---|---|---|
| 3階 | 135.61坪 (448.29m²) | 募集終了 | - | - |
| 3階 | 119.9坪 (396.36m²) | 募集終了 | - | - |
| 4階 | 135.61坪 (448.29m²) | 募集終了 | - | - |
| 4階 | 25.54坪 (84.42m²) | 募集終了 | - | - |
| 4階 | 21.75坪 (71.9m²) | 募集終了 | - | - |
読込中...
近くのエリアで探してみる
新橋/虎ノ門/神谷町エリアでSVAX西新橋ビルディングに似た条件の物件
読込中...
| 取扱様態 | 仲介 |
|---|---|
| 取扱会社 | 株式会社 アットオフィス |