新橋マリンビル3階の賃貸情報
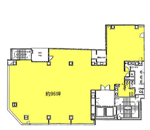
96.05 坪 (317.52m²)
※このサイトに記載がある賃貸条件は、敷金・保証金などの預かり金を除き、別途消費税がかかります。
新橋マリンビルの建物概要
設備詳細
| 空調 | 個別空調 |
|---|---|
| トイレ | 男女別トイレ室外 |
| 床仕様 | OA対応床(フリーアクセス) |
| エレベータ | 2 基 |
| 駐車場設備 | 空有 |
| その他 | 機械警備 / 24時間利用可 / 光ファイバー / 新耐震基準 / クリニック / フリーレント |
新橋マリンビル3階の賃貸オフィス・事務所に関するお問い合わせ
新橋マリンビルについて
新橋マリンビルは、東京の中心地・新橋駅前に位置する、アクセス抜群の賃貸オフィスビルです。1993年に竣工し、築年数は20年を超えますが、その品質は古びることなく維持されています。まず注目すべきは、その立地の良さ。最寄りのJR新橋駅からは徒歩わずか1分という驚異的な近さで、都営地下鉄三田線内幸町駅、大江戸線汐留駅、東京メトロ銀座線銀座駅、大江戸線築地市場駅が10分圏内にあり、東京メトロ日比谷線東銀座駅、銀座線虎ノ門駅、日比谷線日比谷駅までも徒歩圏内です。このような立地条件は、ビジネスの機会を広げ、来客の便利さを最大化します。 ビルの設備面も優れています。新耐震基準に準拠しているため、安全面での心配が少ないのはもちろん、2基のエレベーター、OAフロア、個別空調、機械警備、光ファイバー接続、ウォシュレット付きトイレなど、快適で効率的なオフィス環境を提供します。また、機械式立体駐車場も完備しており、車でのアクセスも便利です。 新橋マリンビルの魅力は、その多様性にあります。ビル内には、アンテナショップ、飲食店、眼科、ヨガスタジオといった様々なテナントが入居しており、ビジネスだけでなく日常生活の利便性も高めています。また、周辺にはコンビニエンスストアや飲食店が豊富にあり、昼食時に長く待たされる心配もありません。このように、新橋マリンビルは、ビジネスに必要なものが全て揃った、非常に魅力的なオフィスビルです。 さらに、エントランスは明るく、来客時の印象も良好。駅前広場からの視認性も高いため、初めて訪れる人にも分かりやすく、ビジネスのチャンスを逃しません。100坪弱の物件をお探しの方には、新橋マリンビルをぜひお勧めします。ここでは、快適なオフィス環境と、ビジネス機会の両方を手に入れることができます。新橋マリンビルで、あなたのビジネスを次のレベルへと導きましょう。
自分で探すより問い合わせる方が早いことがあります
WEB非公開物件があるから
オーナー様のご希望により「WEBでは非公開」にしている物件があります。 それらはWEBでいくら検索しても見つかりません。 先ずは条件などお知らせ頂けましたら非公開物件含め ピッタリのオフィスをご提案させて頂きます。 無理なお勧めはしておりませんので、お気軽にお問い合わせください。
対面でのご相談も受け付けております
ご来店も歓迎です
オフィス移転は社内・社外ともに非公開に行われることが殆どです。そのためアットオフィスでは、基本的に訪問によるコンサルティングを行っておりますが、ご来店の相談も歓迎です。お一人おひとりに親身にご対応させて頂きたい為、要予約とさせて頂いております。ご来店の際は先ずは下記よりご予約下さい。
近くのエリアで探してみる
新橋/虎ノ門/神谷町エリアで新橋マリンビルに似た条件の物件
読込中...
新橋マリンビルと同じ最寄駅の物件
読込中...
| 取扱様態 | 仲介 |
|---|---|
| 取扱会社 | 株式会社 アットオフィス |