新宿エルタワー15階の賃貸情報
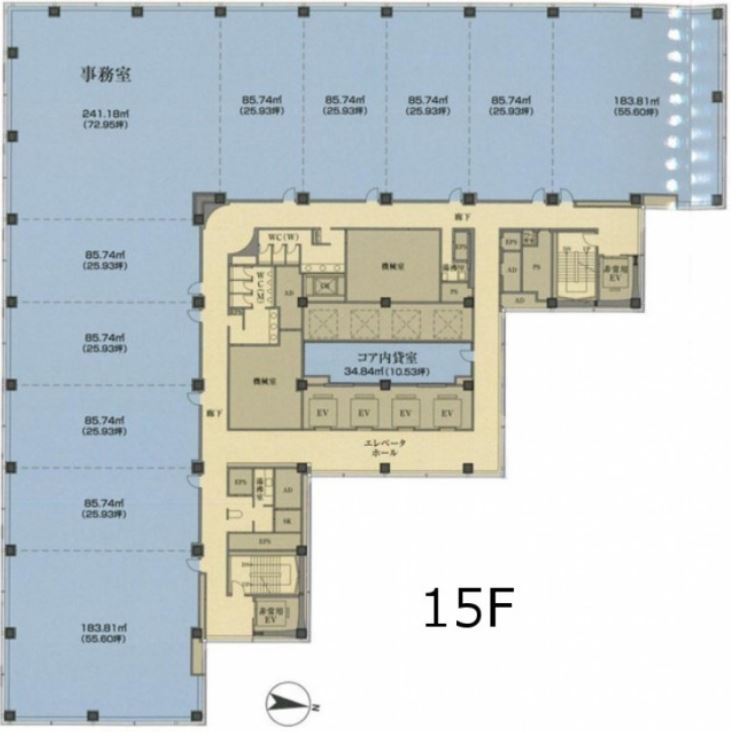
25.93 坪 (85.71m²)
※このサイトに記載がある賃貸条件は、敷金・保証金などの預かり金を除き、別途消費税がかかります。
新宿エルタワーの建物概要
設備詳細
| 空調 | セントラル空調 |
|---|---|
| トイレ | 男女別トイレ |
| 床仕様 | - |
| エレベータ | 15 基 / エレベーター有 |
| 駐車場設備 | 空有 / 敷地内駐車場 |
| その他 | 大型ビル / 高層ビル / 機械警備 / 管理人常駐 / オートロック / 24時間利用可 / 新耐震基準 / 駅直結 |
新宿エルタワーについて
新宿エルタワーは、都心のビジネスシーンを象徴する、新宿区西新宿に位置する高層オフィスビルです。1989年に竣工されたこのビルは、地上31階、地下5階建てという壮大なスケールを誇ります。延床面積は26,027坪に及び、基準階面積は391坪となっており、広大なスペースを提供しています。 新宿エルタワーの最大の特徴は、その抜群の立地条件にあります。JR・東京メトロ・都営地下鉄・小田急線・京王線が乗り入れる新宿駅から徒歩2分、新宿西口駅からは徒歩2分圏内というアクセスの良さは、ビジネスシーンにおいて絶大な利便性を提供します。また、新宿駅西口地下ロータリーと直結しており、雨の日でも濡れることなくオフィスへとアクセス可能です。 設備面においても、新宿エルタワーは高スペックなオフィスビルであることが特徴です。耐震性に優れた鉄骨鉄筋コンクリート造の構造を採用し、安心してビジネスを行うことができます。エレベーターは15基設置され、高層・中層・低層用に分かれているため、スムーズな移動が可能です。また、計264台を収容できる大型駐車場を備えており、来客時の利便性も高いです。 オフィスフロアは、OAフロアを採用しており、床下にはケーブルやコンセントを納められる設計となっています。これにより、オフィス内のレイアウト変更が容易であり、効率的なオフィス環境を実現します。セントラル空調システムにより、フロアや区画ごとに管理可能で、快適なオフィス環境を提供します。 さらに、新宿エルタワーは、周辺環境も魅力的です。新宿駅周辺には、デパートやショッピングモール、家電量販店、多数の飲食店があり、ビジネスの合間のショッピングやランチにも困りません。また、銀行や郵便局も充実しており、ビジネスをサポートする環境が整っています。 新宿エルタワーは、立地の良さ、高スペックな設備、快適なオフィス環境を求める企業にとって最適なオフィスビルです。ビジネスの中心地で活躍する企業に、新宿エルタワーは最高の選択肢を提供します。
自分で探すより問い合わせる方が早いことがあります
WEB非公開物件があるから
オーナー様のご希望により「WEBでは非公開」にしている物件があります。 それらはWEBでいくら検索しても見つかりません。 先ずは条件などお知らせ頂けましたら非公開物件含め ピッタリのオフィスをご提案させて頂きます。 無理なお勧めはしておりませんので、お気軽にお問い合わせください。
対面でのご相談も受け付けております
ご来店も歓迎です
オフィス移転は社内・社外ともに非公開に行われることが殆どです。そのためアットオフィスでは、基本的に訪問によるコンサルティングを行っておりますが、ご来店の相談も歓迎です。お一人おひとりに親身にご対応させて頂きたい為、要予約とさせて頂いております。ご来店の際は先ずは下記よりご予約下さい。
新宿/西新宿エリアで新宿エルタワーに似た条件の物件
読込中...
新宿エルタワーと同じ最寄駅の物件
読込中...
| 取扱様態 | 仲介 |
|---|---|
| 取扱会社 | 株式会社 アットオフィス |