KR GINZAⅡの賃料条件
| 階数 | 坪数 | 賃料 + 共益費 | 敷金/礼金敷金 礼金 | 検討 |
|---|---|---|---|---|
| 4階 | 157.44坪 (520.48m²) | 5,510,400円 (坪:35,000 円) | 3ヶ月 無3ヶ月/無 |
※このサイトに記載がある賃貸条件は、敷金・保証金などの預かり金を除き、別途消費税がかかります。
物件情報
設備詳細
| 空調 | 個別空調 |
|---|---|
| トイレ | 男女別トイレ室内 |
| 床仕様 | OA対応床(フリーアクセス) |
| エレベータ | 2 基 |
| 駐車場設備 | 空有 / 機械式駐車場 / 平置き駐車場 |
| その他 | 大型ビル / 新耐震基準 / 機械警備 / セットアップ / 保証金・敷金+礼金が3か月以下 |
KR GINZAⅡの賃貸オフィス・事務所に関するお問い合わせ
KR GINZAⅡについて
**【KR GinzaⅡ】銀座エリアの理想的なオフィスビルのご紹介** 銀座エリアでのビジネス拡大や新たなオフィス移転をお考えの皆様に、理想的なオフィススペースをご紹介します。東京の中心、銀座2丁目に位置する【KR GinzaⅡ】は、ビジネスの成功を象徴するオフィスビルです。2008年9月に竣工されたこのビルは、現代的なデザインと機能性を兼ね備えた魅力的なオフィス空間を提供します。 **◆アクセスの利便性** 【KR GinzaⅡ】は、東京メトロ新富町駅からわずか徒歩2分、都営東銀座駅から徒歩4分という優れたアクセスを誇ります。さらに、東京メトロ東銀座駅からも徒歩5分と、複数の駅が徒歩圏内にあるため、ビジネスの拠点として最適です。有楽町駅も徒歩圏内にあり、都心へのアクセスも抜群です。 **◆優れた設備と快適なオフィス環境** 地上8階建てで、地下1階を含むこのビルは、鉄骨造・鉄筋コンクリート造の安定した構造を持ちます。基準階面積は約132坪で、三面の大きな窓が自然光をたっぷりと取り込み、明るく開放的なオフィス環境を実現しています。個別空調システムにより、一年を通して快適な室温を保つことができます。また、男女別トイレに加え、女性用トイレにはパウダースペースも設けられており、細部にわたる配慮も見逃せません。給湯スペースも完備しており、オフィスでの快適さを一層高めます。 **◆ビルのセキュリティと駐車場** セキュリティ面では、機械警備システムを採用し、入居者の安全をしっかりと守ります。また、機械式駐車場16台と平面駐車場2台を備えており、車でのアクセスも便利です。 **◆周辺環境の魅力** 【KR GinzaⅡ】の立地する銀座エリアは、多数の飲食店やコンビニが周囲に点在し、日々のビジネスライフをさらに充実させます。徒歩圏内に郵便局もあり、ビジネスで必要なさまざまなサポート施設が揃っています。 銀座エリアでの事業展開やオフィス移転をお考えの企業様にとって、【KR GinzaⅡ】は、抜群の立地、先進的な設備、そして快適なオフィス環境を提供する理想的な選択肢です。この機会に、あなたのビジネスを次のレベルへと導く最適なオフィススペースを手に入れましょう。
自分で探すより問い合わせる方が早いことがあります
WEB非公開物件があるから
オーナー様のご希望により「WEBでは非公開」にしている物件があります。 それらはWEBでいくら検索しても見つかりません。 先ずは条件などお知らせ頂けましたら非公開物件含め ピッタリのオフィスをご提案させて頂きます。 無理なお勧めはしておりませんので、お気軽にお問い合わせください。
対面でのご相談も受け付けております
ご来店も歓迎です
オフィス移転は社内・社外ともに非公開に行われることが殆どです。そのためアットオフィスでは、基本的に訪問によるコンサルティングを行っておりますが、ご来店の相談も歓迎です。お一人おひとりに親身にご対応させて頂きたい為、要予約とさせて頂いております。ご来店の際は先ずは下記よりご予約下さい。
募集終了のテナント区画
| 階数 | 坪数 | 賃料 + 共益費 | 敷金/礼金敷金 礼金 | 検討 |
|---|---|---|---|---|
| 5階 | 157.44坪 (520.46m²) | 募集終了 | - | - |
| 6階 | 66.13坪 (218.61m²) | 募集終了 | - | - |
| 6階 | 66坪 (218.2m²) | 募集終了 | - | - |
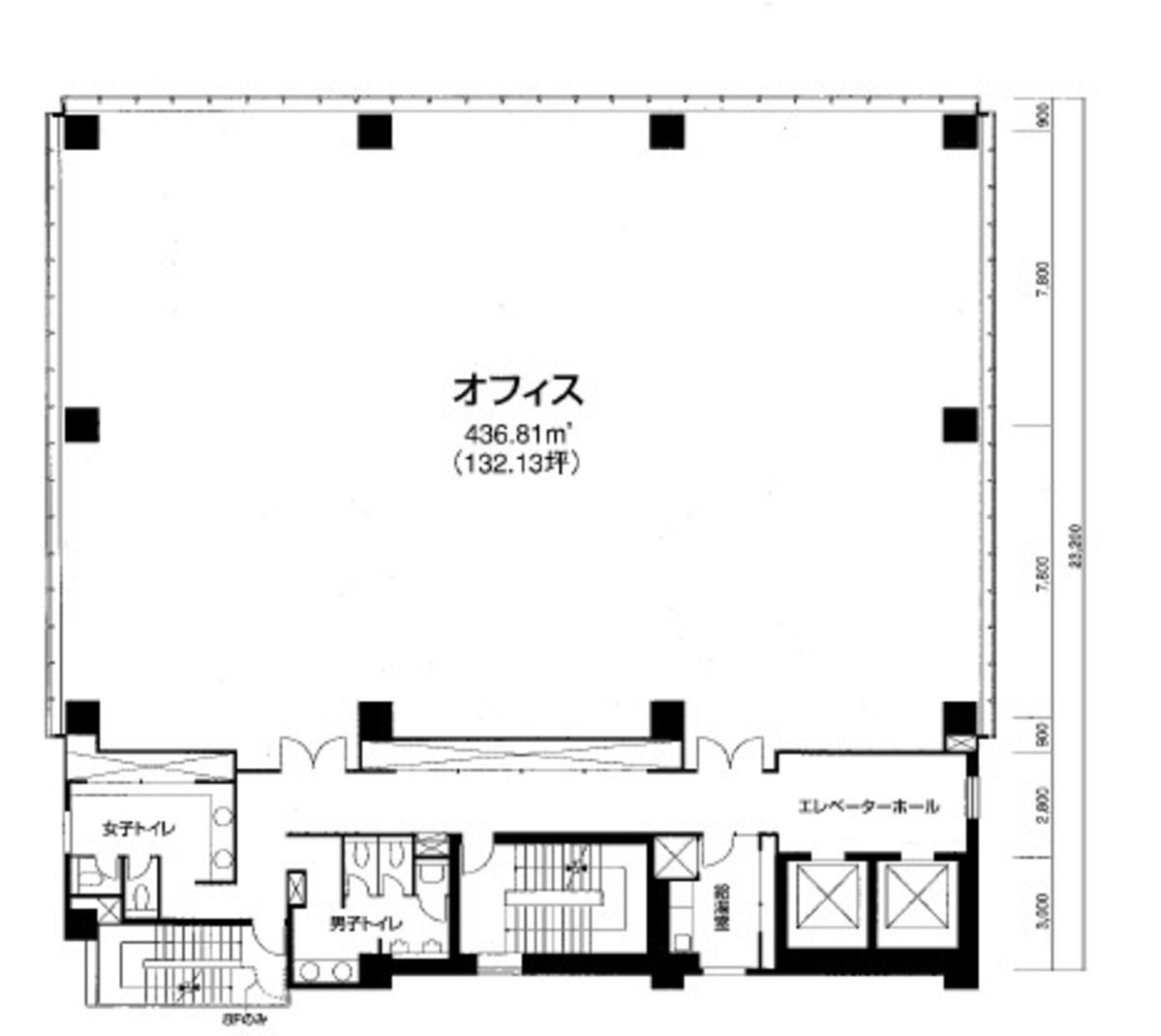
| 7階 | 132.13坪 (436.81m²) | 募集終了 | - | - |
| 8階 | 132.13坪 (436.81m²) | 募集終了 | - | - |
読込中...
銀座エリアでKR GINZAⅡに似た条件の物件
読込中...
| 取扱様態 | 仲介 |
|---|---|
| 取扱会社 | 株式会社 アットオフィス |