第37興和ビル3階の賃貸情報
16.36 坪 (54.08m²)
※このサイトに記載がある賃貸条件は、敷金・保証金などの預かり金を除き、別途消費税がかかります。
第37興和ビルの建物概要
設備詳細
| 空調 | - |
|---|---|
| トイレ | - |
| 床仕様 | OA対応床(フリーアクセス) |
| エレベータ | 1 基 |
| 駐車場設備 | 空有 |
| その他 | 機械警備 / 24時間利用可 |
第37興和ビル3階の賃貸オフィス・事務所に関するお問い合わせ
第37興和ビルについて
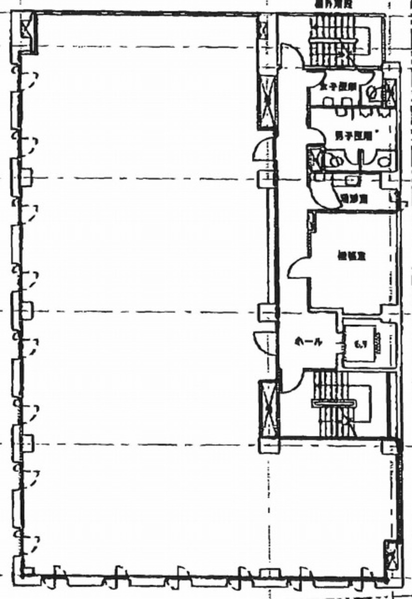
第37興和ビルは、賃貸オフィス市場において、その高い設備スペックと絶妙な立地で注目を集めています。1981年に新耐震基準に基づいて建設され、全面リニューアルを経て現代のビジネスニーズに応える設備と機能性を兼ね備えたこの物件は、中央区築地1丁目に位置し、主要な交通網へのアクセスの良さが魅力です。 このビルは地上9階・地下1階建てで、基準階は約78坪のほぼ長方形の間取りが特徴です。柱のない開放的なレイアウトは、テナントのニーズに合わせた自由度の高いオフィス環境を実現します。また、重厚感のある造りと落ち着いた内装は、ビジネスの場としての品格を確立しています。 ビル内の設備は、ビジネスの効率化と快適性を追求しています。OAフロアーは60mmの高さを確保し、最先端のオフィス機器の導入を容易にします。エレベーターは1機設置され、スムーズな移動を支えます。セキュリティ面では、機械式警備と各階の扉に電気錠を採用し、テナントの安全を厳重に守ります。また、駐車場はビル内に月極で利用可能であり、24時間利用が可能な点も大きなメリットです。 立地面では、都営地下鉄日比谷線築地駅から徒歩3分という、非常に便利な位置にあります。周辺にはランチスポットやコンビニ、お弁当屋が豊富に存在し、ビジネスパーソンの日常的なニーズに応えます。また、中央区役所や築地警察署などの公共施設も近く、ビジネスの拠点としての機能性を高めています。 総じて、第37興和ビルは、その高い設備スペック、柔軟なレイアウト、優れた立地条件を兼ね備え、現代のビジネスニーズに応える賃貸オフィスビルです。ビジネスの成長と発展を支えるための環境がここにはあります。この物件は、企業のビジョンを実現するための最適な選択肢となるでしょう。
第37興和ビルのこだわり
自分で探すより問い合わせる方が早いことがあります
WEB非公開物件があるから
オーナー様のご希望により「WEBでは非公開」にしている物件があります。 それらはWEBでいくら検索しても見つかりません。 先ずは条件などお知らせ頂けましたら非公開物件含め ピッタリのオフィスをご提案させて頂きます。 無理なお勧めはしておりませんので、お気軽にお問い合わせください。
対面でのご相談も受け付けております
ご来店も歓迎です
オフィス移転は社内・社外ともに非公開に行われることが殆どです。そのためアットオフィスでは、基本的に訪問によるコンサルティングを行っておりますが、ご来店の相談も歓迎です。お一人おひとりに親身にご対応させて頂きたい為、要予約とさせて頂いております。ご来店の際は先ずは下記よりご予約下さい。
新富/築地エリアで第37興和ビルに似た条件の物件
読込中...
第37興和ビルと同じ最寄駅の物件
読込中...
| 取扱様態 | 仲介 |
|---|---|
| 取扱会社 | 株式会社 アットオフィス |