アクセスビル2階の賃貸情報
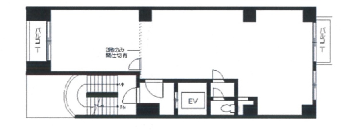
19.02 坪 (62.9m²)
※このサイトに記載がある賃貸条件は、敷金・保証金などの預かり金を除き、別途消費税がかかります。
アクセスビルの建物概要
設備詳細
| 空調 | - |
|---|---|
| トイレ | - |
| 床仕様 | - |
| エレベータ | 1 基 |
| 駐車場設備 | - |
| その他 | 新耐震基準 / 東京賃料が坪11000円以下 |
アクセスビルについて
アクセスビルは中野区野方1丁目に所在し、東西線「中野駅」から徒歩9分、総武・中央緩行線「中野駅」から13分、さらに「高円寺駅」からも15分の距離に位置しています。複数路線・複数駅が利用可能なため、オフィスの移動や周辺地域へのアクセスを想定した際にも計画が立てやすい環境です。周辺は住宅や商業施設も点在し、企業活動の拠点として落ち着いたエリアに立地しています。 建物は地上6階建てとなっており、事業用スペースとして階層ごとの分割利用や、フロアごとに異なる用途を組み合わせるなど、様々な使い方が考えられる構造です。1基のエレベーターが設置されており、ビル内の移動もスムーズに行えます。共用部を通じて各フロアへの導線も明確になっている点が特徴です。 周辺環境や建物の規模、構造を活かしながら、業種や事業規模に応じたオフィス利用が検討できます。詳細はお問い合わせください。
自分で探すより問い合わせる方が早いことがあります
WEB非公開物件があるから
オーナー様のご希望により「WEBでは非公開」にしている物件があります。 それらはWEBでいくら検索しても見つかりません。 先ずは条件などお知らせ頂けましたら非公開物件含め ピッタリのオフィスをご提案させて頂きます。 無理なお勧めはしておりませんので、お気軽にお問い合わせください。
対面でのご相談も受け付けております
ご来店も歓迎です
オフィス移転は社内・社外ともに非公開に行われることが殆どです。そのためアットオフィスでは、基本的に訪問によるコンサルティングを行っておりますが、ご来店の相談も歓迎です。お一人おひとりに親身にご対応させて頂きたい為、要予約とさせて頂いております。ご来店の際は先ずは下記よりご予約下さい。
中野区エリアでアクセスビルに似た条件の物件
読込中...
アクセスビルと同じ最寄駅の物件
読込中...
| 取扱様態 | 仲介 |
|---|---|
| 取扱会社 | 株式会社 アットオフィス |