※このサイトに記載がある賃貸条件は、敷金・保証金などの預かり金を除き、別途消費税がかかります。
物件情報
設備詳細
| 空調 | - |
|---|---|
| トイレ | - |
| 床仕様 | - |
| エレベータ | 1 基 |
| 駐車場設備 | 空有 |
| その他 | 機械警備 / 光ファイバー / 新耐震基準 |
日東ビルの賃貸オフィス・事務所に関するお問い合わせ
日東ビルについて
日東ビルは、東京都台東区浅草橋1丁目に位置する、1992年に竣工された賃貸オフィスビルです。このビルは、新耐震基準に則って建築された10階建てのオフィスビルであり、その安全性には特に注目が集まります。また、浅草橋駅から徒歩わずか1分という利便性の高い立地にあり、ビジネスの拠点として理想的な環境を提供します。 ビルの設備面では、24時間利用可能な機械警備システムが導入されており、セキュリティ面での安心感を提供します。また、ビル内には機械式の月極駐車場が設けられており、駐車スペースの確保が必要なテナントにも対応しています。さらに、エレベーターは1基設置されており、ビルの各階へのアクセスもスムーズです。 外観は、白いパネル張りで、清潔感あふれるデザインが特徴的です。エントランスや外観の管理状態も良好で、訪れる人々に良い印象を与えます。オフィススペースとしては、全館で400回線の電話回線数を確保しており、通信インフラも充実しています。これにより、幅広いワーキングスタイルに対応し、様々な業種の企業が活用できる環境が整っています。 立地に関しても、江戸通り沿いに位置し、周辺は人通りも交通量も多く、賑やかな印象を受けるエリアです。浅草橋駅周辺には飲食店が充実しており、ビジネスランチやアフター5の憩いの場としても便利です。また、近隣にはファミリーマート台東柳橋一丁目店やドトール浅草橋南店など、日常の利便性を高める施設が揃っています。 日東ビルは、その優れた耐震性、利便性の高い立地、充実した設備、そして快適なワーキング環境を提供することで、ビジネスの成功をサポートする理想的なオフィススペースです。ビジネスの拠点として、または新たなオフィス移転先として、多くの企業にとって魅力的な選択肢となるでしょう。
日東ビルのこだわり
自分で探すより問い合わせる方が早いことがあります
WEB非公開物件があるから
オーナー様のご希望により「WEBでは非公開」にしている物件があります。 それらはWEBでいくら検索しても見つかりません。 先ずは条件などお知らせ頂けましたら非公開物件含め ピッタリのオフィスをご提案させて頂きます。 無理なお勧めはしておりませんので、お気軽にお問い合わせください。
対面でのご相談も受け付けております
ご来店も歓迎です
オフィス移転は社内・社外ともに非公開に行われることが殆どです。そのためアットオフィスでは、基本的に訪問によるコンサルティングを行っておりますが、ご来店の相談も歓迎です。お一人おひとりに親身にご対応させて頂きたい為、要予約とさせて頂いております。ご来店の際は先ずは下記よりご予約下さい。
募集終了のテナント区画
| 階数 | 坪数 | 賃料 + 共益費 | 敷金/礼金敷金 礼金 | 検討 |
|---|---|---|---|---|
| 1階 | 38.72坪 (128.87m²) | 募集終了 | - | - |
| 2階 | 49.67坪 (164.19m²) | 募集終了 | - | - |
| 3階 | 56.18坪 (185.71m²) | 募集終了 | - | - |
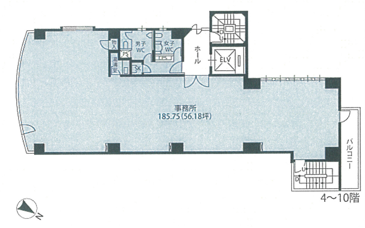
| 4階 | 56.18坪 (185.75m²) | 募集終了 | - | - |
| 5階 | 56.18坪 (185.75m²) | 募集終了 | - | - |
| 6階 | 56.18坪 (185.75m²) | 募集終了 | - | - |
| 7階 | 56.18坪 (185.75m²) | 募集終了 | - | - |
| 8階 | 56.18坪 (185.71m²) | 募集終了 | - | - |
| 9階 | 56.18坪 (185.75m²) | 募集終了 | - | - |
| 10階 | 56.18坪 (185.75m²) | 募集終了 | - | - |
読込中...
浅草橋/蔵前/浅草エリアで日東ビルに似た条件の物件
読込中...
| 取扱様態 | 仲介 |
|---|---|
| 取扱会社 | 株式会社 アットオフィス |