KDX新日本橋駅前ビル9階の賃貸情報
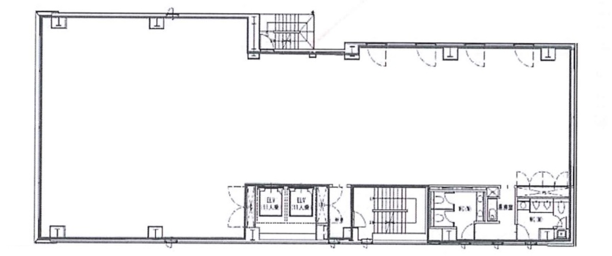
108.67 坪 (359.24m²)
※このサイトに記載がある賃貸条件は、敷金・保証金などの預かり金を除き、別途消費税がかかります。
KDX新日本橋駅前ビルの建物概要
設備詳細
| 空調 | 個別空調 |
|---|---|
| トイレ | - |
| 床仕様 | OA対応床(フリーアクセス) |
| エレベータ | 2 基 |
| 駐車場設備 | 空有 / 機械式駐車場 |
| その他 | 光ファイバー / 24時間利用可 / 機械警備 / 新耐震基準 / クリニック |
KDX新日本橋駅前ビル9階の賃貸オフィス・事務所に関するお問い合わせ
KDX新日本橋駅前ビルについて
KDX新日本橋駅前ビルは、東京都中央区日本橋本町4丁目に位置する、ビジネスの中心地にふさわしい優れたオフィスビルです。このビルの最大の特徴は、その立地の利便性と、ビル自体の高いスペックにあります。新日本橋駅からわずか徒歩1分の距離にあり、三越前駅、神田駅、小伝馬町駅へも徒歩圏内という、3駅以上利用可能な絶好のロケーションを誇ります。ビジネスに最適なこの場所は、周辺に多彩なランチスポットや便利な商業施設が揃っているため、働く人々の日々の生活を大きくサポートします。 建物自体は1992年に竣工し、耐震性に優れたオフィスビルとしての信頼性を確立しています。基準階の広さは100坪を超える広々とした空間で、室内は長方形に近い形状をしており、柱を壁に寄せることで広々とした使い勝手の良いオフィス環境を提供しています。天井高は2,600mmと広々としており、開放感あふれるオフィス空間を実現しています。 エントランスは2016年3月にリニューアルされ、石造りの高級感溢れるデザインで訪れる人々を迎え入れます。ビル内には三菱東京UFJ銀行のATMが設置されており、ビル利用者の便利を考えたサービスが充実しています。また、セキュリティカードを利用した機械式警備システムを導入しており、24時間利用可能な安心と安全を提供しています。 立地、設備、セキュリティ全てにおいて最高水準を誇るKDX新日本橋駅前ビルは、高いスペックを求める企業にとって最適な選択肢です。このビルは、ビジネスの成功に不可欠な要素を全て備えており、ここでのオフィスライフは、企業にとって、そして働く人々にとって、大きな価値をもたらします。
自分で探すより問い合わせる方が早いことがあります
WEB非公開物件があるから
オーナー様のご希望により「WEBでは非公開」にしている物件があります。 それらはWEBでいくら検索しても見つかりません。 先ずは条件などお知らせ頂けましたら非公開物件含め ピッタリのオフィスをご提案させて頂きます。 無理なお勧めはしておりませんので、お気軽にお問い合わせください。
対面でのご相談も受け付けております
ご来店も歓迎です
オフィス移転は社内・社外ともに非公開に行われることが殆どです。そのためアットオフィスでは、基本的に訪問によるコンサルティングを行っておりますが、ご来店の相談も歓迎です。お一人おひとりに親身にご対応させて頂きたい為、要予約とさせて頂いております。ご来店の際は先ずは下記よりご予約下さい。
近くのエリアで探してみる
八重洲/日本橋/三越前エリアでKDX新日本橋駅前ビルに似た条件の物件
読込中...
KDX新日本橋駅前ビルと同じ最寄駅の物件
読込中...
| 取扱様態 | 仲介 |
|---|---|
| 取扱会社 | 株式会社 アットオフィス |