※このサイトに記載がある賃貸条件は、敷金・保証金などの預かり金を除き、別途消費税がかかります。
物件情報
設備詳細
| 空調 | 個別空調 |
|---|---|
| トイレ | 男女別トイレ室外 |
| 床仕様 | - |
| エレベータ | 1 基 |
| 駐車場設備 | - |
| その他 | 新耐震基準 / 東京賃料が坪11000円以下 |
天心堂ビルの賃貸オフィス・事務所に関するお問い合わせ
天心堂ビルについて
天心堂ビルは、東京都豊島区池袋1丁目に位置するオフィス賃貸ビルです。池袋駅から徒歩5分という優れた立地にあり、都心へのアクセスが非常に便利です。池袋駅は山手線をはじめ、多数の路線が乗り入れており、交通の利便性に優れたエリアです。 このビルは新耐震基準に基づいて建設されており、耐震性能を高めた設計が施されています。企業のBCP(事業継続計画)対策としても安心して利用できる点が評価されています。また、ビル内には1基のエレベーターが設置されており、従業員や訪問者の移動をスムーズにサポートします。 天心堂ビルの設備や立地に関する強みは、以下の通りです。 1. **交通アクセスの良さ**: 池袋駅から徒歩5分という位置にあり、山手線をはじめとする複数の路線が利用可能なため、都心各地への移動が非常に便利です。これにより、ビジネスのフットワークが軽くなり、クライアントやパートナー企業との連携がスムーズに行えます。 2. **新耐震基準対応**: 新耐震基準に基づいて建設されているため、地震に対する安全性が高く、企業のリスクマネジメントの観点からも安心して利用できます。 3. **省スペースでの効率的なオフィス環境**: 1基のエレベーターが効率的に配置されており、ビル内での移動がスムーズに行えるため、オフィスレイアウトの自由度が高いです。これにより、企業は業務効率を最大化するためのレイアウトを容易に設計することができます。 4. **池袋エリアの多様な利便性**: 池袋は商業施設や飲食店が多く、社員のランチや仕事後のリフレッシュに最適な環境が整っています。また、ビジネスホテルや会議施設も充実しており、出張や会議の際にも利便性が高いです。 総じて、天心堂ビルは交通アクセスの良さに加え、新耐震基準対応の安心感、効率的なオフィス環境を提供する点で、企業にとって非常に魅力的なオフィス賃貸物件です。池袋という活気あるエリアに位置し、ビジネスの拠点として非常に優れた選択肢となるでしょう。
天心堂ビルのこだわり
自分で探すより問い合わせる方が早いことがあります
WEB非公開物件があるから
オーナー様のご希望により「WEBでは非公開」にしている物件があります。 それらはWEBでいくら検索しても見つかりません。 先ずは条件などお知らせ頂けましたら非公開物件含め ピッタリのオフィスをご提案させて頂きます。 無理なお勧めはしておりませんので、お気軽にお問い合わせください。
対面でのご相談も受け付けております
ご来店も歓迎です
オフィス移転は社内・社外ともに非公開に行われることが殆どです。そのためアットオフィスでは、基本的に訪問によるコンサルティングを行っておりますが、ご来店の相談も歓迎です。お一人おひとりに親身にご対応させて頂きたい為、要予約とさせて頂いております。ご来店の際は先ずは下記よりご予約下さい。
募集終了のテナント区画
| 階数 | 坪数 | 賃料 + 共益費 | 敷金/礼金敷金 礼金 | 検討 |
|---|---|---|---|---|
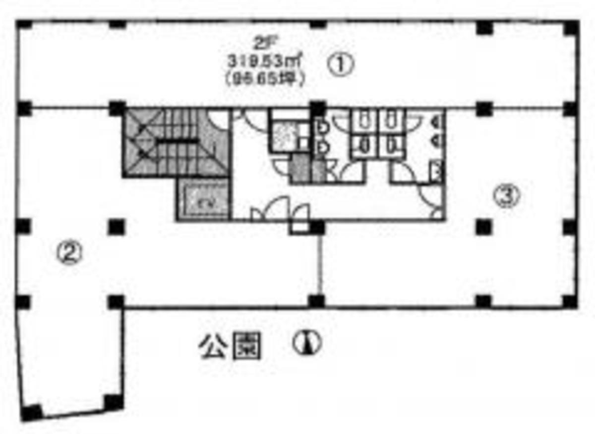
| 2階 | 96.66坪 (319.53m²) | 募集終了 | - | - |
| 2階 | 30坪 (99.17m²) | 募集終了 | - | - |
| 3階 | 40.41坪 (133.58m²) | 募集終了 | - | - |
読込中...
池袋/大塚/目白エリアで天心堂ビルに似た条件の物件
読込中...
| 取扱様態 | 仲介 |
|---|---|
| 取扱会社 | 株式会社 アットオフィス |