オカムラ赤坂ビル5階の賃貸情報
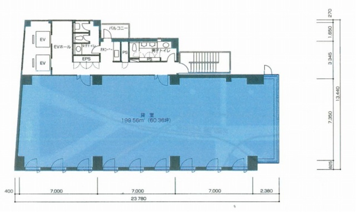
60.36 坪 (199.54m²)
※このサイトに記載がある賃貸条件は、敷金・保証金などの預かり金を除き、別途消費税がかかります。
オカムラ赤坂ビルの建物概要
設備詳細
| 空調 | 個別空調 |
|---|---|
| トイレ | - |
| 床仕様 | OA対応床(フリーアクセス) |
| エレベータ | 2 基 |
| 駐車場設備 | - |
| その他 | 新耐震基準 |
オカムラ赤坂ビル5階の賃貸オフィス・事務所に関するお問い合わせ
オカムラ赤坂ビルについて
オカムラ赤坂ビルは、千代田区永田町に位置し、赤坂見附駅からわずか徒歩3分という絶好の立地にございます。1999年に竣工されたこの耐震性に優れたオフィスビルは、地上9階建てで、モダンで洗練された白を基調としたデザインが特徴です。ビジネスの中心地にありながら、静かで落ち着いた環境を提供しております。 設備面では、各フロアに個別空調を完備しており、2580mmの天井高が広々とした開放感を演出します。約60坪の基準階面積は、長方形の間取りで実用的なレイアウトが可能であり、効率的なオフィス環境を実現します。男女別トイレおよび給湯スペースは共用部に設置されており、清潔かつ快適なオフィスライフをサポートします。 セキュリティ面では、機械警備システムを採用し、入退館管理を徹底しております。また、ビル内に月極駐車場を設置しており、車通勤される方にも大変便利です。 立地面では、赤坂見附駅のほか、赤坂駅・溜池山王駅・永田町駅が徒歩圏内にあり、複数の路線を利用可能でアクセスが非常に良好です。また、ビルが外堀通りに面しており、日枝神社に隣接した緑豊かな環境も魅力の一つです。周辺には飲食店が豊富にあり、ビジネスランチやアフター5の利用にも困りません。 オカムラ赤坂ビルは、高品質なオフィス環境と抜群のアクセスの良さ、そしてビジネスに必要なあらゆる要素を兼ね備えた、まさに理想的なオフィスビルです。ビジネスの成長と発展を支える場所として、ぜひオカムラ赤坂ビルをご検討ください。
オカムラ赤坂ビルのこだわり
自分で探すより問い合わせる方が早いことがあります
WEB非公開物件があるから
オーナー様のご希望により「WEBでは非公開」にしている物件があります。 それらはWEBでいくら検索しても見つかりません。 先ずは条件などお知らせ頂けましたら非公開物件含め ピッタリのオフィスをご提案させて頂きます。 無理なお勧めはしておりませんので、お気軽にお問い合わせください。
対面でのご相談も受け付けております
ご来店も歓迎です
オフィス移転は社内・社外ともに非公開に行われることが殆どです。そのためアットオフィスでは、基本的に訪問によるコンサルティングを行っておりますが、ご来店の相談も歓迎です。お一人おひとりに親身にご対応させて頂きたい為、要予約とさせて頂いております。ご来店の際は先ずは下記よりご予約下さい。
近くのエリアで探してみる
霞が関/日比谷/永田町エリアでオカムラ赤坂ビルに似た条件の物件
読込中...
オカムラ赤坂ビルと同じ最寄駅の物件
読込中...
| 取扱様態 | 仲介 |
|---|---|
| 取扱会社 | 株式会社 アットオフィス |