御殿山トラストタワーの賃料条件
| 階数 | 坪数 | 賃料 + 共益費 | 敷金/礼金敷金 礼金 | 検討 |
|---|---|---|---|---|
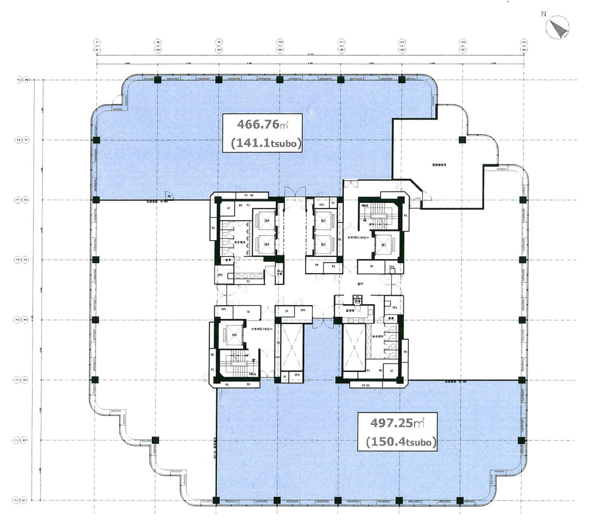
| 2階 | 133.1坪 (440.17m²) | お問合せ下さい (坪:-) | 相談 無相談/無 | |
| 5階 | 274.4坪 (907.22m²) | お問合せ下さい (坪:-) | 相談 無相談/無 | |
| 6階 | 238.6坪 (789.05m²) | お問合せ下さい (坪:-) | 相談 無相談/無 |
※このサイトに記載がある賃貸条件は、敷金・保証金などの預かり金を除き、別途消費税がかかります。
物件情報
設備詳細
| 空調 | セントラル空調 |
|---|---|
| トイレ | - |
| 床仕様 | OA対応床(フリーアクセス) |
| エレベータ | 10 基 |
| 駐車場設備 | 空有 |
| その他 | 24時間利用可 / 光ファイバー / 新耐震基準 / 会議室 / 居抜き / 店舗可(飲食可) |
御殿山トラストタワーの賃貸オフィス・事務所に関するお問い合わせ
御殿山トラストタワーについて
御殿山トラストタワービルは、品川区北品川に位置する、ハイグレードオフィスビルです。このビルは、その優れた立地、施設、そして設備により、多くの企業にとって魅力的な選択肢となっています。以下では、御殿山トラストタワービルの特徴、立地、設備などの重要な点を詳細に解説し、ビルの独自の魅力やビジネスにおける利点を強調します。 ### 特徴 御殿山トラストタワービルは、1990年に竣工し、新耐震基準に準拠した設計で建設されました。基準階面積は約400坪を超える大規模オフィスビルで、全面リニューアルされた現代的な内装が特徴です。24時間利用可能で、月極駐車場もビル内に備えており、企業のニーズに柔軟に対応します。 ### 立地 JR品川駅から徒歩10分、京急北品川駅から徒歩5分、JR大崎駅から徒歩14分の距離にあり、3駅以上を利用可能な絶好の立地に位置しています。品川駅からは無料送迎バスも運行されており、アクセスの良さはビジネスの機会を最大限に引き出します。 ### 設備 御殿山トラストタワーは、広々としたオフィススペースを提供し、全方位採光による開放感ある環境が魅力です。10機のエレベーター、光ケーブルの引き込み、高性能な空調システム、OAフロアなど、企業活動を支える最先端の設備が整っています。 ### ビジネス利点 品川エリアは、新幹線の駅があることもあり、ビジネスの中心地として急激に発展しています。御殿山トラストタワービルは、このようなビジネスの中心地にあることで、企業にとって最適なビジネスチャンスを提供します。また、ビル内にはコンビニや郵便局、隣接する東京マリオットホテルや御殿山庭園など、職場環境を充実させる多様なサポート機能が整っており、従業員の満足度向上にも貢献します。 御殿山トラストタワービルは、その立地、設備、そして環境面で、企業にとって理想的なオフィススペースを提供します。このビルがあなたのビジネスの成長と発展に寄与することを、心より願っています。
御殿山トラストタワーのこだわり
自分で探すより問い合わせる方が早いことがあります
WEB非公開物件があるから
オーナー様のご希望により「WEBでは非公開」にしている物件があります。 それらはWEBでいくら検索しても見つかりません。 先ずは条件などお知らせ頂けましたら非公開物件含め ピッタリのオフィスをご提案させて頂きます。 無理なお勧めはしておりませんので、お気軽にお問い合わせください。
対面でのご相談も受け付けております
ご来店も歓迎です
オフィス移転は社内・社外ともに非公開に行われることが殆どです。そのためアットオフィスでは、基本的に訪問によるコンサルティングを行っておりますが、ご来店の相談も歓迎です。お一人おひとりに親身にご対応させて頂きたい為、要予約とさせて頂いております。ご来店の際は先ずは下記よりご予約下さい。
募集終了のテナント区画
読込中...
品川/大崎/大井エリアで御殿山トラストタワーに似た条件の物件
読込中...
| 取扱様態 | 仲介 |
|---|---|
| 取扱会社 | 株式会社 アットオフィス |