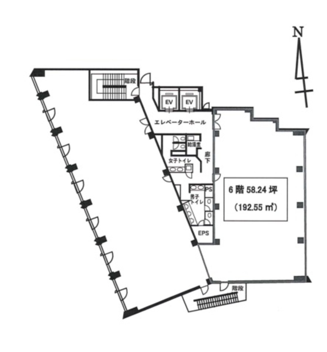
平田ビル6階の賃貸情報
58.24 坪 (192.53m²)
※このサイトに記載がある賃貸条件は、敷金・保証金などの預かり金を除き、別途消費税がかかります。
平田ビルの建物概要
設備詳細
| 空調 | 個別空調 |
|---|---|
| トイレ | - |
| 床仕様 | OA対応床(フリーアクセス) |
| エレベータ | 2 基 |
| 駐車場設備 | 空有 |
| その他 | 大型ビル / 新耐震基準 / フリーレント |
平田ビルについて
平田ビルは、東京都千代田区猿楽町二丁目に位置する、1995年に竣工した新耐震基準に対応した大型オフィスビルです。その外観は綺麗で、御影石調の重厚感あるエントランスが訪れる人々に好印象を与えます。ビルの管理はきめ細やかに行われており、設備も充実していますので、ビジネスの場としての利用において安心できる環境が整っています。 立地の面では、JR水道橋駅から徒歩わずか4分というアクセスの良さが魅力的です。さらに、地下鉄の駅も徒歩圏内に複数あり、東京都心部への移動がスムーズに行えます。この地域は、学校等が立ち並ぶ静かな雰囲気のエリアにありながら、交通の利便性も兼ね備えており、ビジネスの拠点として理想的なロケーションです。 ビル内のセキュリティは機械警備によって24時間体制で守られており、入居者の安全を確保しています。エレベーターは2機設置されており、スムーズな移動が可能です。また、ビル内に駐車場があるため、自動車を利用する入居者にとっても便利です。駐車場の空き状況については、お問い合わせが必要です。 SOHOや事務所利用に関しても相談可能であり、様々なビジネス形態に対応できる柔軟性を持っています。ビル内部は、大型でありながらも細部まで配慮された設計がなされており、働く人々にとって快適な空間が提供されています。 平田ビルは、その立地の良さ、充実した設備、新耐震基準に対応した安全性、そして美しい外観と快適なオフィス環境を兼ね備えた、ビジネスの成功をサポートする理想的なビルです。お近くにお越しの際は、ぜひご内見ください。このビルが、あなたのビジネスをさらに前進させる一助となることを確信しています。
自分で探すより問い合わせる方が早いことがあります
WEB非公開物件があるから
オーナー様のご希望により「WEBでは非公開」にしている物件があります。 それらはWEBでいくら検索しても見つかりません。 先ずは条件などお知らせ頂けましたら非公開物件含め ピッタリのオフィスをご提案させて頂きます。 無理なお勧めはしておりませんので、お気軽にお問い合わせください。
対面でのご相談も受け付けております
ご来店も歓迎です
オフィス移転は社内・社外ともに非公開に行われることが殆どです。そのためアットオフィスでは、基本的に訪問によるコンサルティングを行っておりますが、ご来店の相談も歓迎です。お一人おひとりに親身にご対応させて頂きたい為、要予約とさせて頂いております。ご来店の際は先ずは下記よりご予約下さい。
近くのエリアで探してみる
飯田橋/神保町/水道橋エリアで平田ビルに似た条件の物件
読込中...
平田ビルと同じ最寄駅の物件
読込中...
| 取扱様態 | 仲介 |
|---|---|
| 取扱会社 | 株式会社 アットオフィス |