日本橋BSビルの賃料条件
| 階数 | 坪数 | 賃料 + 共益費 | 敷金/礼金敷金 礼金 | 検討 |
|---|---|---|---|---|
| 1階 | 55.41坪 (183.19m²) | 886,560円 (坪:16,000 円) | 8ヶ月 無8ヶ月/無 | |
| 2階 | 68.2坪 (225.45m²) | 1,091,200円 (坪:16,000 円) | 8ヶ月 無8ヶ月/無 |
※このサイトに記載がある賃貸条件は、敷金・保証金などの預かり金を除き、別途消費税がかかります。
物件情報
設備詳細
| 空調 | 個別空調 |
|---|---|
| トイレ | 男女別トイレ / 男女別トイレ室内 |
| 床仕様 | OA対応床(フリーアクセス) |
| エレベータ | 1 基 / エレベーター有 |
| 駐車場設備 | 敷地内駐車場 |
| その他 | 機械警備 / 24時間利用可 / 光ファイバー / 新耐震基準 / 1階の物件 / 居抜き |
日本橋BSビルの賃貸オフィス・事務所に関するお問い合わせ
日本橋BSビルについて
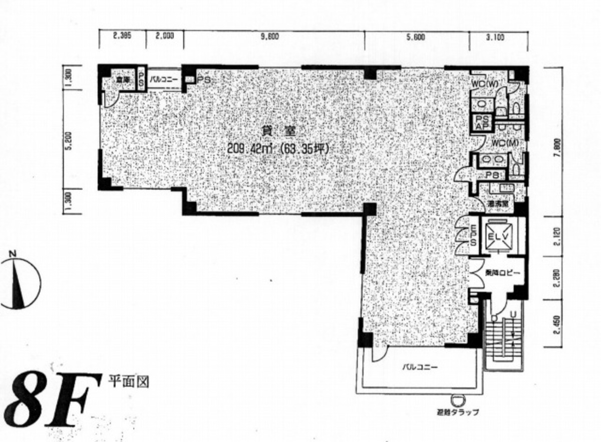
日本橋BSビルは、東京都中央区日本橋富沢町に位置し、清杉通りに面していることが特徴のオフィスビルです。このビルは1994年に竣工され、新耐震基準に適合する設計になっているため、地震発生時の安全性が高いという重要なメリットを有しています。基準階面積は約70坪で、L字型の間取りが採用されています。これにより、利用者には柔軟なレイアウト変更が可能であり、様々な業種の企業が最適なオフィス空間を実現できるでしょう。 ビルの内装においても、窓面が多く設計されているため、室内は自然光が豊富に差し込み、明るく快適な作業環境を提供します。また、エレベーターホールには大理石調の仕上げが施されており、訪れる人々に高級感あふれる印象を与えることができます。これは、来客時の印象向上に寄与し、ビジネスの信頼度を高める効果が期待できます。 立地に関しても、日本橋BSビルは非常に便利な位置にあります。東日本橋駅、馬喰町駅、馬喰横山駅から徒歩圏内にあり、3駅以上からのアクセスが可能です。これにより、従業員や来客の交通の利便性が高く、ビジネスの機動性を支援します。周辺には飲食店やコンビニも点在しており、ランチタイムや仕事後の時間も充実させることができます。 設備面では、OAフロアの採用で高い情報通信環境を整え、24時間利用可能な体制となっています。さらに、ビル内には月極駐車場が設けられ、機械警備システムにより安全性も確保されています。トイレは男女別で、リニューアルも完了しており、利用者の快適性を追求した設計となっています。 日本橋BSビルは、その立地の良さ、耐震性能、充実した設備、そして快適な作業環境を兼ね備えたオフィスビルです。これらの特性を活かして、多様なビジネスのニーズに応えることができるでしょう。企業が成長を遂げるための基盤として、または新たなビジネスの拠点として、日本橋BSビルは理想的な選択肢の一つであることは間違いありません。
自分で探すより問い合わせる方が早いことがあります
WEB非公開物件があるから
オーナー様のご希望により「WEBでは非公開」にしている物件があります。 それらはWEBでいくら検索しても見つかりません。 先ずは条件などお知らせ頂けましたら非公開物件含め ピッタリのオフィスをご提案させて頂きます。 無理なお勧めはしておりませんので、お気軽にお問い合わせください。
対面でのご相談も受け付けております
ご来店も歓迎です
オフィス移転は社内・社外ともに非公開に行われることが殆どです。そのためアットオフィスでは、基本的に訪問によるコンサルティングを行っておりますが、ご来店の相談も歓迎です。お一人おひとりに親身にご対応させて頂きたい為、要予約とさせて頂いております。ご来店の際は先ずは下記よりご予約下さい。
募集終了のテナント区画
| 階数 | 坪数 | 賃料 + 共益費 | 敷金/礼金敷金 礼金 | 検討 |
|---|---|---|---|---|
| 3階 | 68.2坪 (225.45m²) | 募集終了 | - | - |
| 4階 | 70.33坪 (232.51m²) | 募集終了 | - | - |
| 6階 | 70.33坪 (232.51m²) | 募集終了 | - | - |
| 7階 | 70.33坪 (232.5m²) | 募集終了 | - | - |
読込中...
近くのエリアで探してみる
人形町/馬喰町/浜町エリアで日本橋BSビルに似た条件の物件
読込中...
| 取扱様態 | 仲介 |
|---|---|
| 取扱会社 | 株式会社 アットオフィス |