※このサイトに記載がある賃貸条件は、敷金・保証金などの預かり金を除き、別途消費税がかかります。
お電話でもお気軽にお問い合わせください
物件情報
設備詳細
| 空調 | - |
|---|---|
| トイレ | - |
| 床仕様 | - |
| エレベータ | 1 基 |
| 駐車場設備 | 空有 / 機械式駐車場 |
| その他 | 機械警備 / 24時間利用可 / 管理人常駐 / 光ファイバー / オートロック / 新耐震基準 |
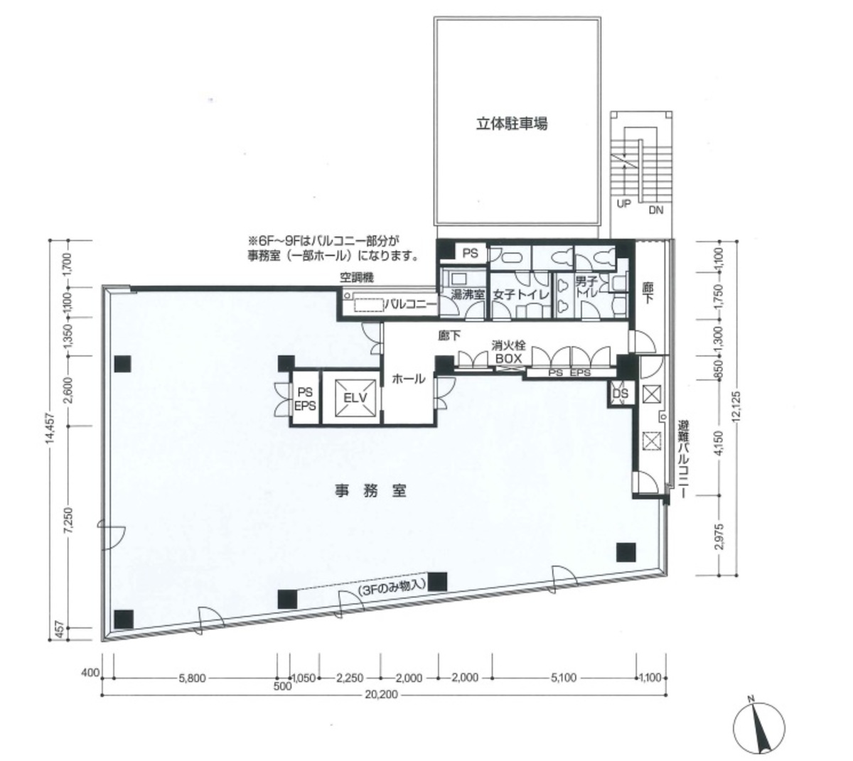
立花国際ビルは、東京都台東区雷門1丁目に位置し、1989年に竣工した賃貸オフィス物件です。築年数にもかかわらず、新耐震基準に適合して施工されており、安全面において優れた基準を満たしています。このビルは、地上11階建てで、基準階の面積は約61坪となっており、中小企業やスタートアップ企業にとって適した広さを提供しています。 物件の立地に関しては、銀座線田原町駅から徒歩3分という利便性の高い位置にあり、つくばエクスプレス浅草駅からも徒歩圏内です。また、浅草駅からは徒歩7分でアクセスでき、周辺には合羽橋商店街や多数の飲食店があり、ビジネスのみならず日常の利便性も高いエリアです。 ビル内の設備に関しても優れており、共用部の管理が行き届いているため、築年数の割に新しさを感じさせます。共用部には男女別の個室トイレが2個設置されており、快適な利用が可能です。また、セキュリティ面ではALSOK警備による安心のセキュリティ体制が整っており、入居企業にとっては大きな安心材料となります。ビルはOAフロア仕様となっており、事務所用途に最適化された設計となっています。さらに、駐車場もビル内に設置されており、空き状況に応じて利用可能です。エレベーターは1機設置されていますが、ビルの規模に見合った配置となっており、スムーズな移動が期待できます。 立花国際ビルの外観は、ガラス面の多い角ビルで、エントランスは石貼りで重厚感があります。これは、訪れるクライアントに良い印象を与えると同時に、入居企業のブランドイメージを高める効果も期待できます。 このように、立花国際ビルは、その優れた立地、堅牢なセキュリティ、利便性の高い設備、そしてビジネスのための最適化された構造を備えており、多様なニーズに応えうる賃貸オフィス物件として、特に中小企業やスタートアップ企業の皆様におすすめしたい物件です。立花国際ビルは、ビジネスの発展と共に、従業員の皆様が快適に過ごせるオフィス環境を提供します。
募集終了のテナント区画
| 階数 | 坪数 | 賃料 + 共益費 | 敷金/礼金敷金 礼金 | 検討 |
|---|---|---|---|---|
| B1階 | 36.2坪 (119.7m²) | 募集終了 | - | - |
| 1階 | 20.8坪 (68.79m²) | 募集終了 | - | - |
| 2階 | 77.17坪 (255.17m²) | 募集終了 | - | - |
| 9階 | 61.66坪 (203.84m²) | 募集終了 | - | - |
WEB非公開物件がございます
オーナー様ご希望によるWEB非公開の物件もございます。先ずは条件などお知らせ頂けましたら、非公開物件含めピッタリのオフィスをご提案させて頂きます。具体的な物件がお決まりでない場合でも問題ございません。無理なお勧めはしておりませんので、お気軽にお問い合わせください。
ご来店も歓迎です
オフィス移転は社内・社外ともに非公開に行われることが殆どです。そのためアットオフィスでは、基本的に訪問によるコンサルティングを行っておりますが、ご来店の相談も歓迎です。
※お一人おひとりに親身にご対応させて頂きたい為、要予約とさせて頂いております。ご来店の際は先ずは上記よりご予約下さい。
読込中...
浅草橋/蔵前/浅草エリアで立花国際ビルに似た条件の物件
読込中...