いちご南大塚ビル6階の賃貸情報
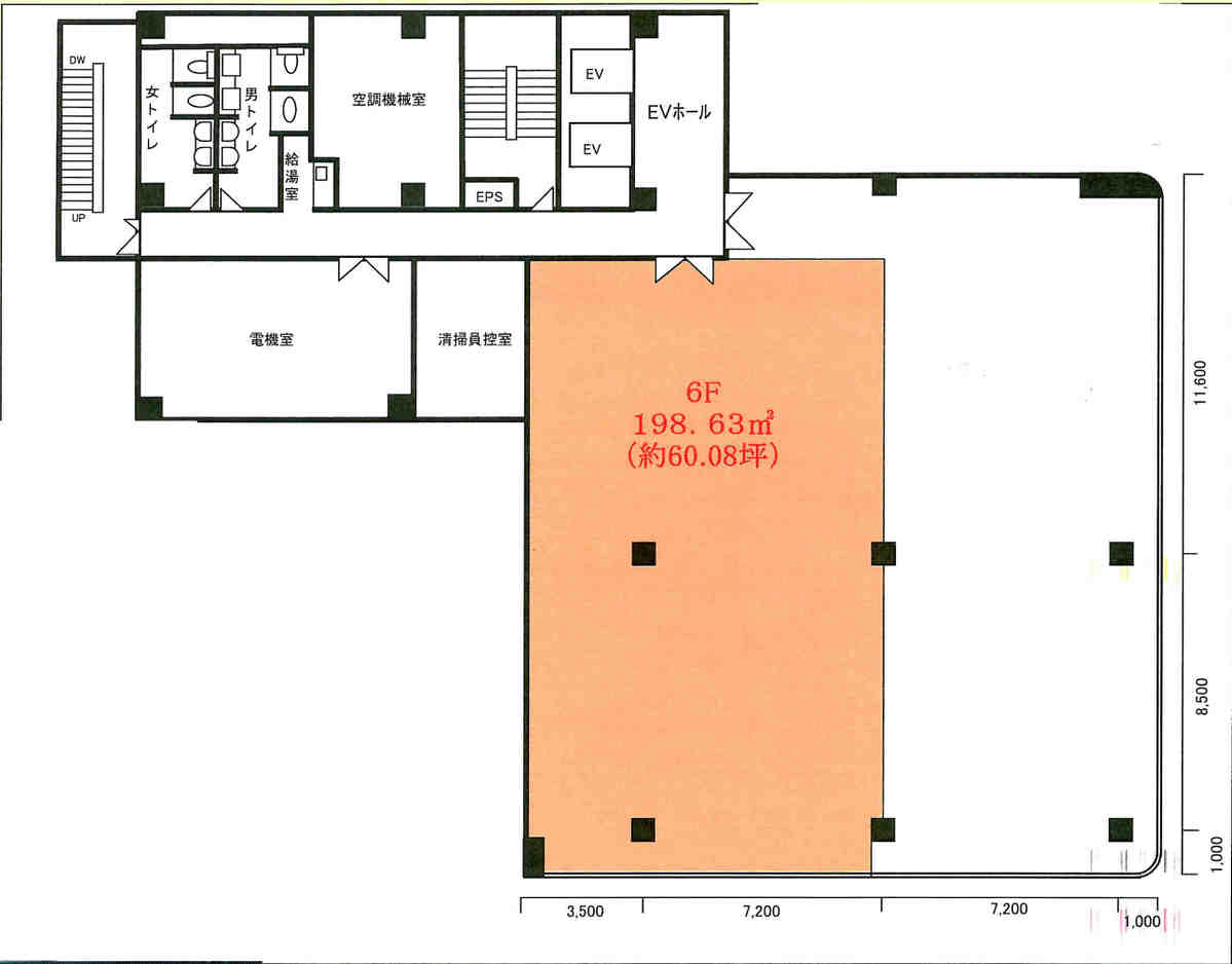
63 坪 (208.26m²)
※このサイトに記載がある賃貸条件は、敷金・保証金などの預かり金を除き、別途消費税がかかります。
いちご南大塚ビルの建物概要
設備詳細
| 空調 | 個別空調 |
|---|---|
| トイレ | - |
| 床仕様 | OA対応床(フリーアクセス) |
| エレベータ | 2 基 |
| 駐車場設備 | 空有 |
| その他 | 24時間利用可 / 大型ビル / 光ファイバー / 新耐震基準 |
いちご南大塚ビル6階の賃貸オフィス・事務所に関するお問い合わせ
いちご南大塚ビルについて
いちご南大塚ビルは、東京都豊島区南大塚に位置する、1987年に竣工された7階建てのオフィスビルです。この物件は、新大塚駅から徒歩3分、JR山手線大塚駅からは徒歩5分という、非常にアクセスが便利な立地にあります。また、都電荒川線向原駅も徒歩圏内にあるため、複数の交通手段を利用するビジネスパーソンにとって最適な環境です。 ビルの構造は鉄骨鉄筋コンクリート造で、新耐震基準に適合しており、地震に強い安全な建築物です。高速通信を支える光ファイバーの設備も整っており、ビジネスに必要な高速インターネット環境が提供されています。また、床はOAフロアを採用しており、オフィス内の配線をスマートに管理できるため、整理整頓が容易です。これにより、作業効率が向上し、快適なオフィスライフが送れることでしょう。 セキュリティ面では、機械警備が導入されており、24時間体制で安全が保たれています。また、エントランスホールは広々としており、清潔感があります。これにより、ビジネスの第一印象を良くする効果が期待できます。エレベーターは2基設置されており、スムーズな移動が可能です。 立地条件としては、ビルの周辺には飲食店やカフェが多く、ビジネスランチや打ち合わせに便利な環境が整っています。また、コンビニエンスストアや銀行などの生活インフラも充実しており、日常のさまざまなニーズに応えることができます。 いちご南大塚ビルは、その高い耐震性、優れたアクセス、整ったオフィス環境とセキュリティ、そして生活利便性の高い立地条件を兼ね備えており、ビジネスの拠点として、または新たな事務所を設立するうえで、最適な選択肢の一つと言えるでしょう。
自分で探すより問い合わせる方が早いことがあります
WEB非公開物件があるから
オーナー様のご希望により「WEBでは非公開」にしている物件があります。 それらはWEBでいくら検索しても見つかりません。 先ずは条件などお知らせ頂けましたら非公開物件含め ピッタリのオフィスをご提案させて頂きます。 無理なお勧めはしておりませんので、お気軽にお問い合わせください。
対面でのご相談も受け付けております
ご来店も歓迎です
オフィス移転は社内・社外ともに非公開に行われることが殆どです。そのためアットオフィスでは、基本的に訪問によるコンサルティングを行っておりますが、ご来店の相談も歓迎です。お一人おひとりに親身にご対応させて頂きたい為、要予約とさせて頂いております。ご来店の際は先ずは下記よりご予約下さい。
駒込/巣鴨/大塚エリアでいちご南大塚ビルに似た条件の物件
読込中...
いちご南大塚ビルと同じ最寄駅の物件
読込中...
| 取扱様態 | 仲介 |
|---|---|
| 取扱会社 | 株式会社 アットオフィス |