※このサイトに記載がある賃貸条件は、敷金・保証金などの預かり金を除き、別途消費税がかかります。
物件情報
設備詳細
| 空調 | - |
|---|---|
| トイレ | - |
| 床仕様 | OA対応床(フリーアクセス) |
| エレベータ | 2 基 |
| 駐車場設備 | 空有 / 機械式駐車場 |
| その他 | 24時間利用可 / 光ファイバー / 新耐震基準 |
南品川Jビルの賃貸オフィス・事務所に関するお問い合わせ
南品川Jビルについて
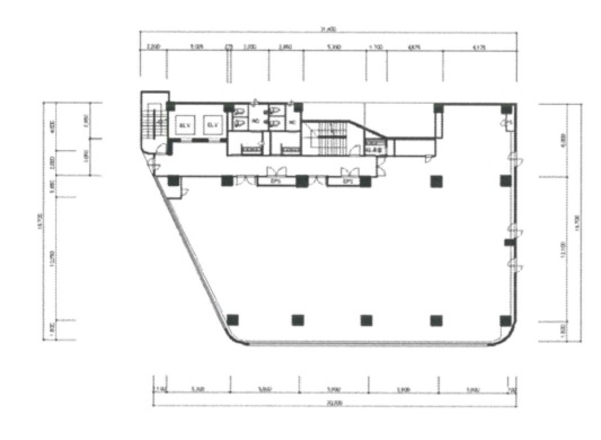
南品川Jビルは、品川区南品川に位置する賃貸オフィスビルであり、その優れた立地と設備は多くの企業にとって魅力的な選択肢となり得ます。1992年に竣工したこのビルは、新耐震基準に準拠した施工がなされており、安全性の高さが保証されています。地上10階建てで、基準階面積は約220坪となっており、企業のニーズに応じたフレキシブルなレイアウトが可能です。 立地に関しては、南品川Jビルは京急本線「青物横丁」駅から徒歩4分、さらに「新馬場」駅や「品川シーサイド」駅も徒歩圏内という、3駅利用可能な非常に便利な位置にあります。この立地は、従業員の通勤の利便性を高めるとともに、ビジネスの機会を広げるためのアクセスの良さを提供します。 ビルの設備面では、セントラル空調システムによる快適な環境作りがなされており、24時間利用可能な点も企業にとって大きなメリットです。また、男女別トイレや給湯スペースが貸室の外に設置されていることで、室内スペースの利用効率を高めています。2基のエレベーターはスムーズな移動をサポートし、ビル内には月極駐車場も完備されており、車通勤を考える従業員にも配慮されています。 南品川Jビルの室内は整形されており、レイアウト効率の良さが特徴です。L字型の基準階フロアは、効率的なスペース活用を可能にし、様々な業種の企業が自社のイメージに合わせたオフィス環境を作り上げることができます。また、募集時期によっては、分割区画の選択肢もあり、小規模から中規模の企業にも柔軟に対応することが可能です。 周辺環境も充実しており、第一京浜沿いに位置することで、ビル前面のドトールコーヒーショップや近くのまいばすけっとなど、従業員の日常生活に便利な施設が揃っています。これらの点から、南品川Jビルはビジネスの拠点として、また働きやすい環境を提供するオフィスとして、高いポテンシャルを持っています。 以上のように、南品川Jビルはその立地、設備、安全性、そして周辺環境の充実さが組み合わさることで、多様なビジネスニーズに応える賃貸オフィスとしての魅力を持っています。企業が求める様々な条件を満たす南品川Jビルは、あなたのビジネスを次のレベルへと導く最適な選択となるでしょう。
自分で探すより問い合わせる方が早いことがあります
WEB非公開物件があるから
オーナー様のご希望により「WEBでは非公開」にしている物件があります。 それらはWEBでいくら検索しても見つかりません。 先ずは条件などお知らせ頂けましたら非公開物件含め ピッタリのオフィスをご提案させて頂きます。 無理なお勧めはしておりませんので、お気軽にお問い合わせください。
対面でのご相談も受け付けております
ご来店も歓迎です
オフィス移転は社内・社外ともに非公開に行われることが殆どです。そのためアットオフィスでは、基本的に訪問によるコンサルティングを行っておりますが、ご来店の相談も歓迎です。お一人おひとりに親身にご対応させて頂きたい為、要予約とさせて頂いております。ご来店の際は先ずは下記よりご予約下さい。
募集終了のテナント区画
| 階数 | 坪数 | 賃料 + 共益費 | 敷金/礼金敷金 礼金 | 検討 |
|---|---|---|---|---|
| B1階 | 83.11坪 (274.74m²) | 募集終了 | - | - |
| 2階 | 93坪 (307.44m²) | 募集終了 | - | - |
| 3階 | 68.5坪 (226.45m²) | 募集終了 | - | - |
| 4階 | 121坪 (400m²) | 募集終了 | - | - |
| 4階 | 38.34坪 (126.74m²) | 募集終了 | - | - |
| 5階 | 121.11坪 (400.36m²) | 募集終了 | - | - |
| 6階 | 123.22坪 (407.34m²) | 募集終了 | - | - |
| 6階 | 58.72坪 (194.11m²) | 募集終了 | - | - |
| 6階 | 64.69坪 (213.85m²) | 募集終了 | - | - |
| 7階 | 69.33坪 (229.2m²) | 募集終了 | - | - |
| 7階 | 35.37坪 (116.93m²) | 募集終了 | - | - |
| 8階 | 103.58坪 (342.41m²) | 募集終了 | - | - |
| 8階 | 35.37坪 (116.93m²) | 募集終了 | - | - |
| 8階 | 68.21坪 (225.49m²) | 募集終了 | - | - |
| 9階 | 68.21坪 (225.49m²) | 募集終了 | - | - |
| 9階 | 35.37坪 (116.93m²) | 募集終了 | - | - |
| 9階 | 103.58坪 (342.41m²) | 募集終了 | - | - |
読込中...
品川/大崎/大井エリアで南品川Jビルに似た条件の物件
読込中...
| 取扱様態 | 仲介 |
|---|---|
| 取扱会社 | 株式会社 アットオフィス |