日本生命銀座ビル4階の賃貸情報
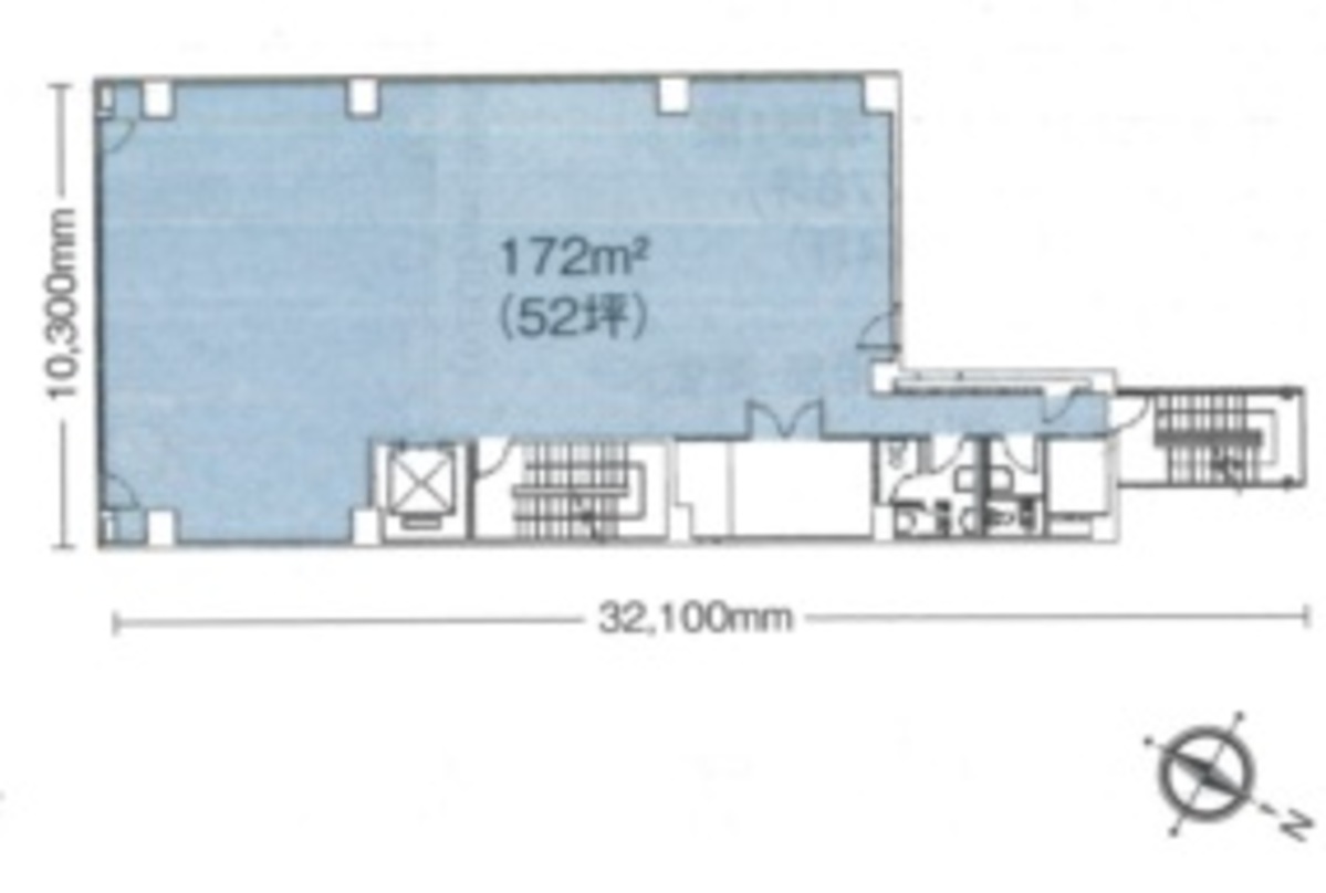
52.09 坪 (172.19m²)
※このサイトに記載がある賃貸条件は、敷金・保証金などの預かり金を除き、別途消費税がかかります。
日本生命銀座ビルの建物概要
設備詳細
| 空調 | 個別空調 |
|---|---|
| トイレ | - |
| 床仕様 | - |
| エレベータ | 1 基 |
| 駐車場設備 | - |
| その他 | 新耐震基準 |
日本生命銀座ビルについて
日本生命銀座ビルは、中央区銀座2丁目の中央通りに面した、1983年竣工の地上9階・地下1階建ての耐震オフィスビルです。2004年にはリニューアル工事を経て、更に魅力的なオフィス空間へと生まれ変わりました。こちらのビルは、その立地の良さと機能性から、多くのビジネスマンに選ばれています。 立地については、銀座一丁目駅8番出口から徒歩わずか3分という驚異のアクセスの良さを誇ります。さらに、銀座駅、有楽町駅、東銀座駅、京橋駅、宝町駅といった複数の駅が利用可能で、都心を行き来するビジネスシーンに最適な立地条件を持っています。この好立地は、ビジネスの機会を広げる大きな鍵となるでしょう。 ビルの設備面では、基準階約54坪のオフィススペースが用意されており、効率的なレイアウトが可能なほぼ長方形の間取りが特徴です。また、1階には老舗の和菓子・洋菓子店が、地下1階には魅力的な飲食店が入居しており、ビジネスの合間の息抜きにも最適です。1機のエレベーターが設置され、オフィスへのアクセスもスムーズです。 ビルの周辺環境も魅力の一つ。中央通り沿いという立地で、ティファニー、ブルガリ、ルイヴィトン、松屋銀座といった高級ブランドショップや商業施設が近隣に並び、ビジネスの場としてだけでなく、ショッピングやレジャーにも便利なエリアです。また、近くには銀行、郵便局、コンビニなど生活に必要な施設も揃っており、日々のビジネスライフをサポートします。 日本生命銀座ビルは、ビジネスを行う上で欠かせない要素を網羅したオフィスビルです。その立地の良さ、機能的な設備、豊富な周辺施設という3つの大きな魅力により、働く皆様のビジネスを全面的にサポート。日々の業務をより効率的かつ快適に遂行したい方に、最適なオフィススペースと言えるでしょう。
日本生命銀座ビルのこだわり
自分で探すより問い合わせる方が早いことがあります
WEB非公開物件があるから
オーナー様のご希望により「WEBでは非公開」にしている物件があります。 それらはWEBでいくら検索しても見つかりません。 先ずは条件などお知らせ頂けましたら非公開物件含め ピッタリのオフィスをご提案させて頂きます。 無理なお勧めはしておりませんので、お気軽にお問い合わせください。
対面でのご相談も受け付けております
ご来店も歓迎です
オフィス移転は社内・社外ともに非公開に行われることが殆どです。そのためアットオフィスでは、基本的に訪問によるコンサルティングを行っておりますが、ご来店の相談も歓迎です。お一人おひとりに親身にご対応させて頂きたい為、要予約とさせて頂いております。ご来店の際は先ずは下記よりご予約下さい。
銀座エリアで日本生命銀座ビルに似た条件の物件
読込中...
日本生命銀座ビルと同じ最寄駅の物件
読込中...
| 取扱様態 | 仲介 |
|---|---|
| 取扱会社 | 株式会社 アットオフィス |