※このサイトに記載がある賃貸条件は、敷金・保証金などの預かり金を除き、別途消費税がかかります。
物件情報
設備詳細
| 空調 | セントラル空調 |
|---|---|
| トイレ | - |
| 床仕様 | OA対応床(フリーアクセス) |
| エレベータ | 12 基 |
| 駐車場設備 | 空有 |
| その他 | 光ファイバー / 新耐震基準 / 居抜き |
エステック情報ビルの賃貸オフィス・事務所に関するお問い合わせ
エステック情報ビルについて
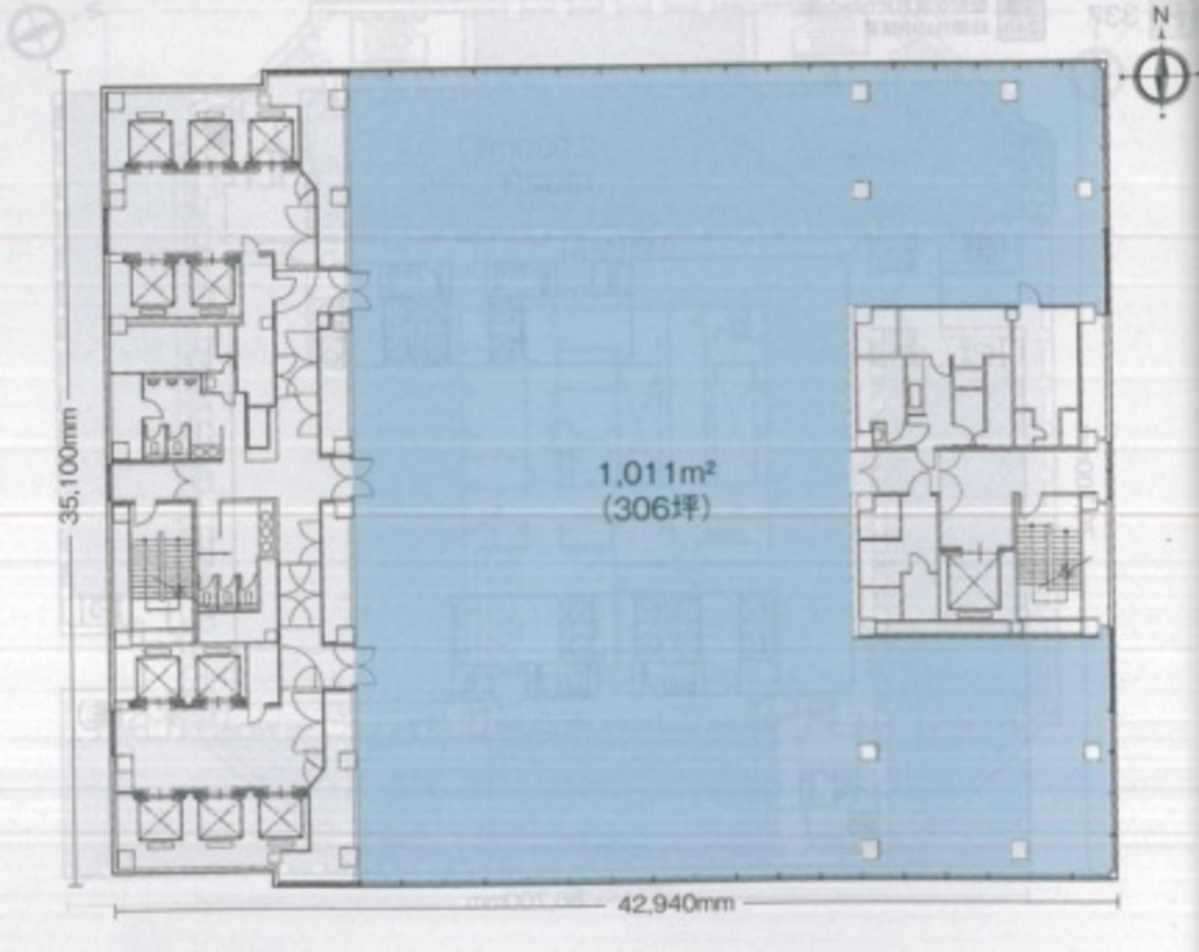
エステック情報ビルは、東京都新宿区西新宿に所在し、1992年に竣工した地上28階建て、地下6階のオフィスビルです。当ビルは、JR新宿駅西口から地下通路を通じてわずか5分という至近距離に位置し、大江戸線都庁前駅や丸の内線西新宿駅からもアクセスが容易な好立地にあります。この立地条件により、従業員や訪問客の利便性が高く、ビジネスチャンスの拡大に寄与します。 ビルの構造は、耐震設計が施された安全性の高い建築であり、12基のエレベーターが設置されています。これにより、ビル内の移動の効率化が図られています。基準階面積は300坪超と広々としており、無柱空間のためオフィスレイアウトの自由度が高い点も魅力の一つです。床荷重は300kg/㎡と一部500kg/㎡を確保しており、様々な業種のニーズに応えることが可能です。 また、ビル内には貸会議室や貸ギャラリーが設けられており、ビジネスミーティングやイベント開催に適しています。1階にはカフェがあり、地下には居酒屋やコンビニなどの多数の店舗が入居しており、ビル内で飲食や買い物が完結できる利便性があります。これらの設備は、ビルを利用する企業の従業員だけでなく、訪問客にとっても魅力的な要素となります。 駐車場は機械式と平面式を併用し、約260台を収容可能です。これにより、自動車での通勤やビジネス利用に対応しています。セキュリティ体制も万全で、24時間利用可能な空調と入退室システムが整っています。 エステック情報ビルは、その立地の良さ、充実した設備、そして広々としたオフィススペースにより、様々な業種の企業に適したビジネス環境を提供します。新宿区西新宿という東京の中心部に位置し、ビジネスの拠点として最適な条件を備えています。このビルが提供する環境は、企業の成長と発展をサポートし、従業員の働きやすさを向上させることでしょう。
エステック情報ビルのこだわり
自分で探すより問い合わせる方が早いことがあります
WEB非公開物件があるから
オーナー様のご希望により「WEBでは非公開」にしている物件があります。 それらはWEBでいくら検索しても見つかりません。 先ずは条件などお知らせ頂けましたら非公開物件含め ピッタリのオフィスをご提案させて頂きます。 無理なお勧めはしておりませんので、お気軽にお問い合わせください。
対面でのご相談も受け付けております
ご来店も歓迎です
オフィス移転は社内・社外ともに非公開に行われることが殆どです。そのためアットオフィスでは、基本的に訪問によるコンサルティングを行っておりますが、ご来店の相談も歓迎です。お一人おひとりに親身にご対応させて頂きたい為、要予約とさせて頂いております。ご来店の際は先ずは下記よりご予約下さい。
募集終了のテナント区画
読込中...
新宿/西新宿エリアでエステック情報ビルに似た条件の物件
読込中...
| 取扱様態 | 仲介 |
|---|---|
| 取扱会社 | 株式会社 アットオフィス |