日本綜合地所大塚ビルの賃料条件
| 階数 | 坪数 | 賃料 + 共益費 | 敷金/礼金敷金 礼金 | 検討 |
|---|---|---|---|---|
| 3階 | 119.56坪 (395.23m²) | 1,912,800円 (坪:16,000 円) | 8ヶ月 1ヶ月8ヶ月/1ヶ月 | |
| 4階 | 47.57坪 (157.26m²) | 761,120円 (坪:16,000 円) | 8ヶ月 1ヶ月8ヶ月/1ヶ月 |
※このサイトに記載がある賃貸条件は、敷金・保証金などの預かり金を除き、別途消費税がかかります。
物件情報
設備詳細
| 空調 | 個別空調 |
|---|---|
| トイレ | - |
| 床仕様 | OA対応床(フリーアクセス) |
| エレベータ | 2 基 |
| 駐車場設備 | 空有 |
| その他 | 機械警備 / 24時間利用可 / 大型ビル / 光ファイバー / 新耐震基準 |
日本綜合地所大塚ビルの賃貸オフィス・事務所に関するお問い合わせ
日本綜合地所大塚ビルについて
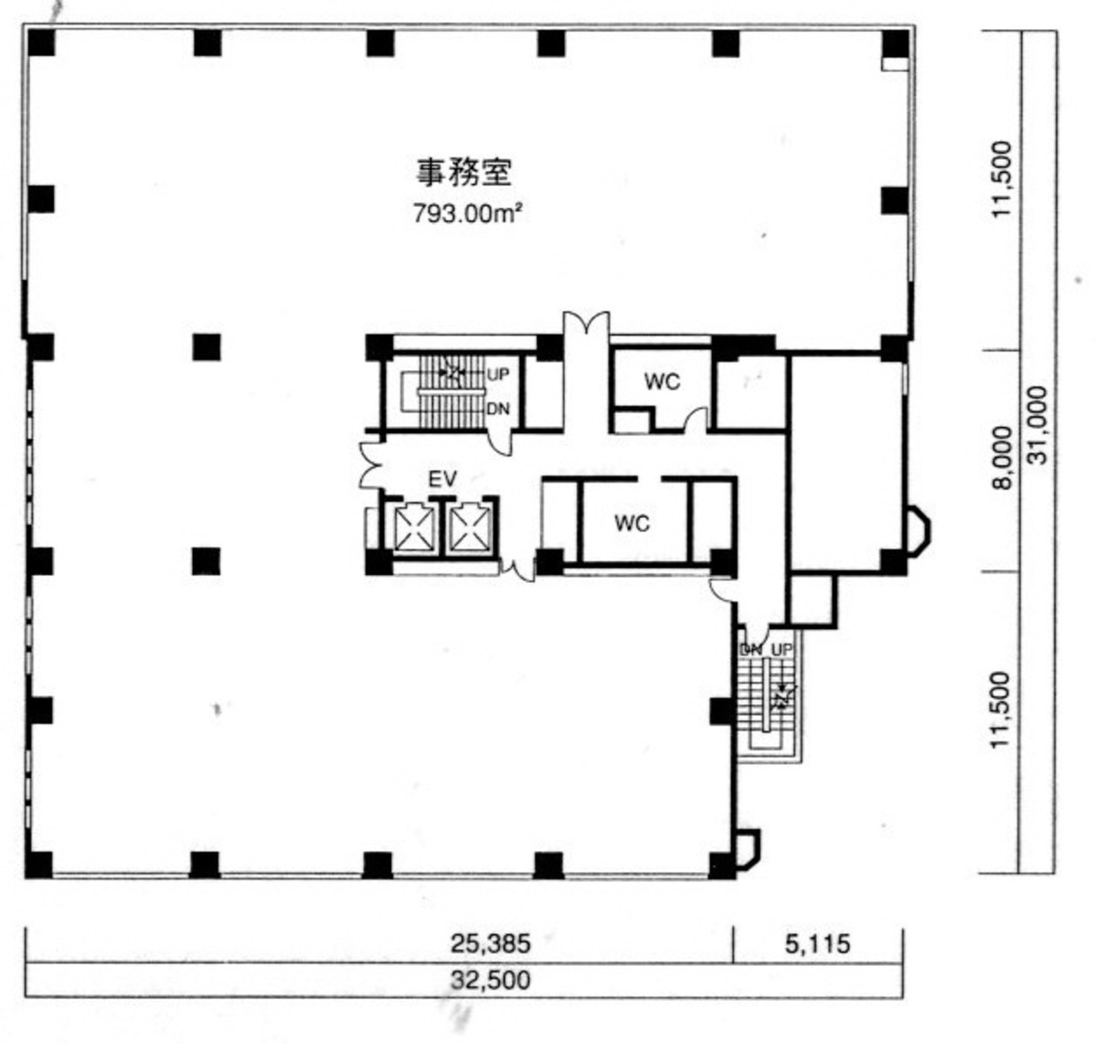
日本綜合地所大塚ビルは、東京都豊島区北大塚に位置する現代的なオフィスビルです。1993年に竣工されたこの物件は、新耐震基準に基づいて建築されたことで、安全性が高く評価されております。ビルは5階建てで、基準階約239坪の広さを誇り、合計で200坪を超える大型オフィススペースを提供しています。 立地において、大塚ビルは大塚駅から徒歩3分という駅近の利便性を備えており、周辺には大塚駅前駅や巣鴨新田駅も利用可能です。このアクセスの良さは、ビジネスでの移動効率を高める重要な要素となっています。また、ビルの周辺はオフィスビルと集合住宅が混在する落ち着いた環境であり、近くにはコンビニエンスストアや飲食店が充実しており、日常の利便性も良好です。 ビルの設備面では、個別空調システムや65VA/㎡の電力供給能力を備え、テナントのニーズに応じた快適なオフィス環境を提供しています。ビル内には2基のエレベーターがあり、スムーズな移動が可能です。また、セキュリティ面では機械警備が完備されており、24時間体制で安心して業務を行うことができます。駐車場は地下に平面式で設けられており、16台の収容能力があります。 外観はミラーガラスと石造りの組み合わせが印象的で、ビルの存在感を際立たせています。エントランスホールは広々としており、訪れる人々に高級感と開放感を提供します。 日本綜合地所大塚ビルは、その耐震性、アクセスの良さ、充実した設備、そして優れたセキュリティ体制を兼ね備え、多様なビジネスニーズに応えることができるビルとして、多くの企業にとって魅力的な選択肢となるでしょう。このビルは、快適で安全、かつ効率的なビジネス運営を支援するための理想的な環境を提供します。
自分で探すより問い合わせる方が早いことがあります
WEB非公開物件があるから
オーナー様のご希望により「WEBでは非公開」にしている物件があります。 それらはWEBでいくら検索しても見つかりません。 先ずは条件などお知らせ頂けましたら非公開物件含め ピッタリのオフィスをご提案させて頂きます。 無理なお勧めはしておりませんので、お気軽にお問い合わせください。
対面でのご相談も受け付けております
ご来店も歓迎です
オフィス移転は社内・社外ともに非公開に行われることが殆どです。そのためアットオフィスでは、基本的に訪問によるコンサルティングを行っておりますが、ご来店の相談も歓迎です。お一人おひとりに親身にご対応させて頂きたい為、要予約とさせて頂いております。ご来店の際は先ずは下記よりご予約下さい。
募集終了のテナント区画
| 階数 | 坪数 | 賃料 + 共益費 | 敷金/礼金敷金 礼金 | 検討 |
|---|---|---|---|---|
| 1階 | 108.16坪 (357.53m²) | 募集終了 | - | - |
| 1階 | 72.7坪 (240.33m²) | 募集終了 | - | - |
| 2階 | 119.71坪 (395.74m²) | 募集終了 | - | - |
| 2階 | 120坪 (396.69m²) | 募集終了 | - | - |
| 2階 | 71.46坪 (236.26m²) | 募集終了 | - | - |
| 3階 | 239.67坪 (792.32m²) | 募集終了 | - | - |
| 3階 | 90.34坪 (298.65m²) | 募集終了 | - | - |
| 3階 | 120.3坪 (397.68m²) | 募集終了 | - | - |
| 3階 | 76.7坪 (253.55m²) | 募集終了 | - | - |
| 4階 | 149.42坪 (493.95m²) | 募集終了 | - | - |
| 5階 | 239.76坪 (792.32m²) | 募集終了 | - | - |
| 5階 | 90.34坪 (298.64m²) | 募集終了 | - | - |
読込中...
駒込/巣鴨/大塚エリアで日本綜合地所大塚ビルに似た条件の物件
読込中...
| 取扱様態 | 仲介 |
|---|---|
| 取扱会社 | 株式会社 アットオフィス |