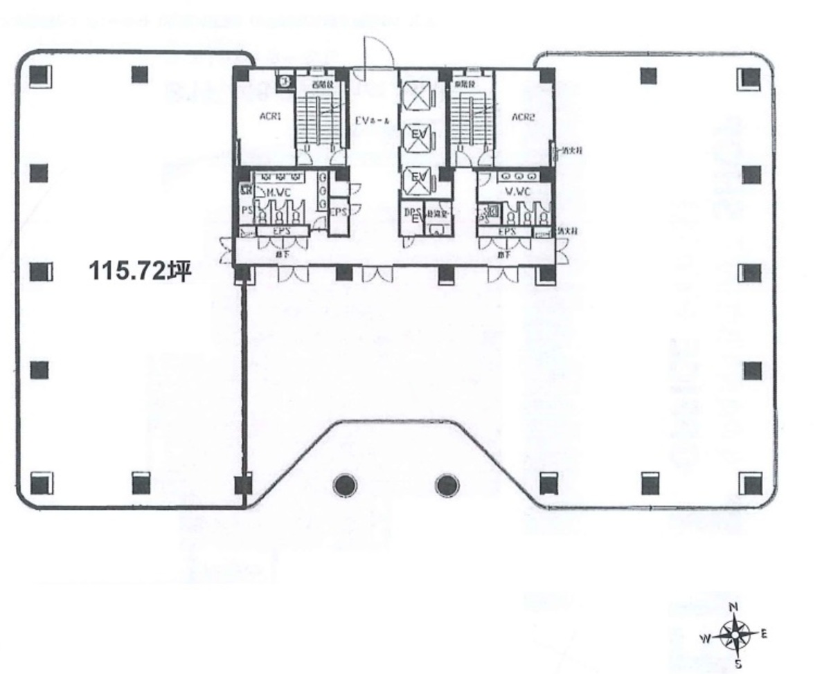
日教販ビルの賃料条件
| 階数 | 坪数 | 賃料 + 共益費 | 敷金/礼金敷金 礼金 | 検討 |
|---|---|---|---|---|
| 2階 | 115.72坪 (382.55m²) | 2,545,840円 (坪:22,000 円) | 12ヶ月 無12ヶ月/無 |
※このサイトに記載がある賃貸条件は、敷金・保証金などの預かり金を除き、別途消費税がかかります。
物件情報
設備詳細
| 空調 | 個別空調 |
|---|---|
| トイレ | 男女別トイレ室外 |
| 床仕様 | OA対応床(フリーアクセス) |
| エレベータ | 3 基 |
| 駐車場設備 | 空有 |
| その他 | 機械警備 / 24時間利用可 / 光ファイバー / 新耐震基準 |
日教販ビルの賃貸オフィス・事務所に関するお問い合わせ
日教販ビルについて
# 【日教販ビルの魅力と特性】文京区後楽に位置する日教販ビルの完全ガイド 日教販ビルは、東京の中心部、文京区後楽にある賃貸オフィスビルで、1989年に竣工された耐震構造のビルです。このビルは、その立地の利便性と共に、機能性と安全性を兼ね備えたビジネス環境を提供しており、多くの企業にとって魅力的な選択肢となっています。 ## 1. 【立地の優位性】 日教販ビルは、飯田橋駅から徒歩5分という駅近の立地にあります。JR線、東京メトロ、都営地下鉄など複数の路線が利用可能で、都心へのアクセスが非常に便利です。また、水道橋駅や後楽園駅も徒歩圏内にあり、通勤やビジネスの移動に優れた環境を提供します。 ## 2. 【ビルの設備とセキュリティ】 基準階面積は約315坪で、広々としたオフィススペースを実現。各オフィスには個別空調、OAフロア、光ファイバー対応のインフラが整っており、現代のビジネスニーズに応える設備が完備されています。セキュリティ面では、24時間機械警備と有人警備が施され、入居企業の安全を確保しています。 ## 3. 【ビルデザインと機能性】 ビルは地上8階・地下2階建てで、タイル壁と連続窓による清潔感のある外観が特徴です。内部は、最新のトイレリニューアルを含むモダンな設計が施されており、快適なオフィス環境を提供しています。また、電気容量や床荷重も十分に確保されており、多様なビジネスニーズに対応します。 ## 4. 【周辺環境】 ビル周辺には、飲食店、コンビニエンスストア、銀行などが充実しており、日々のビジネス運営に必要なサービスが手近に揃っています。また、小石川後楽園や東京ドームシティなど、リフレッシュできるスポットも近隣に多数存在し、ビジネスとプライベートのバランスを取りやすい環境です。 # 【まとめ】 文京区後楽に位置する日教販ビルは、その抜群のアクセス、充実したオフィス設備、安全とセキュリティの高さ、そして活気ある周辺環境が魅力の賃貸オフィスビルです。ビジネスの拠点としての機能性に優れ、多様な業種の企業に適した環境を提供しています。これらの特性を活かし、企業が一層の成長を遂げるための場所として、日教販ビルは最適な選択です。
日教販ビルのこだわり
自分で探すより問い合わせる方が早いことがあります
WEB非公開物件があるから
オーナー様のご希望により「WEBでは非公開」にしている物件があります。 それらはWEBでいくら検索しても見つかりません。 先ずは条件などお知らせ頂けましたら非公開物件含め ピッタリのオフィスをご提案させて頂きます。 無理なお勧めはしておりませんので、お気軽にお問い合わせください。
対面でのご相談も受け付けております
ご来店も歓迎です
オフィス移転は社内・社外ともに非公開に行われることが殆どです。そのためアットオフィスでは、基本的に訪問によるコンサルティングを行っておりますが、ご来店の相談も歓迎です。お一人おひとりに親身にご対応させて頂きたい為、要予約とさせて頂いております。ご来店の際は先ずは下記よりご予約下さい。
募集終了のテナント区画
| 階数 | 坪数 | 賃料 + 共益費 | 敷金/礼金敷金 礼金 | 検討 |
|---|---|---|---|---|
| B1階 | 115.72坪 (382.55m²) | 募集終了 | - | - |
| 1階 | 115.55坪 (381.98m²) | 募集終了 | - | - |
| 1階 | 138.04坪 (456.33m²) | 募集終了 | - | - |
| 3階 | 115.72坪 (382.55m²) | 募集終了 | - | - |
| 5階 | 315.97坪 (1044.53m²) | 募集終了 | - | - |
| 5階 | 55坪 (181.82m²) | 募集終了 | - | - |
| 6階 | 115.72坪 (382.55m²) | 募集終了 | - | - |
| 6階 | 200.25坪 (661.98m²) | 募集終了 | - | - |
| 6階 | 143.89坪 (475.68m²) | 募集終了 | - | - |
| 8階 | 115.72坪 (382.55m²) | 募集終了 | - | - |
| 8階 | 84.53坪 (279.44m²) | 募集終了 | - | - |
読込中...
湯島/本郷/後楽園エリアで日教販ビルに似た条件の物件
読込中...
| 取扱様態 | 仲介 |
|---|---|
| 取扱会社 | 株式会社 アットオフィス |