平河町ビル2階の賃貸情報
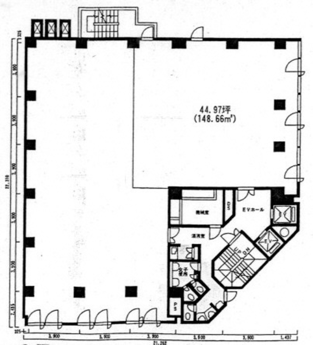
44.97 坪 (148.66m²)
※このサイトに記載がある賃貸条件は、敷金・保証金などの預かり金を除き、別途消費税がかかります。
平河町ビルの建物概要
設備詳細
| 空調 | 個別空調 |
|---|---|
| トイレ | - |
| 床仕様 | - |
| エレベータ | 2 基 |
| 駐車場設備 | 空有 |
| その他 | 光ファイバー |
平河町ビル2階の賃貸オフィス・事務所に関するお問い合わせ
平河町ビルについて
平河町ビルは、千代田区平河町に位置する賃貸オフィス物件であり、1975年に竣工した9階建のビルです。永田町駅から徒歩わずか1分という抜群のアクセスの良さを誇り、赤坂見附駅へのアクセスも可能で、ビジネスの拠点として非常に魅力的な立地条件を有しています。平河町ビルの基準階は約111坪で、L字型の間取りが特徴的です。この間取りは、効率的なオフィスレイアウトを可能にし、空間を最大限に活用することができます。 ビル内には、月極駐車場が設けられており、機械式で14台収容可能です。この駐車場の存在は、車を利用するビジネスマンにとって大きなメリットとなります。また、ビルは耐震補強工事も済み、天井高2.5mのOA対応床装備を有しており、セキュリティは機械警備で24時間使用可能なオフィス環境を提供しています。トイレと給湯スペースは室外に設置されており、オフィス内は快適に過ごせるよう配慮されています。 立地については、平河町ビルは青山通り沿いに位置しており、車通りが多く活気あるエリアです。徒歩圏内にはコンビニやカフェ、ATMなどがあり、利便性が高く、ビジネスのみならず日常生活においても非常に便利です。さらに、最高裁判所や国立劇場など、重要な施設も近くに位置しており、ビジネスの機会を広げる上で有益な環境にあります。 ビルの外観は、2面がガラス張りであり、視認性が高く、企業のイメージアップにも寄与します。光ファイバーはMDFまで引き込まれており、高速インターネット環境が整っているため、情報通信技術を駆使したビジネスの展開が可能です。 平河町ビルは、その立地の良さ、充実した設備、そして快適なオフィス環境を求める企業にとって最適な選択肢となります。募集時期やフロアによっては分割区画もあり、企業のニーズに応じた柔軟なオフィスプランが可能です。ビジネスの成功を目指す企業にとって、平河町ビルは、その拠点としての価値が高い物件です。
平河町ビルのこだわり
自分で探すより問い合わせる方が早いことがあります
WEB非公開物件があるから
オーナー様のご希望により「WEBでは非公開」にしている物件があります。 それらはWEBでいくら検索しても見つかりません。 先ずは条件などお知らせ頂けましたら非公開物件含め ピッタリのオフィスをご提案させて頂きます。 無理なお勧めはしておりませんので、お気軽にお問い合わせください。
対面でのご相談も受け付けております
ご来店も歓迎です
オフィス移転は社内・社外ともに非公開に行われることが殆どです。そのためアットオフィスでは、基本的に訪問によるコンサルティングを行っておりますが、ご来店の相談も歓迎です。お一人おひとりに親身にご対応させて頂きたい為、要予約とさせて頂いております。ご来店の際は先ずは下記よりご予約下さい。
番町/麹町/平河町エリアで平河町ビルに似た条件の物件
読込中...
平河町ビルと同じ最寄駅の物件
読込中...
| 取扱様態 | 仲介 |
|---|---|
| 取扱会社 | 株式会社 アットオフィス |