※このサイトに記載がある賃貸条件は、敷金・保証金などの預かり金を除き、別途消費税がかかります。
物件情報
設備詳細
| 空調 | - |
|---|---|
| トイレ | - |
| 床仕様 | - |
| エレベータ | 35 基 |
| 駐車場設備 | 空有 |
| その他 | 大型ビル / 光ファイバー |
新宿センタービルの賃貸オフィス・事務所に関するお問い合わせ
新宿センタービルについて
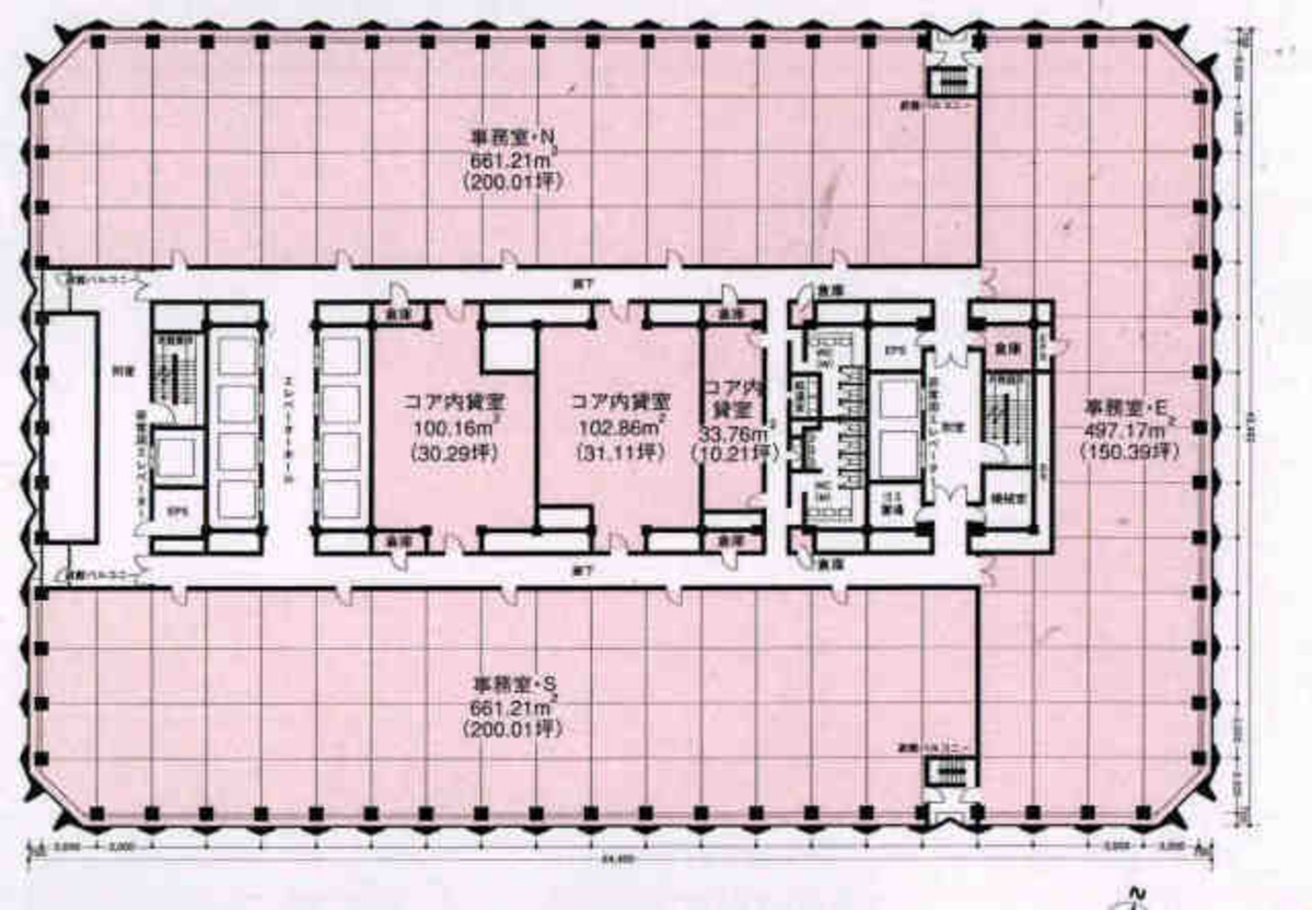
新宿センタービルは、東京都新宿区西新宿に位置する、地上54階建ての大型賃貸オフィスビルです。1979年に竣工されたこのビルは、新宿の副都心としての発展を象徴するランドマーク的存在であり、ビジネスシーンにおいて重要な役割を果たしています。以下では、新宿センタービルの特徴、立地、設備について、専門性を持って詳細に解説いたします。 【特徴】 新宿センタービルは、高さ222.95メートルを誇り、西新宿の高層ビル群の中でも一際目立つ存在です。煉瓦色の外壁とノコギリのような独特の外観デザインが特徴的であり、遠くからでも容易に認識できます。ビル内には多岐にわたる業種の企業が入居しており、ビジネスの多様性を支える基盤となっています。 【立地】 新宿センタービルは、東京メトロ新宿駅、JR新宿駅、都営地下鉄都庁前駅から徒歩圏内という抜群のアクセスを誇ります。新宿駅からは地下道に直結しており、雨の日でも濡れずに通勤することが可能です。西新宿は日本有数のビジネス街であり、周囲には多数の商業施設や飲食店、ビジネスホテルが立地しており、ビジネス上のニーズに応える環境が整っています。 【設備】 新宿センタービルは、先進的なオフィス環境を提供するため、高度な設備を備えています。光ファイバー対応、OAフロア、セントラル空調システム、広々としたエントランス、駐車場、貸し会議室など、ビジネスの効率化と快適性を追求した設計となっています。また、耐震性にも優れ、安心して業務を行うことができます。 新宿センタービルは、高度な設備、利便性の高い立地、そして多様なビジネスニーズに対応できる柔軟なオフィスレイアウトが魅力です。これらの特性から、新宿センタービルは多くの企業にとって最適なオフィス環境を提供しています。新宿という日本を代表するビジネス街の中心に位置し、快適で効率的なビジネスライフを実現するために、新宿センタービルの検討をお勧めします。
新宿センタービルのこだわり
自分で探すより問い合わせる方が早いことがあります
WEB非公開物件があるから
オーナー様のご希望により「WEBでは非公開」にしている物件があります。 それらはWEBでいくら検索しても見つかりません。 先ずは条件などお知らせ頂けましたら非公開物件含め ピッタリのオフィスをご提案させて頂きます。 無理なお勧めはしておりませんので、お気軽にお問い合わせください。
対面でのご相談も受け付けております
ご来店も歓迎です
オフィス移転は社内・社外ともに非公開に行われることが殆どです。そのためアットオフィスでは、基本的に訪問によるコンサルティングを行っておりますが、ご来店の相談も歓迎です。お一人おひとりに親身にご対応させて頂きたい為、要予約とさせて頂いております。ご来店の際は先ずは下記よりご予約下さい。
募集終了のテナント区画
読込中...
新宿/西新宿エリアで新宿センタービルに似た条件の物件
読込中...
| 取扱様態 | 仲介 |
|---|---|
| 取扱会社 | 株式会社 アットオフィス |