※このサイトに記載がある賃貸条件は、敷金・保証金などの預かり金を除き、別途消費税がかかります。
物件情報
設備詳細
| 空調 | セントラル空調 |
|---|---|
| トイレ | - |
| 床仕様 | OA対応床(フリーアクセス) |
| エレベータ | 2 基 |
| 駐車場設備 | - |
| その他 | 大型ビル / 新耐震基準 |
アセンド神田ビルの賃貸オフィス・事務所に関するお問い合わせ
アセンド神田ビルについて
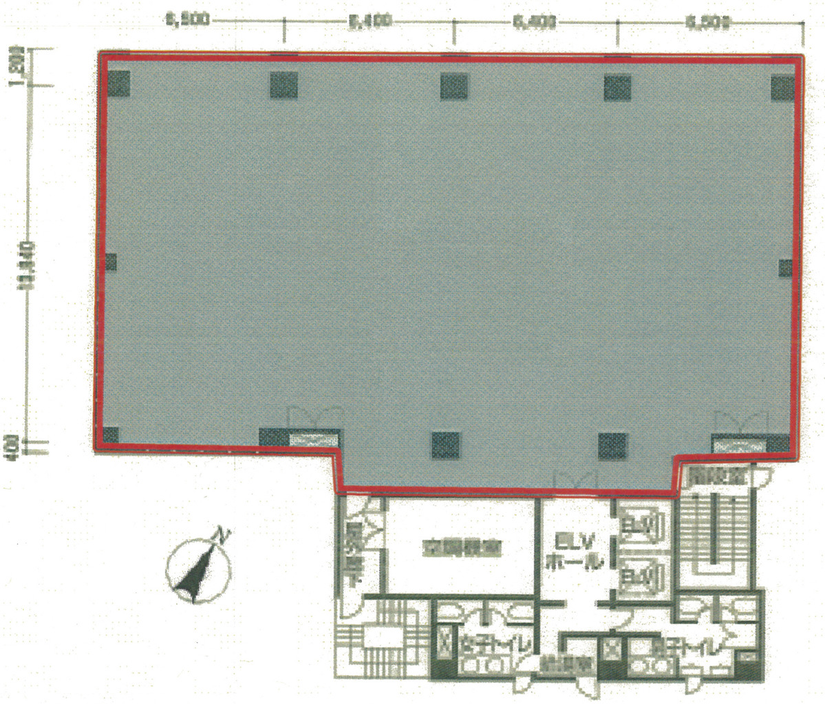
【アセンド神田ビル】- 重厚感あるハイグレードオフィスの象徴 東京都千代田区神田富山町に誇り高く立つアセンド神田ビルは、その見た目から内装まで、ハイグレードオフィスビルの魅力を凝縮した逸品です。1988年に竣工されたこのビルは、地上7階・地下1階建ての堂々たる構造で、基準階面積は約125坪という大型オフィスにも対応可能なスペースを提供しています。 アクセスの利便性は抜群で、JR神田駅から徒歩4分、さらに岩本町駅、新日本橋駅、秋葉原駅、小伝馬町駅と、複数の駅が徒歩圏内にあることから、ビジネスの拠点として最適な立地であることが分かります。神田平成通り沿いに位置し、周囲には飲食店やコンビニ、中古オフィス家具店などが並ぶ活気あるエリアです。 内装に目を向けると、アセンド神田ビルの重厚感あるエントランスは、まるで美術館のよう。大理石の壁や選び抜かれたオブジェが設えられ、来訪者を高級感あふれる空間へと誘います。ビルの設備も非常に充実しており、個別空調・OAフロア完備、光ファイバーの導入、2基のエレベーター、そして機械式駐車場まで、ビジネスの効率化をサポートする最先端の施設が整っています。 セキュリティ面においても、機械警備システムが導入されており、入居企業とその従業員の安全を常に守っています。また、男女別トイレや充実した水回り設備は、日常の快適さを考慮した設計であり、働く人々のストレスを軽減します。 このビルは、ただのオフィススペースを超えた、ブランド力をも高めるような特別な空間を提供します。アセンド神田ビルは、企業の品格を象徴するオフィスビルとして、ビジネスの成功を力強くサポートします。立地の良さ、設備の充実度、そして重厚感あるデザインは、特に品質を重視する企業にとって、理想的なオフィス環境と言えるでしょう。
自分で探すより問い合わせる方が早いことがあります
WEB非公開物件があるから
オーナー様のご希望により「WEBでは非公開」にしている物件があります。 それらはWEBでいくら検索しても見つかりません。 先ずは条件などお知らせ頂けましたら非公開物件含め ピッタリのオフィスをご提案させて頂きます。 無理なお勧めはしておりませんので、お気軽にお問い合わせください。
対面でのご相談も受け付けております
ご来店も歓迎です
オフィス移転は社内・社外ともに非公開に行われることが殆どです。そのためアットオフィスでは、基本的に訪問によるコンサルティングを行っておりますが、ご来店の相談も歓迎です。お一人おひとりに親身にご対応させて頂きたい為、要予約とさせて頂いております。ご来店の際は先ずは下記よりご予約下さい。
募集終了のテナント区画
| 階数 | 坪数 | 賃料 + 共益費 | 敷金/礼金敷金 礼金 | 検討 |
|---|---|---|---|---|
| 1階 | 68.75坪 (227.3m²) | 募集終了 | - | - |
| 2階 | 125坪 (413.25m²) | 募集終了 | - | - |
| 3階 | 125坪 (413.22m²) | 募集終了 | - | - |
| 4階 | 138.34坪 (457.32m²) | 募集終了 | - | - |
| 6階 | 125坪 (413.22m²) | 募集終了 | - | - |
| 7階 | 125坪 (413.22m²) | 募集終了 | - | - |
読込中...
神田/秋葉原エリアでアセンド神田ビルに似た条件の物件
読込中...
| 取扱様態 | 仲介 |
|---|---|
| 取扱会社 | 株式会社 アットオフィス |