新宿SKYビル6階の賃貸情報
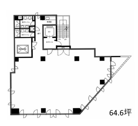
64.6 坪 (213.55m²)
※このサイトに記載がある賃貸条件は、敷金・保証金などの預かり金を除き、別途消費税がかかります。
新宿SKYビルの建物概要
設備詳細
| 空調 | 個別空調 |
|---|---|
| トイレ | 男女別トイレ |
| 床仕様 | OA対応床(フリーアクセス) |
| エレベータ | 1 基 / エレベーター有 |
| 駐車場設備 | - |
| その他 | 機械警備 / 24時間利用可 / 光ファイバー / 個別*セントラル / 新耐震基準 / フリーレント |
新宿SKYビルについて
新宿SKYビルは、1987年に竣工された耐震性を有するオフィスビルであり、新宿区新宿4丁目に位置しています。このビルは新宿駅から徒歩3分、新宿三丁目駅からは更に近い徒歩2分という、非常に利便性の高い立地にあります。周辺は商業施設が豊富で、ビジネスの拠点として理想的な環境を提供しています。 このビルは、地上10階建てで、基準階面積は64坪を超え、天井高2.45mという開放感のある設計が特徴です。オフィス内は自然光が豊富に入る設計で、働く環境に明るさと快適さを提供します。また、個別空調、OAフロア、光ケーブルの設備も完備しており、テナントのニーズに合わせた柔軟なオフィス環境を実現しています。 セキュリティ面では、機械警備システムを採用し、土日祝日でもエントランスが開放されるため、週末に働く企業にとっても便利です。眺望においても、明治通りの角地に位置するため、抜けの良い景色が楽しめます。このように、新宿SKYビルは機能性と快適性を兼ね備えたオフィス環境を提供します。 立地においては、新宿駅と新宿三丁目駅に近接しており、3駅以上の利用が可能な交通の便も魅力の一つです。新宿はビジネス、ショッピング、エンターテイメントの中心地として知られ、日中はビジネスパーソンで、夜はショッピングや食事を楽しむ人々で賑わいます。そのため、様々な業種の企業にとって魅力的な立地条件を持っています。 新宿SKYビルの周辺には、大型商業施設、飲食店、コンビニなどが充実しており、従業員の方々の日常生活においても大変便利な環境です。ビジネスだけでなく、ライフスタイルの向上にも貢献する立地と言えるでしょう。 総合すると、新宿SKYビルは、高い利便性、快適なオフィス環境、充実した周辺施設という3つの大きな魅力を持ったビルです。新宿というビジネスの中心地において、企業活動の基盤として最適な環境を提供し続けています。
自分で探すより問い合わせる方が早いことがあります
WEB非公開物件があるから
オーナー様のご希望により「WEBでは非公開」にしている物件があります。 それらはWEBでいくら検索しても見つかりません。 先ずは条件などお知らせ頂けましたら非公開物件含め ピッタリのオフィスをご提案させて頂きます。 無理なお勧めはしておりませんので、お気軽にお問い合わせください。
対面でのご相談も受け付けております
ご来店も歓迎です
オフィス移転は社内・社外ともに非公開に行われることが殆どです。そのためアットオフィスでは、基本的に訪問によるコンサルティングを行っておりますが、ご来店の相談も歓迎です。お一人おひとりに親身にご対応させて頂きたい為、要予約とさせて頂いております。ご来店の際は先ずは下記よりご予約下さい。
新宿/西新宿エリアで新宿SKYビルに似た条件の物件
読込中...
新宿SKYビルと同じ最寄駅の物件
読込中...
| 取扱様態 | 仲介 |
|---|---|
| 取扱会社 | 株式会社 アットオフィス |