※このサイトに記載がある賃貸条件は、敷金・保証金などの預かり金を除き、別途消費税がかかります。
物件情報
設備詳細
| 空調 | 個別空調 |
|---|---|
| トイレ | 男女別トイレ |
| 床仕様 | OA対応床(フリーアクセス) |
| エレベータ | 1 基 / エレベーター有 |
| 駐車場設備 | - |
| その他 | 光ファイバー / 新耐震基準 / 機械警備 / 24時間利用可 |
RBM築地駅前ビルの賃貸オフィス・事務所に関するお問い合わせ
RBM築地駅前ビルについて
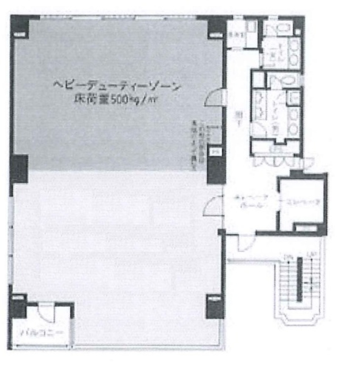
東京の活気あふれる築地エリアに位置するRBM築地駅前ビルは、中規模ながらも施設の充実と立地の良さで注目を集めています。このビルの最大の魅力は、築地駅からわずか徒歩1分というアクセスの良さにあります。さらに、新富町駅徒歩3分、築地市場駅徒歩8分と、複数路線が徒歩圏内にあるため、ビジネスシーンでの移動の利便性が非常に高いことが特徴です。 ビルの設備面においても、1991年の竣工以来、耐震性に優れたオフィスビルとしての安全性と機能性を保持しています。基準階面積は約64坪と中規模ながらも、長方形の無柱空間によるレイアウトの自由度の高さと、天井高2.57mの開放的な空間が、快適なオフィス環境を提供しています。また、一部区画にはバルコニーが設けられており、気分転換やちょっとした休息にも最適です。 立地の面では、東京50号線に面し、周囲には飲食店やコンビニ、銀行など、ビジネスに必要な施設が充実しています。築地市場の近くということもあり、ランチタイムやアフター5のビジネスシーンにも活気をもたらしています。 ビル内のセキュリティ対策も万全で、24時間対応の機械式警備が導入され、入居者の安全を守っています。また、1階にスーパーマーケットが入居しており、日々の買い物にも便利です。このようにRBM築地駅前ビルは、立地、設備、セキュリティーの全てにおいて、ビジネスに最適な環境を提供しています。 ビジネスの可能性を広げるためには、オフィス環境の質が非常に重要です。RBM築地駅前ビルは、そのすべてを満たす、中規模ながらハイグレードなオフィスビルです。ビジネスの拠点として最適なこのビルで、新たな一歩を踏み出してみませんか?
自分で探すより問い合わせる方が早いことがあります
WEB非公開物件があるから
オーナー様のご希望により「WEBでは非公開」にしている物件があります。 それらはWEBでいくら検索しても見つかりません。 先ずは条件などお知らせ頂けましたら非公開物件含め ピッタリのオフィスをご提案させて頂きます。 無理なお勧めはしておりませんので、お気軽にお問い合わせください。
対面でのご相談も受け付けております
ご来店も歓迎です
オフィス移転は社内・社外ともに非公開に行われることが殆どです。そのためアットオフィスでは、基本的に訪問によるコンサルティングを行っておりますが、ご来店の相談も歓迎です。お一人おひとりに親身にご対応させて頂きたい為、要予約とさせて頂いております。ご来店の際は先ずは下記よりご予約下さい。
募集終了のテナント区画
| 階数 | 坪数 | 賃料 + 共益費 | 敷金/礼金敷金 礼金 | 検討 |
|---|---|---|---|---|
| 5階 | 58.23坪 (192.49m²) | 募集終了 | - | - |
読込中...
新富/築地エリアでRBM築地駅前ビルに似た条件の物件
読込中...
| 取扱様態 | 仲介 |
|---|---|
| 取扱会社 | 株式会社 アットオフィス |