※このサイトに記載がある賃貸条件は、敷金・保証金などの預かり金を除き、別途消費税がかかります。
お電話でもお気軽にお問い合わせください
物件情報
設備詳細
| 空調 | - |
|---|---|
| トイレ | - |
| 床仕様 | - |
| エレベータ | 1 基 |
| 駐車場設備 | - |
| その他 | 機械警備 / 24時間利用可 / 光ファイバー / 会議室 / 新耐震基準 |
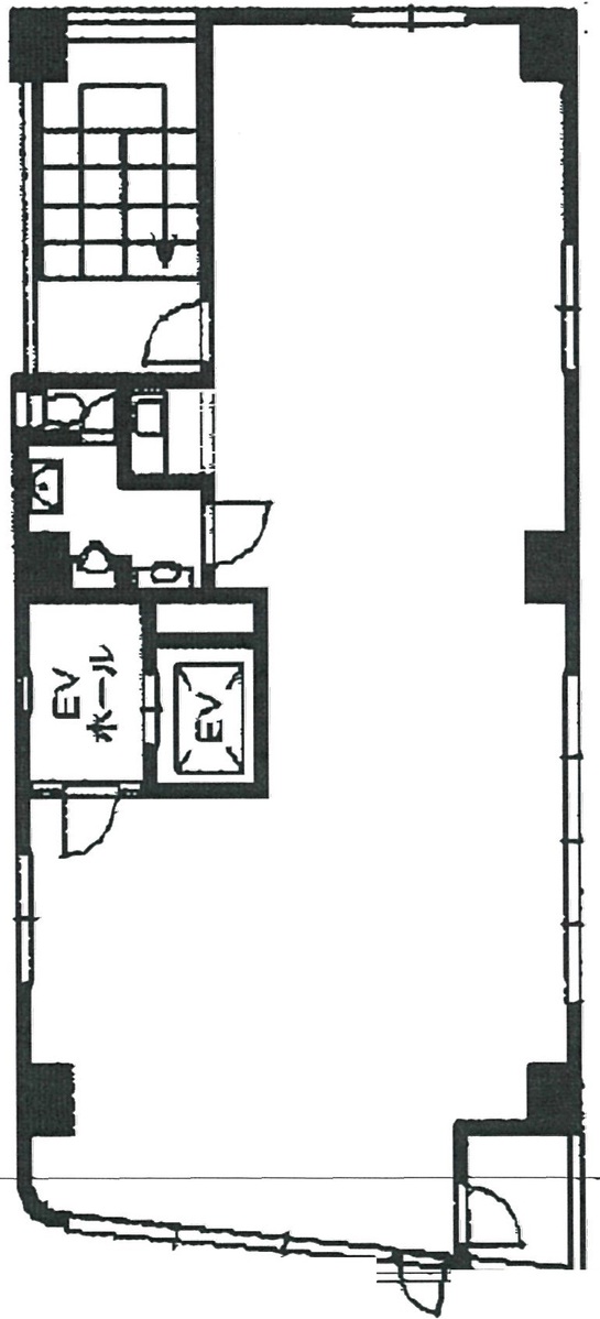
六甲第2ビルは、東京都中央区新川1丁目に位置する、ビジネスの中心地にふさわしい洗練されたオフィスビルです。ここでは、明るく快適な環境で働きたい企業様に最適なオフィス空間をご提供しております。本ビルは、永代通りから一本入った通りに面し、都心の静かな環境とアクセスの良さを兼ね備えています。茅場町駅からは徒歩わずか2分という抜群の立地条件を誇り、ビジネスの機会を逃さず、また日々の通勤もストレスフリーで行えます。 六甲第2ビルの特徴は、その利便性の高さにあります。ビル内にはエレベーターが1機設置されており、全10階建ての構造で、各フロアは約32坪となっております。広々とした窓面により、自然光が豊富に取り入れられるため、オフィス内は明るく開放的な雰囲気が漂います。また、10階には貸会議室が設けられており、会議やセミナー、プレゼンテーションなど、様々なビジネスシーンに対応可能です。これにより、ビル内で完結するビジネスの効率化を図ることができます。 ビルの周辺環境も魅力の一つです。永代通りの近くに位置するため、近隣には飲食店やコンビニエンスストア、銀行などが充実しており、ビジネスマンの日常生活に必要なものがすぐに手に入ります。また、茅場町駅周辺は商業施設も多く、アフター5のリフレッシュにも最適な立地です。 六甲第2ビルは、その立地の良さ、快適なオフィス環境、そしてビジネスをサポートする充実した設備が魅力のビルです。ビジネスの拠点として、また日々の業務をより効率的に、快適に遂行するための環境をお探しの企業様に、ぜひお勧めしたい物件でございます。六甲第2ビルでは、あなたのビジネスを成功へと導くための最適なスペースを提供いたします。
募集終了のテナント区画
| 階数 | 坪数 | 賃料 + 共益費 | 敷金/礼金敷金 礼金 | 検討 |
|---|---|---|---|---|
| 6階 | 32.3坪 (106.77m²) | 募集終了 | - | - |
| 9階 | 32.3坪 (106.77m²) | 募集終了 | - | - |
WEB非公開物件がございます
オーナー様ご希望によるWEB非公開の物件もございます。先ずは条件などお知らせ頂けましたら、非公開物件含めピッタリのオフィスをご提案させて頂きます。具体的な物件がお決まりでない場合でも問題ございません。無理なお勧めはしておりませんので、お気軽にお問い合わせください。
ご来店も歓迎です
オフィス移転は社内・社外ともに非公開に行われることが殆どです。そのためアットオフィスでは、基本的に訪問によるコンサルティングを行っておりますが、ご来店の相談も歓迎です。
※お一人おひとりに親身にご対応させて頂きたい為、要予約とさせて頂いております。ご来店の際は先ずは上記よりご予約下さい。
読込中...
近くのエリアで探してみる
茅場町/新川/八丁堀エリアで六甲第2ビルに似た条件の物件
読込中...