※このサイトに記載がある賃貸条件は、敷金・保証金などの預かり金を除き、別途消費税がかかります。
物件情報
設備詳細
| 空調 | 個別空調 |
|---|---|
| トイレ | - |
| 床仕様 | - |
| エレベータ | 1 基 / エレベーター有 |
| 駐車場設備 | - |
| その他 | 24時間利用可 / 光ファイバー / 新耐震基準 / 大通り面する |
ル・グラシエルBLDG.80の賃貸オフィス・事務所に関するお問い合わせ
ル・グラシエルBLDG.80について
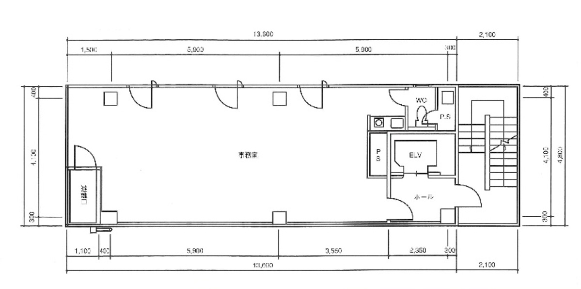
あなたが次のビジネスステージに求めるオフィスは、機能性と立地、そして働きやすさを兼ね備えた場所でなければなりません。ル・グラシエル80ビル(港区新橋)は、そんなビジネスパーソンの要望を満たす理想的な賃貸オフィス物件です。今回は、この特別なビルの魅力をご紹介します。 【立地の利便性】 ル・グラシエル80ビルは、東京都港区新橋に位置し、新橋駅からわずか徒歩5分の距離にあります。複数の交通路線が集結するこのエリアは、ビジネスの中心地としてのアクセスの良さが際立っています。また、内幸町駅や御成門駅からもアクセス可能であり、どこへ行くにもストレスフリー。周辺には飲食店やコンビニ、郵便局などの生活利便施設が充実しており、日常のちょっとした用事も手早く済ませられます。 【ビルの特性】 1991年に竣工したル・グラシエル80ビルは、地上9階建てで、基準階約30坪の広さを誇ります。外観はスタイリッシュなグレータイルとガラス張りで、高級感のある御影石張りのエントランスが印象的です。各オフィスは長方形に近い形状で柱が少なく、レイアウトの自由度が高いのが特長。個別空調や光ファイバー完備、24時間利用可能な空調など、ビジネスをサポートするための充実した設備が整っています。 【安全性と利便性】 新耐震基準に適合しており、ビルの安全性も確保されています。また、1基設置されたエレベーターは各階別エレベーター不停止装置付きで、セキュリティ面も考慮されています。駐車場はビル内にはありませんが、近隣にコインパーキングがあるため、車での通勤も可能です。 【独自の魅力】 このビルは、その立地だけでなく、ビルが提供する快適なオフィス環境においても独自の魅力を放っています。角地に位置し視認性が高いため、来客時の案内もスムーズです。2面採光で自然光がたっぷり入る明るいオフィス空間は、働くスタッフの創造性と生産性を高めます。 ル・グラシエル80ビル(港区新橋)は、利便性、機能性、安全性を兼ね備えたビジネスのための最適な空間です。ここはただのオフィスビルではなく、あなたのビジネスを次のレベルへと導くための場所。この機会に、是非一度ご内見ください。あなたのビジネスの未来が、ここから始まります。
自分で探すより問い合わせる方が早いことがあります
WEB非公開物件があるから
オーナー様のご希望により「WEBでは非公開」にしている物件があります。 それらはWEBでいくら検索しても見つかりません。 先ずは条件などお知らせ頂けましたら非公開物件含め ピッタリのオフィスをご提案させて頂きます。 無理なお勧めはしておりませんので、お気軽にお問い合わせください。
対面でのご相談も受け付けております
ご来店も歓迎です
オフィス移転は社内・社外ともに非公開に行われることが殆どです。そのためアットオフィスでは、基本的に訪問によるコンサルティングを行っておりますが、ご来店の相談も歓迎です。お一人おひとりに親身にご対応させて頂きたい為、要予約とさせて頂いております。ご来店の際は先ずは下記よりご予約下さい。
募集終了のテナント区画
| 階数 | 坪数 | 賃料 + 共益費 | 敷金/礼金敷金 礼金 | 検討 |
|---|---|---|---|---|
| B1-1階 | 36.01坪 (119.04m²) | 募集終了 | - | - |
| 3階 | 17.46坪 (57.71m²) | 募集終了 | - | - |
| 6階 | 17.46坪 (57.71m²) | 募集終了 | - | - |
読込中...
近くのエリアで探してみる
新橋/虎ノ門/神谷町エリアでル・グラシエルBLDG.80に似た条件の物件
読込中...
| 取扱様態 | 仲介 |
|---|---|
| 取扱会社 | 株式会社 アットオフィス |