明宝ビルの賃料条件
| 階数 | 坪数 | 賃料 + 共益費 | 敷金/礼金敷金 礼金 | 検討 |
|---|---|---|---|---|
| 1階 | 104坪 (343.8m²) | お問合せ下さい (坪:-) | 相談 無相談/無 | |
| 1階 | 121.3坪 (400.99m²) | お問合せ下さい (坪:-) | 相談 無相談/無 | |
| 6階 | 233.3坪 (771.23m²) | お問合せ下さい (坪:-) | 相談 無相談/無 |
※このサイトに記載がある賃貸条件は、敷金・保証金などの預かり金を除き、別途消費税がかかります。
物件情報
設備詳細
| 空調 | 個別空調 / セントラル空調 |
|---|---|
| トイレ | 男女別トイレ |
| 床仕様 | OA対応床(フリーアクセス) |
| エレベータ | 6 基 / エレベーター有 |
| 駐車場設備 | 空有 / 敷地内駐車場 |
| その他 | 大型ビル / 管理人常駐 / 光ファイバー / 機械警備 / 24時間利用可 / 1階の物件 |
明宝ビルの賃貸オフィス・事務所に関するお問い合わせ
明宝ビルについて
明宝ビルは、新宿区西新宿1丁目に位置する、地上14階建て(地下1階)の大型オフィスビルです。1970年に竣工し、1998年と2006年にはそれぞれ外観・エントランスとエレベーターのリニューアルが行われ、耐震性にも配慮した更新が施されています。このビルは、新宿駅から徒歩5分、京王新線の新線新宿駅からはわずか1分という、非常に優れたアクセスの利便性を誇ります。JR山手線、JR中央線、小田急小田原線、東京メトロ丸ノ内線など、複数の路線が利用可能であり、ビジネスの中心地としての立地は格別です。 ビルの構造は鉄骨鉄筋コンクリート造で、基準階は約419坪となっており、大規模なオフィスニーズにも対応可能です。ビル内には6基のエレベーターが設置されており、80台収容可能な駐車場、光ファイバーによる高速インターネット接続、貸会議室、貸倉庫など、ビジネスに必要な設備が充実しています。エントランスは毎日7:00~22:00の間開放されており、セントラル空調やOAフロアを完備した貸室内は、室外に設けられた男女別のトイレと共に、レイアウト効率と快適性を高めています。天高は2,450mmと広々としており、開放感あるオフィス環境を提供します。 明宝ビルの外観は重厚感あるデザインでグレード感を演出し、ビルの管理状態も良好です。新宿の高層ビル街にありながら、緑豊かな環境も魅力の一つです。甲州街道から一本入った位置にあり、都庁前駅からも徒歩圏内という、ビジネスに適した静かで便利な立地条件を兼ね備えています。周辺にはコンビニエンスストアや飲食店が豊富にあり、ビルの利用者にとって日常の利便性も抜群です。 明宝ビルは、そのアクセスの良さ、耐震補強済みの安全性、そして多様なビジネスニーズに応える設储が魅力の、大型オフィスビルとして推薦します。立地、設備、快適性を兼ね備えたこのビルは、企業の信頼性と品格を高めるビジネスの舞台として、きっと貴社の期待に応えることでしょう。
自分で探すより問い合わせる方が早いことがあります
WEB非公開物件があるから
オーナー様のご希望により「WEBでは非公開」にしている物件があります。 それらはWEBでいくら検索しても見つかりません。 先ずは条件などお知らせ頂けましたら非公開物件含め ピッタリのオフィスをご提案させて頂きます。 無理なお勧めはしておりませんので、お気軽にお問い合わせください。
対面でのご相談も受け付けております
ご来店も歓迎です
オフィス移転は社内・社外ともに非公開に行われることが殆どです。そのためアットオフィスでは、基本的に訪問によるコンサルティングを行っておりますが、ご来店の相談も歓迎です。お一人おひとりに親身にご対応させて頂きたい為、要予約とさせて頂いております。ご来店の際は先ずは下記よりご予約下さい。
募集終了のテナント区画
| 階数 | 坪数 | 賃料 + 共益費 | 敷金/礼金敷金 礼金 | 検討 |
|---|---|---|---|---|
| B1階 | 33.3坪 (110.08m²) | 募集終了 | - | - |
| B1階 | 51.5坪 (170.24m²) | 募集終了 | - | - |
| B1階 | 56.3坪 (186.11m²) | 募集終了 | - | - |
| B1階 | 20.7坪 (68.42m²) | 募集終了 | - | - |
| B1階 | 100.7坪 (332.89m²) | 募集終了 | - | - |
| 1階 | 124.01坪 (409.95m²) | 募集終了 | - | - |
| 1階 | 109.3坪 (361.32m²) | 募集終了 | - | - |
| 1階 | 109.3坪 (361.32m²) | 募集終了 | - | - |
| 1階 | 124.1坪 (410.24m²) | 募集終了 | - | - |
| 1階 | 294.3坪 (972.89m²) | 募集終了 | - | - |
| 2階 | 170.5坪 (562.31m²) | 募集終了 | - | - |
| 2階 | 294.3坪 (972.89m²) | 募集終了 | - | - |
| 2階 | 181.1坪 (598.67m²) | 募集終了 | - | - |
| 2階 | 160.9坪 (531.9m²) | 募集終了 | - | - |
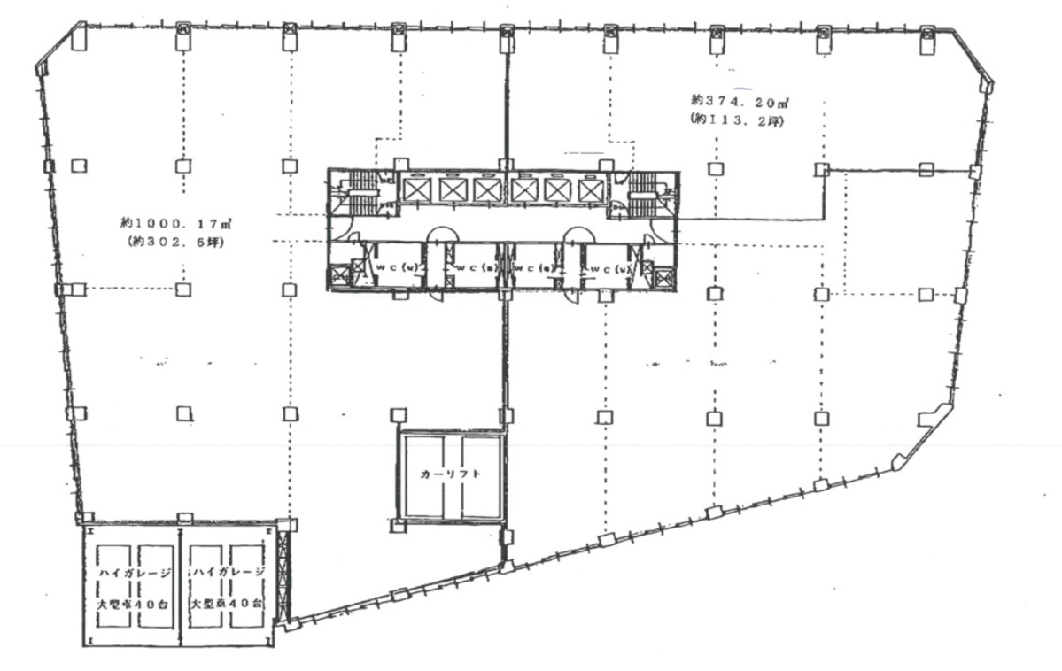
| 2階 | 113.2坪 (374.21m²) | 募集終了 | - | - |
| 5階 | 233.3坪 (771.24m²) | 募集終了 | - | - |
| 5階 | 80.1坪 (264.79m²) | 募集終了 | - | - |
| 5階 | 233.3坪 (771.23m²) | 募集終了 | - | - |
| 6階 | 25.5坪 (84.3m²) | 募集終了 | - | - |
| 6階 | 25.5坪 (84.29m²) | 募集終了 | - | - |
| 7階 | 187.5坪 (619.83m²) | 募集終了 | - | - |
| 7階 | 233坪 (770.25m²) | 募集終了 | - | - |
| 8階 | 126坪 (416.53m²) | 募集終了 | - | - |
| 8階 | 232.7坪 (769.26m²) | 募集終了 | - | - |
| 8階 | 233坪 (770.25m²) | 募集終了 | - | - |
| 9階 | 233坪 (770.25m²) | 募集終了 | - | - |
| 9階 | 232.7坪 (769.26m²) | 募集終了 | - | - |
| 9階 | 233坪 (770.24m²) | 募集終了 | - | - |
| 10階 | 233坪 (770.24m²) | 募集終了 | - | - |
| 10階 | 233坪 (770.24m²) | 募集終了 | - | - |
| 10階 | 232.6坪 (768.92m²) | 募集終了 | - | - |
| 11階 | 233坪 (770.24m²) | 募集終了 | - | - |
| 11階 | 233坪 (770.25m²) | 募集終了 | - | - |
| 11階 | 233坪 (770.25m²) | 募集終了 | - | - |
| 12階 | 232.7坪 (769.26m²) | 募集終了 | - | - |
| 12階 | 233坪 (770.25m²) | 募集終了 | - | - |
読込中...
新宿/西新宿エリアで明宝ビルに似た条件の物件
読込中...
| 取扱様態 | 仲介 |
|---|---|
| 取扱会社 | 株式会社 アットオフィス |